JA
Vigo Road, Fairseat, Sevenoaks, Kent, TN15
By Jackson-Stops
£ 2,950,000
Reviews
3 out of 5 stars
Jackson-Stops says ..
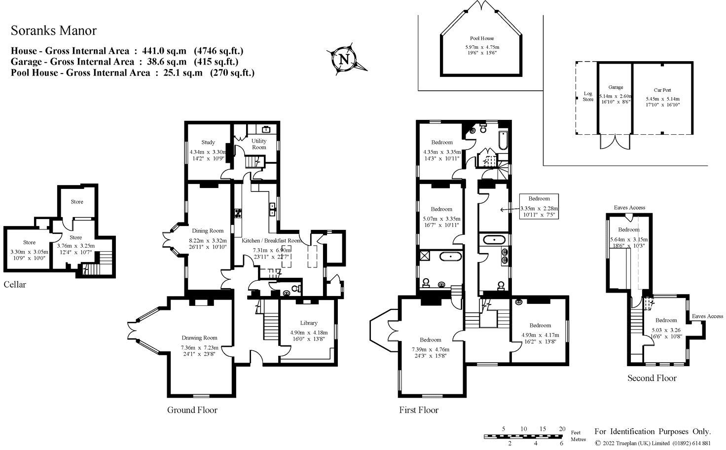
A handsome and well-proportioned Victorian Manor House, set within delightful secluded park-like gardens of about four acres DESCRIPTION Soranks Manor is a handsome Victorian Manor House with Edwardian additions, offering flexible accommodati...
Property Oracle says ..
Therefore, we give this property 7 / 10. *Disclaimer: This is our option and does constitute a recommendation or financial advice. Do your own research. *
- Price
- 6
- Condition
- 8
- Location
- 8
- Land
- 9
- Bedrooms
- 5
- Bathrooms
- 3
- Sqft (est)
- 3,981.36
The heatmap indicates the level of crime in the area. The color of the heatmap indicates the crime severity and recency.
Metrics Year-on-Year
- Average area value
- 573,333.00 £Increased by 4.59 %
- Est sale value
- 1,767,723.84 £Decreased by 3.27 %
- Average area rental value
- 2,650.00 £/moIncreased by 22.35 %
- Est letting value
- 7,962.72 £/moIncreased by 100.00 %
- Est rental Yield
- 5.55 %Increased by 17.09 %
- Crime Rate
- 81.00 %Unchanged by 0.00 %
from 548,161.00 £
from 1,827,444.24 £
from 2,166.00 £/mo
from 3,981.36 £/mo
from 4.74 %
from 81.00 %
Agent Activity
Jackson-Stops created the listing.
Nearby Schools
| Name | Type | Ofsted | Distance |
|---|---|---|---|
| Borough Green Primary School | Foundation School | Good | 0.37 KM |
| Grange Park School | Community Special School | Good | 1.01 KM |
| Wrotham School | Academy Converter | Good | 1.14 KM |
| Platt Church Of England Voluntary Aided Primary School | Voluntary Aided School | Good | 2.26 KM |
| St George'S Church Of England Voluntary Controlled Primary School | Voluntary Controlled School | Outstanding | 2.30 KM |
Images
Nearby Streets
| Name | Average Price | Average Sqft | Distance |
|---|---|---|---|
| School Approach | £ 0 | 0 | 0.00 KM |
| Wyatt Close | £ 475,000 | 0 | 0.00 KM |
| The Crescent | £ 0 | 0 | 0.00 KM |
| Plough Hill | £ 0 | 0 | 0.00 KM |
Nearby Transport
| Name | NLC | TLC | Distance |
|---|---|---|---|
| Borough Green And Wrotham | 5130 | BRG | 0.24 KM |
| Kemsing | 5079 | KMS | 6.53 KM |
Nearby Listings
| Address | Price | Type | Score | Distance |
|---|---|---|---|---|
| Vigo Road, Fairseat, Sevenoaks, Kent, TN15 | £ 2,950,000 | BUY | 7 / 10 | 0.00 KM |
| Maidstone Road, Borough Green, Kent, TN15 | £ 350,000 | BUY | 7 / 10 | 0.02 KM |
| Maidstone Road, Borough Green, Sevenoaks, Kent, TN15 | £ 500,000 | BUY | 5 / 10 | 0.02 KM |
| Abbott Road, Borough Green | £ 550,000 | BUY | 7 / 10 | 0.07 KM |
| Abbott Road, Borough Green | £ 485,000 | BUY | Unknown | 0.07 KM |
Nearby Properties
| Address | Price | Distance |
|---|---|---|
| 20 Maidstone Road | £ 385,000 | 0.02 KM |
| 2 Maidstone Road | £ 268,000 | 0.02 KM |
| 8 Maidstone Road | £ 550,000 | 0.02 KM |
| 34 Maidstone Road | £ 680,000 | 0.02 KM |
| 5 Fox Lea | £ 470,000 | 0.04 KM |