MA
34 Scott Street, Largs, KA30 9NS
By MacTaggart & Co
£ 370,000
Reviews
3 out of 5 stars
MacTaggart & Co says ..
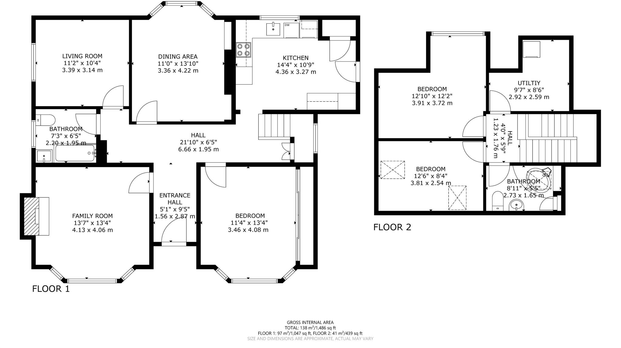
'Positioned on a prominent corner site in the south side of Largs, 34 Scott Street is a stunning traditional detached bungalow that would make a fabulous home for couples or families alike. The property is situated in secluded manicured garden grounds and is presented in walk-in condition having ...
Property Oracle says ..
Therefore, we give this property 7 / 10. *Disclaimer: This is our option and does constitute a recommendation or financial advice. Do your own research. *
- Price
- 8
- Condition
- 8
- Location
- 7
- Land
- 7
- Bedrooms
- 4
- Bathrooms
- 2
- Sqft (est)
- 1,401.03
The heatmap indicates the level of crime in the area. The color of the heatmap indicates the crime severity and recency.
Metrics Year-on-Year
- Average area value
- 134,933.00 £Decreased by 31.21 %
- Est sale value
- 263,393.64 £Increased by 24.50 %
- Average area rental value
- 750.00 £/moDecreased by 8.98 %
- Est letting value
- 1,401.03 £/mo
- Est rental Yield
- 6.67 %Increased by 32.34 %
- Crime Rate
- 0.00 %
from 196,142.00 £
from 211,555.53 £
from 824.00 £/mo
from 0.00 £/mo
from 5.04 %
from 0.00 %
Agent Activity
MacTaggart & Co created the listing.
Images
Nearby Streets
| Name | Average Price | Average Sqft | Distance |
|---|---|---|---|
| Cunningham Drive | £ 0 | 0 | 0.00 KM |
| Whinhill Avenue | £ 0 | 0 | 0.00 KM |
| Scott Crescent | £ 248,000 | 0 | 0.00 KM |
| Cathcart Road | £ 0 | 0 | 0.00 KM |
| Viking Way | £ 125,000 | 0 | 0.00 KM |
Nearby Transport
| Name | NLC | TLC | Distance |
|---|---|---|---|
| Largs | 9521 | LAR | 1.04 KM |
| Fairlie | 9452 | FRL | 4.38 KM |
Nearby Listings
| Address | Price | Type | Score | Distance |
|---|---|---|---|---|
| 34 Scott Street, Largs, KA30 9NS | £ 370,000 | BUY | 7 / 10 | 0.00 KM |
| 5 Cunningham Drive, Largs, KA30 9NX | £ 345,000 | BUY | 7 / 10 | 0.10 KM |
| Cuningham Drive, Largs, North Ayrshire, KA30 | £ 280,000 | BUY | 7 / 10 | 0.11 KM |
| Whinhill Avenue, Largs | £ 350,000 | BUY | 5 / 10 | 0.11 KM |
| 20 Scott Street, Largs, KA30 9NU | £ 385,000 | BUY | 6 / 10 | 0.15 KM |