Winkworth says ..
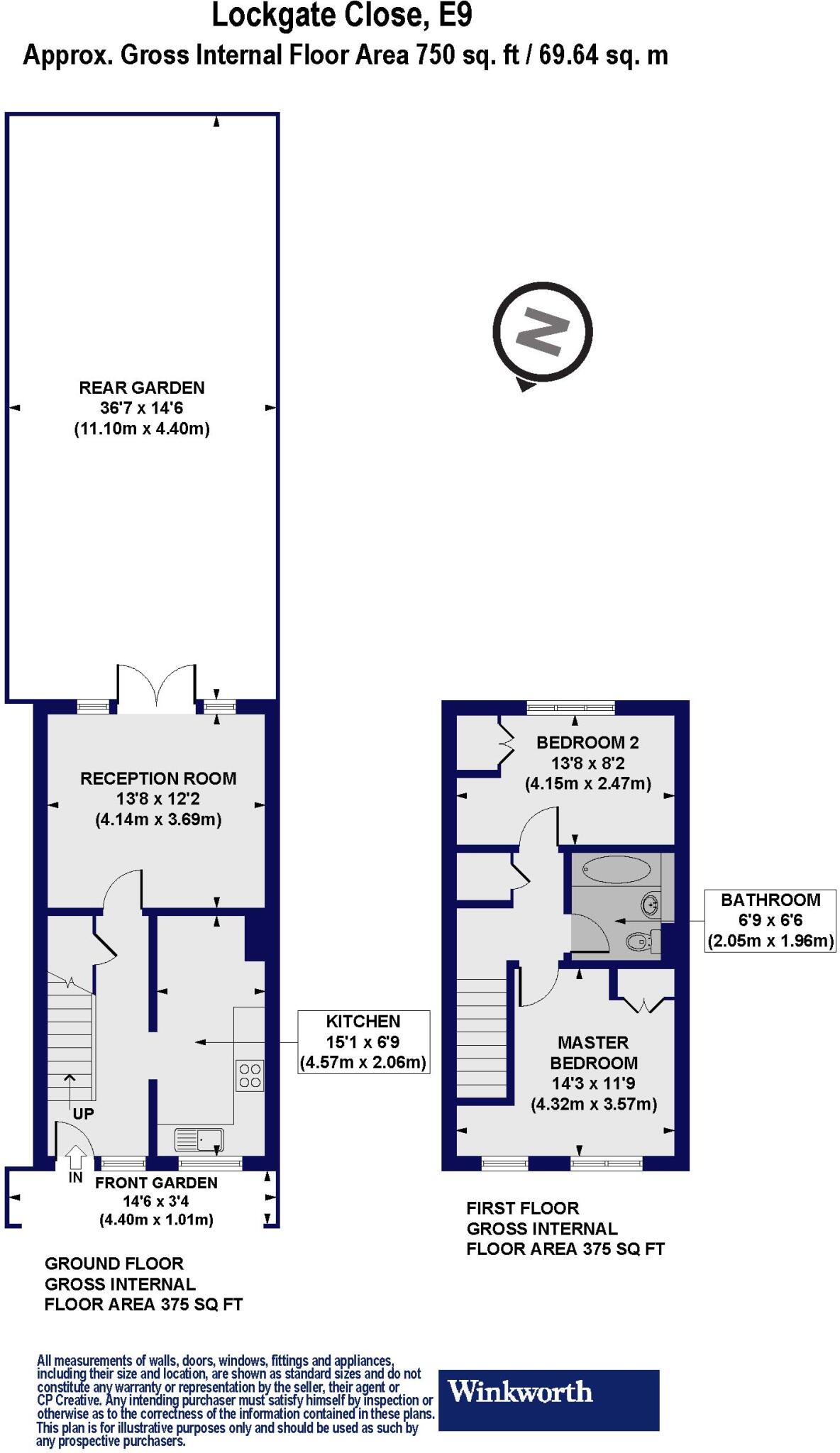
Set within a quiet canalside pocket in the heart of Hackney Wick, this two-bedroom freehold house at Lockgate Close offers a rare mix of privacy, space, and location — all moments from East London’s best green spaces and creative hubs. Arranged over two floors, the property...
Property Oracle says ..
Therefore, we give this property 7 / 10. *Disclaimer: This is our option and does constitute a recommendation or financial advice. Do your own research. *
- Price
- 8
- Condition
- 8
- Location
- 7
- Land
- 7
- Bedrooms
- 2
- Bathrooms
- 0
- Sqft (est)
- 1,176.42
The heatmap indicates the level of crime in the area. The color of the heatmap indicates the crime severity and recency.
Metrics Year-on-Year
- Average area value
- 465,625.00 £Decreased by 23.81 %
- Est sale value
- 696,440.64 £Decreased by 23.12 %
- Average area rental value
- 2,831.00 £/moIncreased by 5.44 %
- Est letting value
- 3,529.26 £/moUnchanged by 0.00 %
- Est rental Yield
- 7.30 %Increased by 38.52 %
- Crime Rate
- 4.00 %Unchanged by 0.00 %
from 611,158.00 £
from 905,843.40 £
from 2,685.00 £/mo
from 3,529.26 £/mo
from 5.27 %
from 4.00 %
Agent Activity
Winkworth created the listing.
Nearby Schools
| Name | Type | Ofsted | Distance |
|---|---|---|---|
| Gainsborough Primary School | Community School | Good | 0.59 KM |
| Kingsmead Primary School | Community School | Outstanding | 0.79 KM |
| Mossbourne Riverside Academy | Academy Sponsor Led | Outstanding | 0.92 KM |
| Ickburgh School | Community Special School | Good | 0.93 KM |
| Daubeney Children'S Centre | Children's Centre | 1.00 KM |
Images
Nearby Streets
| Name | Average Price | Average Sqft | Distance |
|---|---|---|---|
| Towpath Walk | £ 0 | 0 | 0.00 KM |
| Homerton Road | £ 0 | 0 | 0.00 KM |
| Meadow Close | £ 0 | 0 | 0.00 KM |
| Silk Mills Square | £ 395,000 | 0 | 0.00 KM |
| East Cross Route | £ 0 | 0 | 0.00 KM |
Nearby Transport
| Name | NLC | TLC | Distance |
|---|---|---|---|
| Hackney Wick | 6978 | HKW | 0.87 KM |
| Homerton | 6979 | HMN | 1.50 KM |
| Lea Bridge | 6927 | LEB | 2.02 KM |
| Stratford International | 7222 | SFA | 2.33 KM |
| Hackney Central | 6977 | HKC | 2.99 KM |
Nearby Listings
| Address | Price | Type | Score | Distance |
|---|---|---|---|---|
| Lockgate Close, London, E9 | £ 600,000 | BUY | 7 / 10 | 0.00 KM |
| Towpath Walk, London, E9 | £ 450,000 | BUY | Unknown | 0.04 KM |
| Lee Conservancy Road, London, E9 | £ 375,000 | BUY | Unknown | 0.04 KM |
| Homerton Road, E9 | £ 450,000 | BUY | 6 / 10 | 0.23 KM |
| Homerton Road, Homerton, E9 | £ 400,000 | BUY | 6 / 10 | 0.23 KM |
Nearby Properties
| Address | Price | Distance |
|---|---|---|
| 9 Lee Conservancy Road | £ 90,000 | 0.04 KM |
| 69 Eastway | £ 507,500 | 0.28 KM |
| 66 Eastway | £ 811,000 | 0.28 KM |
| 74 Eastway | £ 593,500 | 0.28 KM |
| 75 Eastway | £ 572,500 | 0.28 KM |