Acobas says ..
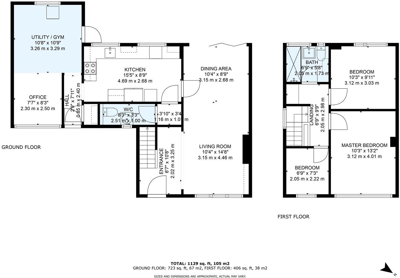
For sale with no onward chain. Acobas are delighted to present this conveniently situated, three bedroom semi detached property on the outskirts of Knutsford with off road parking for two vehicles. Having recently undergone modernisation, this home is ideal for an expanding family looki...
Property Oracle says ..
The property at Parkgate Lane, Knutsford, Cheshire East is a 3-bedroom, 2-bathroom house listed at £450,000. The property has 1,130.21 sqft of living space and is situated in a desirable area. Based on the provided images, the property appears to be well-maintained and in good condition. Recent renovations or upgrades are evident in the kitchen and bathrooms. The interior is modern and stylish, suggesting a high standard of finish. The property includes a garden, which is a desirable feature in the UK housing market. While the exact size isn’t specified, the photos show a sizable, enclosed garden area. This adds to the overall appeal and value of the property. The average house price in the area is significantly higher (£626,016), and the average price per sqft is £489. However, the provided nearby listings show a range of prices, with some properties selling for less than the listed price of this property. The lower price point of this property, compared to the area average, could be attributed to the slightly smaller size (1,130 sqft vs the average of 1,278 sqft) or the lack of specific details regarding the plot size. Considering the presented condition and the desirable location, the asking price appears reasonable, although it is on the lower end of the spectrum for the area. Further investigation into comparable properties in the immediate vicinity would be beneficial to determine the precise market value. The property’s proximity to Knutsford train station and several schools also contributes positively to its value.
Therefore, we give this property 7 / 10. *Disclaimer: This is our option and does constitute a recommendation or financial advice. Do your own research. *
- Price
- 7
- Condition
- 8
- Location
- 9
- Land
- 7
- Bedrooms
- 3
- Bathrooms
- 2
- Sqft (est)
- 1,130.21
The heatmap indicates the level of crime in the area. The color of the heatmap indicates the crime severity and recency.
Metrics Year-on-Year
- Average area value
- 678,106.00 £Increased by 15.18 %
- Est sale value
- 662,303.06 £Increased by 35.96 %
- Average area rental value
- 1,651.00 £/moDecreased by 17.16 %
- Est letting value
- 1,130.21 £/moUnchanged by 0.00 %
- Est rental Yield
- 2.92 %Decreased by 28.08 %
- Crime Rate
- 7.00 %Unchanged by 0.00 %
Agent Activity
Acobas created the listing.
Nearby Schools
| Name | Type | Ofsted | Distance |
|---|---|---|---|
| Manor Park Primary School And Nursery | Academy Converter | 0.48 KM | |
| Knutsford Children'S Centre | Children's Centre | 0.60 KM | |
| St Vincent'S Catholic Primary School | Voluntary Aided School | Good | 0.77 KM |
| Adelaide Heath Academy | Academy Special Sponsor Led | 0.98 KM | |
| Egerton Primary School | Academy Converter | 1.92 KM |
Images
Nearby Streets
| Name | Average Price | Average Sqft | Distance |
|---|---|---|---|
| Drinkwater Close | £ 0 | 0 | 0.00 KM |
| Beechwood | £ 0 | 0 | 0.00 KM |
| Brookdale Avenue | £ 0 | 0 | 0.00 KM |
| Jackson Road | £ 425,000 | 0 | 0.00 KM |
| Lichfield Close | £ 0 | 0 | 0.00 KM |
Nearby Transport
| Name | NLC | TLC | Distance |
|---|---|---|---|
| Knutsford | 2848 | KNF | 1.54 KM |
| Mobberley | 2849 | MOB | 3.66 KM |
| Ashley | 2850 | ASY | 5.54 KM |
| Plumley | 2308 | PLM | 7.62 KM |
| Hale (Manchester) | 2845 | HAL | 7.83 KM |
Nearby Listings
| Address | Price | Type | Score | Distance |
|---|---|---|---|---|
| Parkgate Lane, Knutsford | £ 450,000 | BUY | 7 / 10 | 0.00 KM |
| Lodge Road, Knutsford | £ 450,000 | BUY | 7 / 10 | 0.07 KM |
| Heath Lodge Close, Knutsford | £ 415,000 | BUY | Unknown | 0.09 KM |
| Parkgate, Knutsford | £ 325,000 | BUY | 7 / 10 | 0.13 KM |
| Mobberley Road, Knutsford | £ 395,000 | BUY | 7 / 10 | 0.15 KM |
Nearby Properties
| Address | Price | Distance |
|---|---|---|
| 22 Parkgate Lane | £ 327,500 | 0.06 KM |
| 9 Parkgate Lane | £ 325,000 | 0.06 KM |
| 20 Parkgate Lane | £ 295,500 | 0.06 KM |
| 16 Parkgate Lane | £ 161,500 | 0.06 KM |
| 24 Parkgate Lane | £ 271,000 | 0.06 KM |