Brooklands Road, Exmouth
By Links Estate Agents
£ 265,000
Reviews
3 out of 5 stars
Links Estate Agents says ..
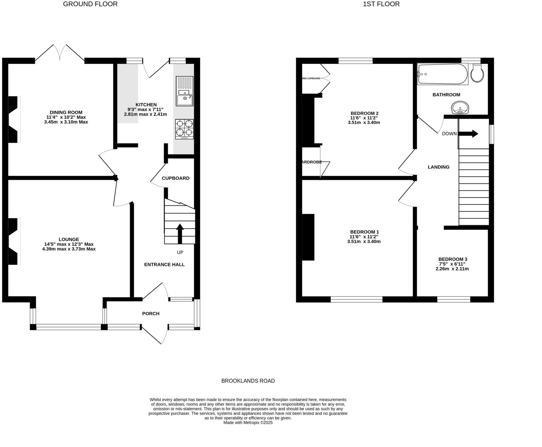
An attractive 3 bedroom bay fronted semi detached house benefiting from having a good size rear garden and off road parking tucked away in a popular cul-de-sac close to a range of local schools and bus services. Offered for sale with NO ONWARD CHAIN.
Property Oracle says ..
This is a three-bedroom semi-detached house in Exmouth. The property offers a good amount of space at 672.77 sqft and includes a garden. While the house requires some modernisation, it is located in a convenient area close to schools and transport links. The price seems reasonable given the location and size of the property, making it a potentially good investment for first-time buyers or families looking to settle in Exmouth.
Therefore, we give this property 6 / 10. *Disclaimer: This is our option and does constitute a recommendation or financial advice. Do your own research. *
- Price
- 7
- Condition
- 5
- Location
- 7
- Land
- 7
- Bedrooms
- 3
- Bathrooms
- 1
- Sqft (est)
- 672.77
The heatmap indicates the level of crime in the area. The color of the heatmap indicates the crime severity and recency.
Metrics Year-on-Year
- Average area value
- 322,940.00 £Decreased by 9.74 %
- Est sale value
- 255,652.60 £Increased by 6.44 %
- Average area rental value
- 1,284.00 £/moIncreased by 22.29 %
- Est letting value
- 672.77 £/moUnchanged by 0.00 %
- Est rental Yield
- 4.77 %Increased by 35.51 %
- Crime Rate
- 6.00 %Unchanged by 0.00 %
Agent Activity
Links Estate Agents created the listing.
Nearby Schools
| Name | Type | Ofsted | Distance |
|---|---|---|---|
| Marpool Primary School | Foundation School | Good | 0.27 KM |
| Exmouth & District Children'S Centre | Children's Centre | 0.46 KM | |
| Withycombe Raleigh Church Of England Primary School | Voluntary Controlled School | Good | 0.69 KM |
| Brixington Primary Academy | Academy Sponsor Led | Requires improvement | 0.88 KM |
| Bassetts Farm Primary School | Foundation School | Good | 0.89 KM |
Images
Nearby Streets
| Name | Average Price | Average Sqft | Distance |
|---|---|---|---|
| St John's Road | £ 270,000 | 0 | 0.00 KM |
| Brook Meadow | £ 0 | 0 | 0.00 KM |
| Broad Park Road | £ 350,000 | 0 | 0.00 KM |
| Somerville Close | £ 0 | 0 | 0.00 KM |
| Linden Close | £ 289,950 | 0 | 0.00 KM |
Nearby Transport
| Name | NLC | TLC | Distance |
|---|---|---|---|
| Exmouth | 5756 | EXM | 2.65 KM |
| Lympstone Village | 5761 | LYM | 4.68 KM |
| Starcross | 3413 | SCS | 6.09 KM |
| Lympstone Commando | 5762 | LYC | 6.39 KM |
| Dawlish Warren | 3409 | DWW | 6.64 KM |
Nearby Listings
| Address | Price | Type | Score | Distance |
|---|---|---|---|---|
| Brooklands Road, Exmouth | £ 265,000 | BUY | 6 / 10 | 0.00 KM |
| Holland Road, Exmouth | £ 350,000 | BUY | 7 / 10 | 0.10 KM |
| St. Johns Road, Exmouth, EX8 4DD | £ 450,000 | BUY | 7 / 10 | 0.11 KM |
| St Johns road, Exmouth, EX8 4BY | £ 400,000 | BUY | 7 / 10 | 0.13 KM |
| ST. JOHNS ROAD, Exmouth, EX8 4BY | £ 350,000 | BUY | 6 / 10 | 0.13 KM |
Nearby Properties
| Address | Price | Distance |
|---|---|---|
| 24 Brooklands Road | £ 173,000 | 0.01 KM |
| 19 Brooklands Road | £ 208,000 | 0.01 KM |
| 29 Brooklands Road | £ 194,195 | 0.01 KM |
| 23 Brooklands Road | £ 176,950 | 0.01 KM |
| 26 Brooklands Road | £ 168,000 | 0.01 KM |