Alex & Matteo says ..
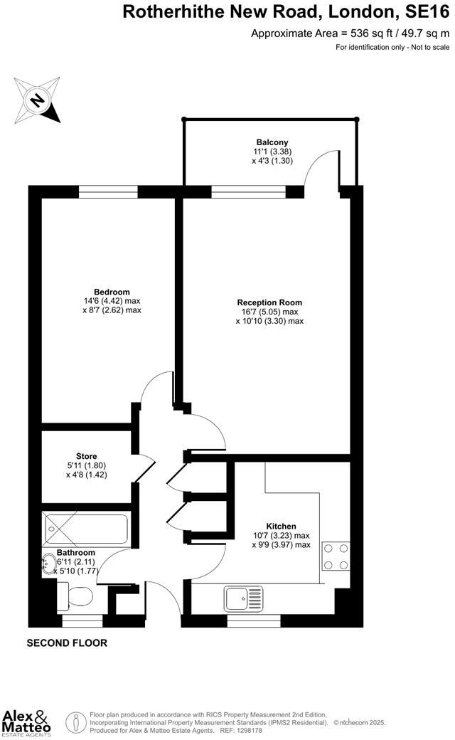
A spacious one bedroom apartment with private terrace located a stroll away from Southwark Park, Surrey Quays Overground, Canada Water and Bermondsey Stations. Featuring a well-kept separate kitchen, a naturally bright bright reception room with access to a private balcony, a double bedroom w...
Property Oracle says ..
Therefore, we give this property 5 / 10. *Disclaimer: This is our option and does constitute a recommendation or financial advice. Do your own research. *
- Price
- 5
- Condition
- 6
- Location
- 7
- Land
- 3
- Bedrooms
- 1
- Bathrooms
- 1
- Sqft (est)
- 536.00
The heatmap indicates the level of crime in the area. The color of the heatmap indicates the crime severity and recency.
Metrics Year-on-Year
- Average area value
- 622,222.00 £Increased by 5.44 %
- Est sale value
- 531,712.00 £Increased by 48.95 %
- Average area rental value
- 2,241.00 £/moIncreased by 5.31 %
- Est letting value
- 1,608.00 £/moIncreased by 50.00 %
- Est rental Yield
- 4.32 %Decreased by 0.23 %
- Crime Rate
- 8.00 %Unchanged by 0.00 %
from 590,127.00 £
from 356,976.00 £
from 2,128.00 £/mo
from 1,072.00 £/mo
from 4.33 %
from 8.00 %
Agent Activity
Alex & Matteo created the listing.
Nearby Schools
| Name | Type | Ofsted | Distance |
|---|---|---|---|
| Cavendish School | Other Independent Special School | Outstanding | 0.09 KM |
| Rotherhithe Primary School & Children'S Centre | Children's Centre | 0.23 KM | |
| Rotherhithe Primary School | Community School | Good | 0.23 KM |
| St Joseph'S Catholic Primary School | Voluntary Aided School | Outstanding | 0.46 KM |
| Ilderton Primary School | Community School | Outstanding | 0.71 KM |
Images
Nearby Streets
| Name | Average Price | Average Sqft | Distance |
|---|---|---|---|
| Hawkstone Road | £ 0 | 0 | 0.00 KM |
| Warndon Street | £ 0 | 0 | 0.00 KM |
| Bolina Road | £ 0 | 0 | 0.00 KM |
| Luxford Street | £ 0 | 0 | 0.00 KM |
| Stockholm Road | £ 0 | 0 | 0.00 KM |
Nearby Transport
| Name | NLC | TLC | Distance |
|---|---|---|---|
| South Bermondsey | 5425 | SBM | 0.44 KM |
| Surrey Quays | 1083 | SQE | 0.54 KM |
| New Cross | 5150 | NWX | 0.82 KM |
| Canada Water | 1659 | ZCW | 0.82 KM |
| Rotherhithe | 1039 | ROE | 1.10 KM |
Nearby Listings
| Address | Price | Type | Score | Distance |
|---|---|---|---|---|
| Westlake, Bermondsey, SE16 | £ 300,000 | BUY | 5 / 10 | 0.00 KM |
| George Walter Court, Millender Walk, Bermondsey | £ 375,000 | BUY | 6 / 10 | 0.05 KM |
| Cape Apartments, Rotherhithe SE16 | £ 475,000 | BUY | 5 / 10 | 0.05 KM |
| Rotherhithe New Road, London, SE16 | £ 465,000 | BUY | 7 / 10 | 0.08 KM |
| Millender Walk, South Bermondsey, London, SE16 | £ 435,000 | BUY | 6 / 10 | 0.08 KM |
Nearby Properties
| Address | Price | Distance |
|---|---|---|
| 14 Millender Walk | £ 167,000 | 0.11 KM |
| 12 Millender Walk | £ 425,000 | 0.11 KM |
| 42 Millender Walk | £ 310,000 | 0.11 KM |
| 17 Millender Walk | £ 202,000 | 0.11 KM |
| 62 Millender Walk | £ 210,000 | 0.15 KM |