D'Abernon Drive, Stoke D'Abernon, Cobham, KT11
By Curchods Estate Agents
£ 925,000
Reviews
3 out of 5 stars
Curchods Estate Agents says ..
A beautifully presented, traditional 1940's semi-detached house with a wonderful mature garden, parking and separate garage, situated within a short walk of Cobham station.
Property Oracle says ..
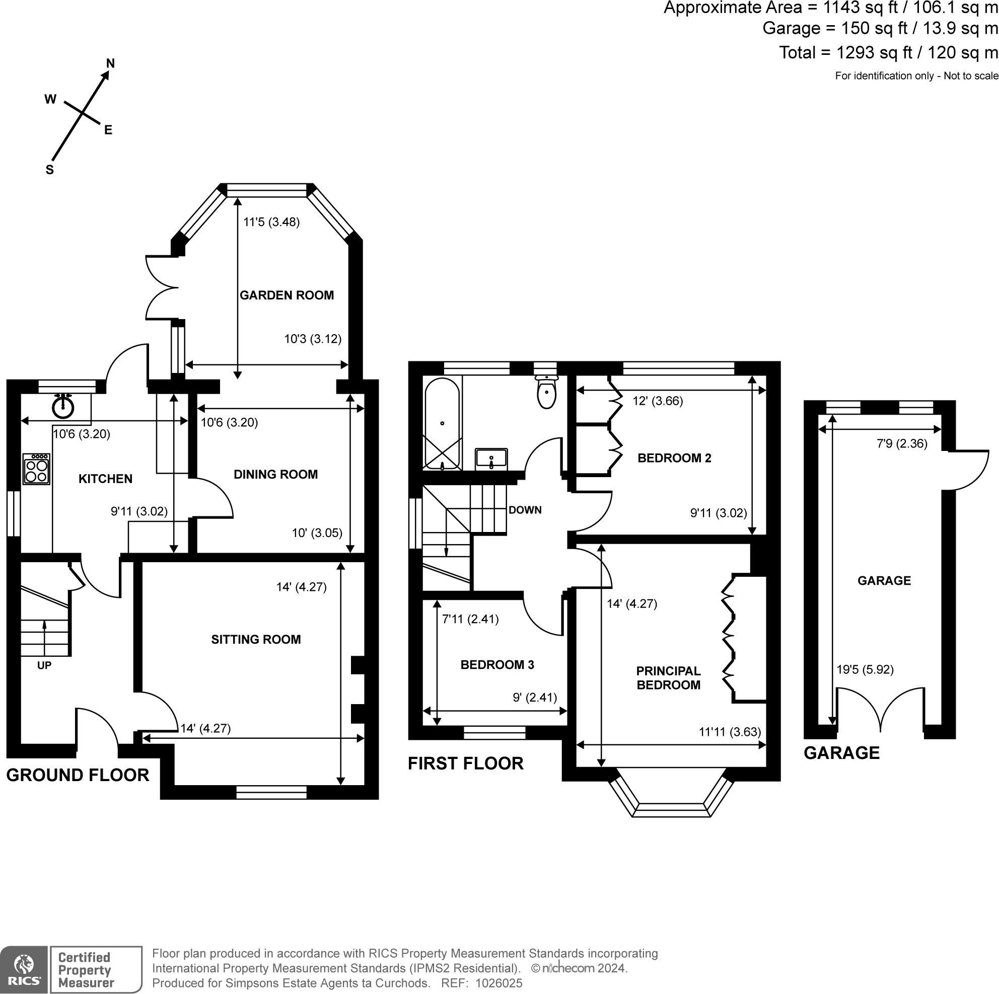
This 3-bedroom semi-detached house in Stoke D’Abernon, Cobham (KT11 3JD) is marketed by Curchods Estate Agents. The property is presented well, with updated kitchen and bathroom fixtures visible in the photographs. The house features a sizable garden offering potential for outdoor entertaining and privacy. Its location is arguably the key selling point – proximity to Cobham & Stoke D’Abernon station offers convenient access to London and other commuter locations. The relatively short distances to a selection of well-regarded schools (although Ofsted reports are absent for most schools) also enhances the family appeal of the property. While the precise plot size is missing, the provided images show substantial outdoor space. The asking price of £925,000 needs to be considered against the available comparable properties within the immediate vicinity. This requires more specific information on comparable properties to confirm that it is accurately priced compared to the size of the property.
Therefore, we give this property 7 / 10. *Disclaimer: This is our option and does constitute a recommendation or financial advice. Do your own research. *
- Price
- 7
- Condition
- 7
- Location
- 8
- Land
- 7
- Bedrooms
- 3
- Bathrooms
- 1
- Sqft (est)
- 1,293.00
The heatmap indicates the level of crime in the area. The color of the heatmap indicates the crime severity and recency.
Metrics Year-on-Year
- Average area value
- 2,841,000.00 £Increased by 22.87 %
- Est sale value
- 893,463.00 £Increased by 31.62 %
- Average area rental value
- 8,865.00 £/moIncreased by 43.89 %
- Est letting value
- 2,586.00 £/moIncreased by 100.00 %
- Est rental Yield
- 3.74 %Increased by 16.88 %
- Crime Rate
- 12.00 %Unchanged by 0.00 %
Agent Activity
Curchods Estate Agents marked this listing as sold.
Curchods Estate Agents created the listing.
Nearby Schools
| Name | Type | Ofsted | Distance |
|---|---|---|---|
| Parkside School | Other Independent School | 1.19 KM | |
| Cobham Sure Start Children'S Centre | Children's Centre | 2.09 KM | |
| Cobham Montessori School | Other Independent School | 2.10 KM | |
| St Andrew'S Cofe Primary School | Academy Converter | Good | 2.17 KM |
| The Yehudi Menuhin School | Other Independent School | 2.20 KM |
Images
Nearby Streets
| Name | Average Price | Average Sqft | Distance |
|---|---|---|---|
| Tilt Close | £ 0 | 0 | 0.00 KM |
| The Laurels | £ 0 | 0 | 0.00 KM |
| Fairfield Park | £ 0 | 0 | 0.00 KM |
| Grenville Close | £ 0 | 0 | 0.00 KM |
Nearby Transport
| Name | NLC | TLC | Distance |
|---|---|---|---|
| Cobham And Stoke D'Abernon | 5557 | CSD | 0.29 KM |
| Bookham | 5626 | BKA | 3.56 KM |
| Oxshott | 5602 | OXS | 3.68 KM |
| Effingham Junction | 5642 | EFF | 4.48 KM |
| Hersham | 5590 | HER | 6.34 KM |
Nearby Listings
| Address | Price | Type | Score | Distance |
|---|---|---|---|---|
| D'Abernon Drive, Stoke D'Abernon, Cobham, KT11 | £ 925,000 | BUY | 7 / 10 | 0.00 KM |
| D'Abernon Drive, Stoke D'Abernon, Cobham, KT11 | £ 1,050,000 | BUY | Unknown | 0.05 KM |
| Vincent Road, Cobham, KT11 | £ 1,425,000 | BUY | 8 / 10 | 0.20 KM |
| Vincent Road, Stoke D'abernon, KT11 | £ 1,325,000 | BUY | 7 / 10 | 0.22 KM |
| Bray Road, Stoke D'Abernon, Cobham, Surrey, KT11 | £ 375,000 | BUY | 6 / 10 | 0.23 KM |
Nearby Properties
| Address | Price | Distance |
|---|---|---|
| 18 Dabernon Drive | £ 653,250 | 0.01 KM |
| 24 Dabernon Drive | £ 742,500 | 0.01 KM |
| 20 Dabernon Drive | £ 485,000 | 0.01 KM |
| 10 D'abernon Drive | £ 982,500 | 0.01 KM |
| 16 Dabernon Drive | £ 575,000 | 0.01 KM |