JA
Billing Road, Abington, NN1 5RS
By Jackson Grundy Estate Agents
£ 343,000
Reviews
3 out of 5 stars
Jackson Grundy Estate Agents says ..
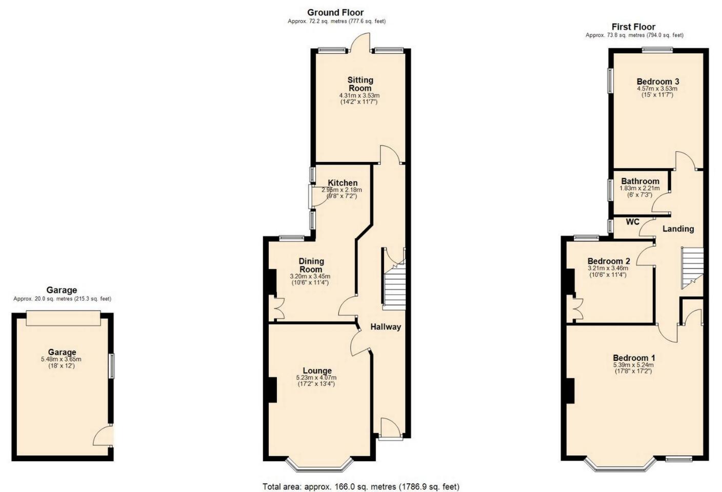
Located close to Northampton School For Boys, Northampton General Hospital and Abington Park is this fantastic opportunity to acquire this larger than average, three bedroom terrace family home, which could be configured into a four bedroom home.
Property Oracle says ..
Therefore, we give this property 6 / 10. *Disclaimer: This is our option and does constitute a recommendation or financial advice. Do your own research. *
- Price
- 6
- Condition
- 3
- Location
- 9
- Land
- 7
- Bedrooms
- 3
- Bathrooms
- 1
- Sqft (est)
- 1,436.96
The heatmap indicates the level of crime in the area. The color of the heatmap indicates the crime severity and recency.
Metrics Year-on-Year
- Average area value
- 253,125.00 £Decreased by 4.14 %
- Est sale value
- 252,904.96 £Decreased by 28.74 %
- Average area rental value
- 927.00 £/moDecreased by 14.48 %
- Est letting value
- 0.00 £/moDecreased by 100.00 %
- Est rental Yield
- 4.39 %Decreased by 10.95 %
- Crime Rate
- 0.00 %
from 264,069.00 £
from 354,929.12 £
from 1,084.00 £/mo
from 1,436.96 £/mo
from 4.93 %
from 0.00 %
Agent Activity
Jackson Grundy Estate Agents created the listing.
Nearby Schools
| Name | Type | Ofsted | Distance |
|---|---|---|---|
| Northampton School For Boys | Academy Converter | Outstanding | 0.20 KM |
| St Andrew'S College | Other Independent School | Outstanding | 0.34 KM |
| Barry Primary School | Community School | Good | 0.54 KM |
| Stimpson Avenue Academy | Academy Sponsor Led | Requires improvement | 0.97 KM |
| Vernon Terrace Primary School | Community School | Good | 1.15 KM |
Images
Nearby Streets
| Name | Average Price | Average Sqft | Distance |
|---|---|---|---|
| Sandringham Close | £ 0 | 0 | 0.00 KM |
| Melbourne Street | £ 0 | 0 | 0.00 KM |
| Park Avenue | £ 0 | 0 | 0.00 KM |
| Abington Avenue | £ 265,000 | 0 | 0.00 KM |
| New Town Road | £ 0 | 0 | 0.00 KM |
Nearby Transport
| Name | NLC | TLC | Distance |
|---|---|---|---|
| Northampton | 1069 | NMP | 4.14 KM |
Nearby Listings
| Address | Price | Type | Score | Distance |
|---|---|---|---|---|
| Billing Road, Abington, NN1 5RS | £ 343,000 | BUY | 6 / 10 | 0.00 KM |
| Billing Road, Northampton, Northamptonshire, NN1 | £ 415,000 | BUY | 6 / 10 | 0.00 KM |
| Billing Road, Abington, Northampton, NN1 | £ 415,000 | BUY | 7 / 10 | 0.00 KM |
| Billing Road, Northampton, Northamptonshire, NN1 5RS | £ 305,000 | BUY | 6 / 10 | 0.07 KM |
| Loyd Road, Abington | £ 310,000 | BUY | 6 / 10 | 0.09 KM |
Nearby Properties
| Address | Price | Distance |
|---|---|---|
| 187 Billing Road | £ 455,000 | 0.09 KM |
| 167 Billing Road | £ 307,500 | 0.09 KM |
| 195 Billing Road | £ 310,000 | 0.09 KM |
| 183 Billing Road | £ 270,000 | 0.09 KM |
| 173 Billing Road | £ 450,000 | 0.09 KM |