SH
Cumbernauld Road, Riddie, G33 2EH
By Shanta Residential
£ 120,000
Reviews
3 out of 5 stars
Shanta Residential says ..
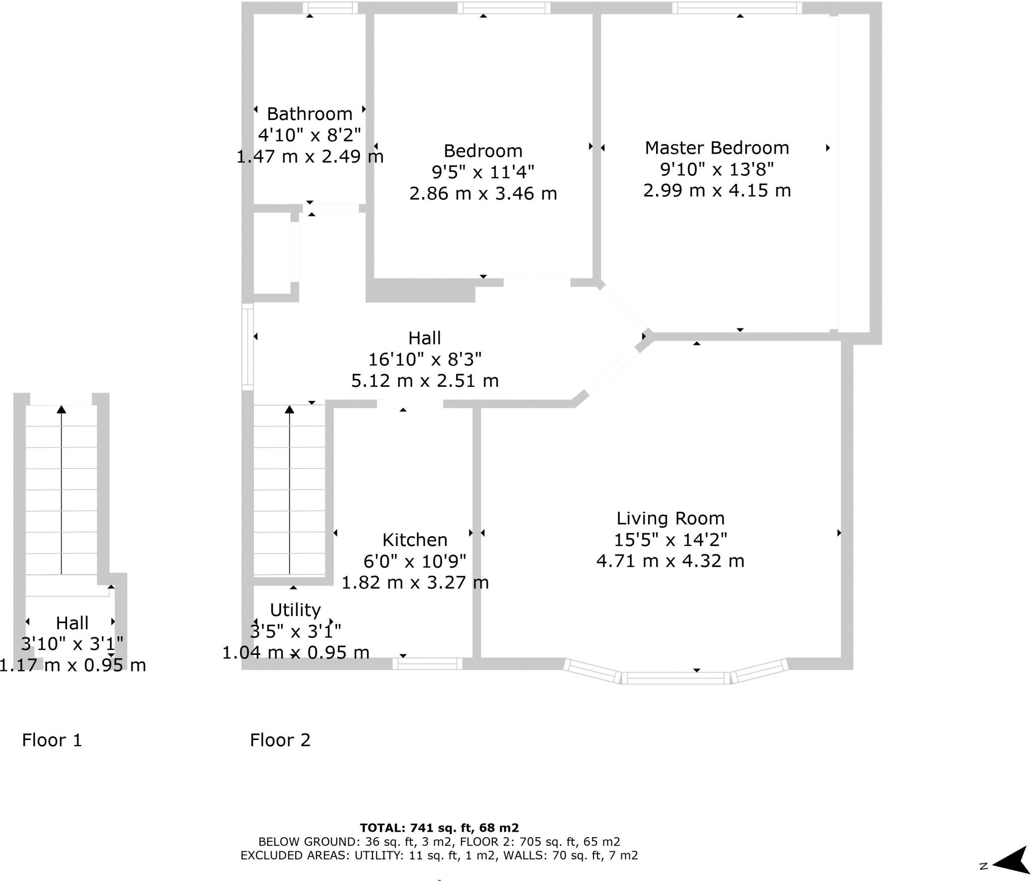
Shanta Residential is delighted to present to the market this excellent two bedroom, upper cottage flat located in Riddrie, Glasgow. As you enter the home, you are welcomed into a bright hallway, tastefully decorated in neutral tones with wood-style flooring that flows seamlessly throughout. Th...
Property Oracle says ..
Therefore, we give this property 7 / 10. *Disclaimer: This is our option and does constitute a recommendation or financial advice. Do your own research. *
- Price
- 8
- Condition
- 7
- Location
- 6
- Land
- 7
- Bedrooms
- 2
- Bathrooms
- 1
- Sqft (est)
- 741.00
The heatmap indicates the level of crime in the area. The color of the heatmap indicates the crime severity and recency.
Metrics Year-on-Year
- Average area value
- 152,142.00 £Increased by 6.30 %
- Est sale value
- 182,286.00 £Increased by 43.02 %
- Average area rental value
- 1,060.00 £/moIncreased by 14.47 %
- Est letting value
- 741.00 £/moUnchanged by 0.00 %
- Est rental Yield
- 8.36 %Increased by 7.73 %
- Crime Rate
- 0.00 %
from 143,128.00 £
from 127,452.00 £
from 926.00 £/mo
from 741.00 £/mo
from 7.76 %
from 0.00 %
Agent Activity
Shanta Residential created the listing.
Images
Nearby Streets
| Name | Average Price | Average Sqft | Distance |
|---|---|---|---|
| Longford Street | £ 135,000 | 0 | 0.00 KM |
| Duchray Street | £ 0 | 0 | 0.00 KM |
| Nith Street | £ 89,950 | 0 | 0.00 KM |
| Tweed Crescent | £ 0 | 0 | 0.00 KM |
| Hogarth Crescent | £ 125,000 | 0 | 0.00 KM |
Nearby Transport
| Name | NLC | TLC | Distance |
|---|---|---|---|
| Alexandra Parade | 9905 | AXP | 1.84 KM |
| Carntyne | 9897 | CAY | 2.12 KM |
| Duke Street | 9906 | DST | 2.23 KM |
| Barnhill | 9973 | BNL | 3.43 KM |
| Bellgrove | 9895 | BLG | 3.48 KM |
Nearby Listings
| Address | Price | Type | Score | Distance |
|---|---|---|---|---|
| Cumbernauld Road, Riddie, G33 2EH | £ 120,000 | BUY | 7 / 10 | 0.00 KM |
| Cumbernauld Road, Glasgow, G33 | £ 115,000 | BUY | 7 / 10 | 0.07 KM |
| Cumbernauld Road, Glasgow, G33 | £ 145,000 | BUY | 6 / 10 | 0.09 KM |
| Findhorn Street, Riddrie, Glasgow, G33 | £ 125,000 | BUY | 6 / 10 | 0.11 KM |
| Flat 2/2, 18 Gadie Street, Riddrie, Glasgow, G33 | £ 140,000 | BUY | Unknown | 0.13 KM |