AN
Portland Place, Bath, BA1
By Andrews Letting and Management
£ 1,550
Andrews Letting and Management says ..
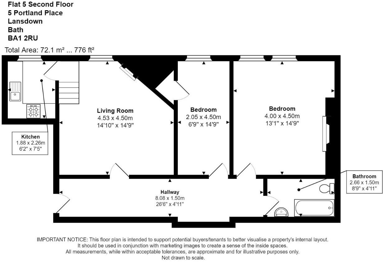
Second floor apartment within a listed Georgian townhouse. The unfurnished accommodation is offers entrance hall/study area, reception room, kitchen with gas hob/oven/extractor, fridge and a washing machine, two bedrooms and a bathroom with shower over bath. Benefits include gas central heating, ...
- Bedrooms
- 2
- Bathrooms
- 1
The heatmap indicates the level of crime in the area. The color of the heatmap indicates the crime severity and recency.
Metrics Year-on-Year
- Average area value
- 411,214.00 £Decreased by 39.25 %
- Average area rental value
- 1,876.00 £/moIncreased by 11.40 %
- Est rental Yield
- 5.47 %Increased by 82.94 %
- Crime Rate
- 15.00 %Unchanged by 0.00 %
from 676,899.00 £
from 1,684.00 £/mo
from 2.99 %
from 15.00 %
Agent Activity
Andrews Letting and Management created the listing.
Nearby Schools
| Name | Type | Ofsted | Distance |
|---|---|---|---|
| St Andrew'S Church School | Academy Converter | 0.27 KM | |
| Bath Academy | Other Independent School | 0.62 KM | |
| Parkside Children'S Centre | Children's Centre | 0.69 KM | |
| St Stephens Church School | Academy Converter | 0.78 KM | |
| Royal High School Gdst | Other Independent School | 0.87 KM |
Images
Nearby Streets
| Name | Average Price | Average Sqft | Distance |
|---|---|---|---|
| The Shrubbery | £ 0 | 0 | 0.00 KM |
| Upper Church Street | £ 0 | 0 | 0.00 KM |
| Mount Road | £ 0 | 0 | 0.00 KM |
| Ainslie's Belvedere | £ 0 | 0 | 0.00 KM |
| Upper Hedgemead Road | £ 570,000 | 0 | 0.00 KM |
Nearby Transport
| Name | NLC | TLC | Distance |
|---|---|---|---|
| Bath Spa | 3271 | BTH | 1.56 KM |
| Oldfield Park | 3219 | OLF | 2.08 KM |
| Freshford | 3344 | FFD | 8.80 KM |
Nearby Listings
| Address | Price | Type | Score | Distance |
|---|---|---|---|---|
| Portland Place, Lansdown, Bath, BA1 | £ 1,000 | RENT | Unknown | 0.00 KM |
| Portland Place, Bath, BA1 | £ 1,550 | RENT | Unknown | 0.00 KM |
| 2 Portland Place Bath BA1 | £ 1,400 | RENT | Unknown | 0.02 KM |
| Portland Place, Lansdown, Bath | £ 1,475 | RENT | Unknown | 0.03 KM |
| Portland Place | £ 1,500 | RENT | Unknown | 0.04 KM |
Nearby Properties
| Address | Price | Distance |
|---|---|---|
| 4 | £ 422,500 | 0.01 KM |
| 10 Portland Place | £ 277,500 | 0.02 KM |
| 5 | £ 515,000 | 0.02 KM |
| 18a Portland Place | £ 225,000 | 0.05 KM |
| 17 Burlington Street | £ 602,000 | 0.07 KM |