Rose Cottage, Lansdown Walk, Bream, Lydney
By The Property Hub
£ 445,000
Reviews
3 out of 5 stars
The Property Hub says ..
A spacious and well-presented four bedroom Cottage, with enclosed gardens. Situated in an ideal village location close to local amenities. Opportunity for those looking for multigenerational living, an annexe, or a potential source of rental income.
Property Oracle says ..
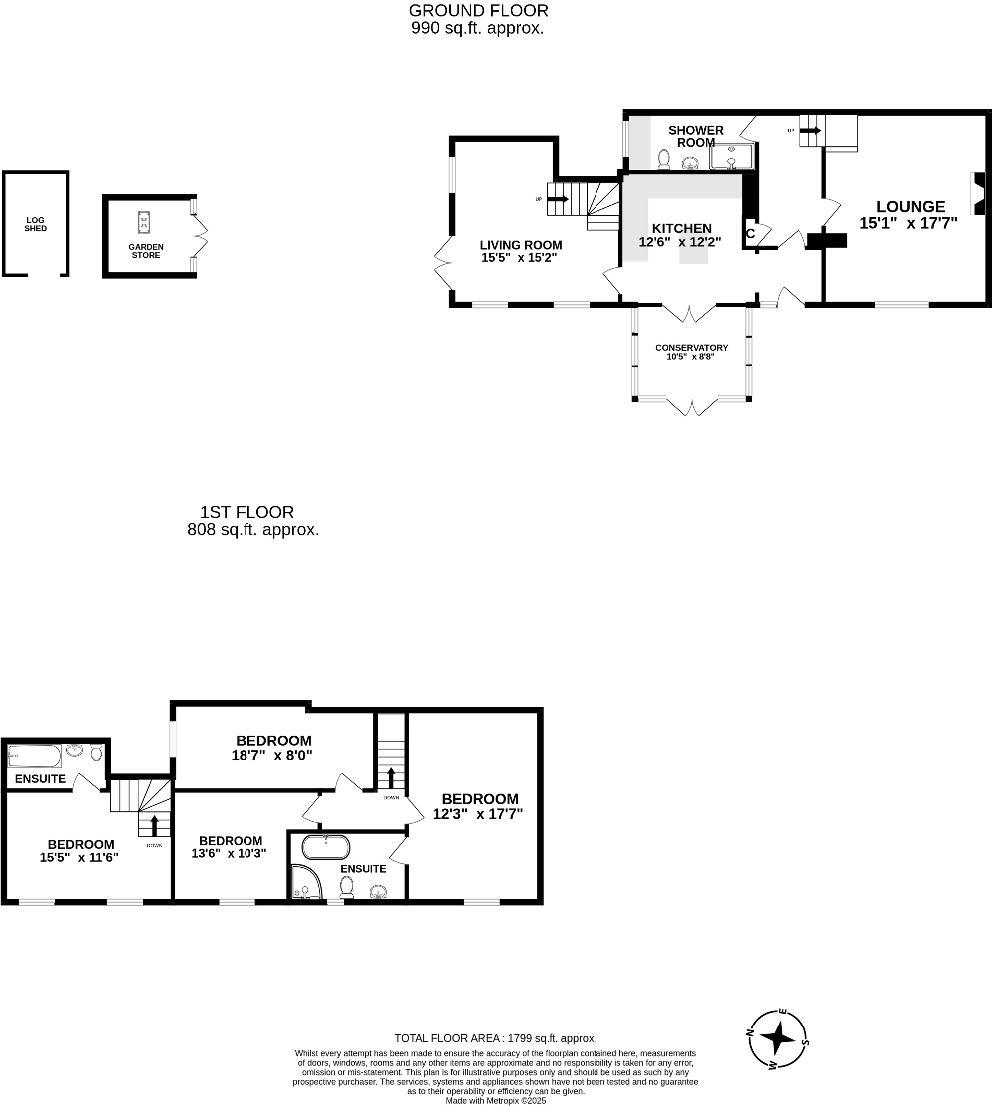
Rose Cottage is a well-presented semi-detached property located in the village of Bream. The house offers four bedrooms and three bathrooms, making it suitable for families. The modern kitchen and well-maintained bathrooms add to the appeal. The property benefits from a good-sized garden with a shed, providing outdoor space for recreation and storage. While the price per square foot is slightly higher than the area average, the overall condition and features of the property justify the listing price. The proximity to local amenities and schools, as well as transportation links, make this a desirable family home. The property has a modern feel and benefits from a conservatory.
Therefore, we give this property 7 / 10. *Disclaimer: This is our option and does constitute a recommendation or financial advice. Do your own research. *
- Price
- 7
- Condition
- 8
- Location
- 7
- Land
- 7
- Bedrooms
- 4
- Bathrooms
- 3
- Sqft (est)
- 1,428.70
The heatmap indicates the level of crime in the area. The color of the heatmap indicates the crime severity and recency.
Metrics Year-on-Year
- Average area value
- 268,125.00 £Increased by 15.58 %
- Est sale value
- 390,035.10 £Increased by 19.21 %
- Average area rental value
- 1,044.00 £/moIncreased by 5.56 %
- Est letting value
- 1,428.70 £/mo
- Est rental Yield
- 4.67 %Decreased by 8.79 %
- Crime Rate
- 45.00 %Unchanged by 0.00 %
Agent Activity
The Property Hub created the listing.
Nearby Schools
| Name | Type | Ofsted | Distance |
|---|---|---|---|
| Bream Church Of England Primary School | Academy Sponsor Led | 0.22 KM | |
| Pillowell Community Primary School | Community School | Good | 3.18 KM |
| Parkend Primary School | Community School | Requires improvement | 3.29 KM |
| Ellwood Primary School | Community School | Good | 3.51 KM |
| Aylburton Church Of England Primary School | Academy Converter | 4.39 KM |
Images
Nearby Streets
| Name | Average Price | Average Sqft | Distance |
|---|---|---|---|
| Whitecroft Road | £ 337,500 | 0 | 0.00 KM |
| Ryelands Road | £ 0 | 0 | 0.00 KM |
| Whitechapel Road | £ 0 | 0 | 0.00 KM |
| Highbury Road | £ 232,492 | 0 | 0.00 KM |
| Henley Road | £ 0 | 0 | 0.00 KM |
Nearby Transport
| Name | NLC | TLC | Distance |
|---|---|---|---|
| Lydney | 4826 | LYD | 6.12 KM |
Nearby Listings
| Address | Price | Type | Score | Distance |
|---|---|---|---|---|
| Rose Cottage, Lansdown Walk, Bream, Lydney | £ 445,000 | BUY | 7 / 10 | 0.00 KM |
| Blue Rock Crescent, Bream, Lydney | £ 450,000 | BUY | 6 / 10 | 0.11 KM |
| Lansdown Walk, Bream, Lydney | £ 650,000 | BUY | 7 / 10 | 0.12 KM |
| Highview Way, Bream, Lydney | £ 425,000 | BUY | 6 / 10 | 0.14 KM |
| Beech Way, Bream, Lydney, Gloucestershire. GL15 6NB | £ 300,000 | BUY | Unknown | 0.15 KM |
Nearby Properties
| Address | Price | Distance |
|---|---|---|
| Deansview Bungalow | £ 129,950 | 0.17 KM |
| High View | £ 199,950 | 0.17 KM |
| Rhos Craig | £ 175,000 | 0.17 KM |
| Ivy House | £ 248,000 | 0.17 KM |
| Cherry Tree | £ 225,000 | 0.17 KM |