Syr Dafydd Avenue, OAKDALE, NP120LA
By Cariad Property
£ 179,995
Reviews
3 out of 5 stars
Cariad Property says ..
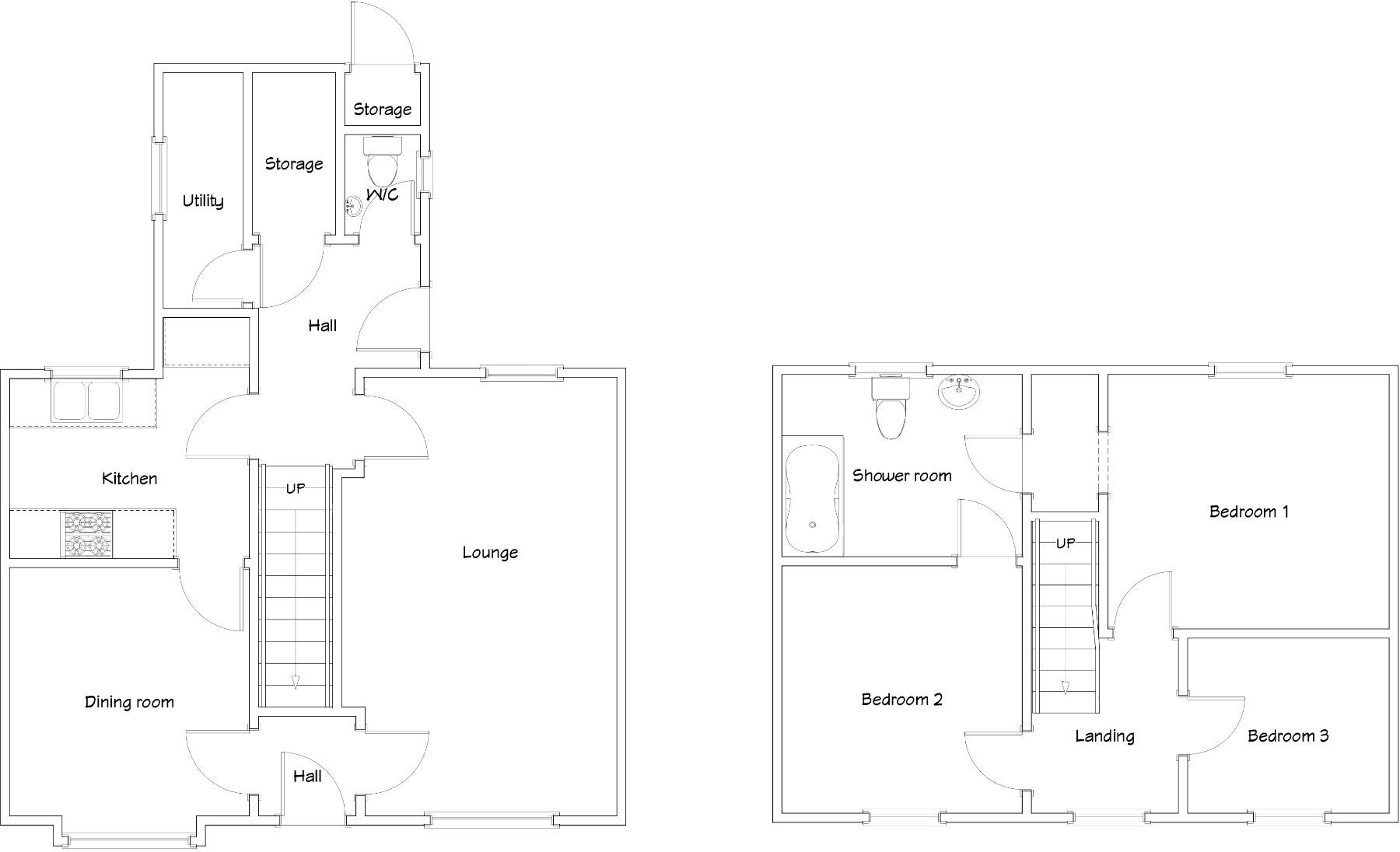
ADORABLE DOUBLE FRONTED FAMILY HOME, hugely sought after village position, front garden, and an exceptionally large rear garden too, two reception rooms, three bedrooms, so charming with no chain.
Property Oracle says ..
Therefore, we give this property 7 / 10. *Disclaimer: This is our option and does constitute a recommendation or financial advice. Do your own research. *
- Price
- 8
- Condition
- 6
- Location
- 7
- Land
- 7
- Bedrooms
- 3
- Bathrooms
- 2
- Sqft (est)
- 1,234.00
The heatmap indicates the level of crime in the area. The color of the heatmap indicates the crime severity and recency.
Metrics Year-on-Year
- Average area value
- 333,429.00 £Increased by 23.91 %
- Est sale value
- 352,924.00 £Increased by 10.85 %
- Average area rental value
- 995.00 £/moIncreased by 7.57 %
- Est letting value
- 0.00 £/mo
- Est rental Yield
- 3.58 %Decreased by 13.32 %
- Crime Rate
- 57.00 %Unchanged by 0.00 %
from 269,090.00 £
from 318,372.00 £
from 925.00 £/mo
from 0.00 £/mo
from 4.13 %
from 57.00 %
Agent Activity
Cariad Property marked this listing as sold.
Cariad Property created the listing.
Nearby Schools
| Name | Type | Ofsted | Distance |
|---|---|---|---|
| Rhiw Syr Dafyedd Primary | Welsh Establishment | 0.35 KM | |
| Pontllanfraith Primary School | Welsh Establishment | 2.75 KM | |
| Libanus Primary School | Welsh Establishment | 2.89 KM | |
| Blackwood Comprehensive School | Welsh Establishment | 3.14 KM | |
| Blackwood Primary School | Welsh Establishment | 3.26 KM |
Images
Nearby Streets
| Name | Average Price | Average Sqft | Distance |
|---|---|---|---|
| Harp Field | £ 263,500 | 0 | 0.00 KM |
| Cae'R Garreg | £ 0 | 0 | 0.00 KM |
| Cae'r Hen Dy | £ 0 | 0 | 0.00 KM |
| B4251 | £ 599,950 | 0 | 0.00 KM |
| Pen-Y-Groes | £ 315,000 | 0 | 0.00 KM |
Nearby Transport
| Name | NLC | TLC | Distance |
|---|---|---|---|
| Newbridge | 9919 | NBE | 4.14 KM |
| Llanhilleth | 9916 | LTH | 5.09 KM |
| Gilfach Fargoed | 4022 | GFF | 5.49 KM |
| Bargoed | 4011 | BGD | 5.96 KM |
| Pengam | 4021 | PGM | 5.99 KM |
Nearby Listings
| Address | Price | Type | Score | Distance |
|---|---|---|---|---|
| Syr Dafydd Avenue, OAKDALE, NP12 | £ 199,999 | BUY | 7 / 10 | 0.00 KM |
| Syr Dafydd Avenue, OAKDALE, NP120LA | £ 179,995 | BUY | 7 / 10 | 0.00 KM |
| Tir-berllan, OAKDALE, NP12 | £ 315,000 | BUY | 7 / 10 | 0.10 KM |
| Tir-Berllan, Oakdale, NP12 | £ 290,000 | BUY | 7 / 10 | 0.10 KM |
| Tir-Berllan, Oakdale, Blackwood | £ 305,000 | BUY | 7 / 10 | 0.10 KM |
Nearby Properties
| Address | Price | Distance |
|---|---|---|
| 31 Syr Dafydd Avenue | £ 29,250 | 0.00 KM |
| 1 Syr Dafydd Avenue | £ 114,950 | 0.00 KM |
| 36 Syr Dafydd Avenue | £ 105,000 | 0.00 KM |
| 2 Syr Dafydd Avenue | £ 122,000 | 0.00 KM |
| 29 Syr Dafydd Avenue | £ 112,000 | 0.00 KM |