Railway Terrace, Rugby, Warwickshire CV21 3EZ
By Fine & Country
£ 650,000
Reviews
2 out of 5 stars
Fine & Country says ..
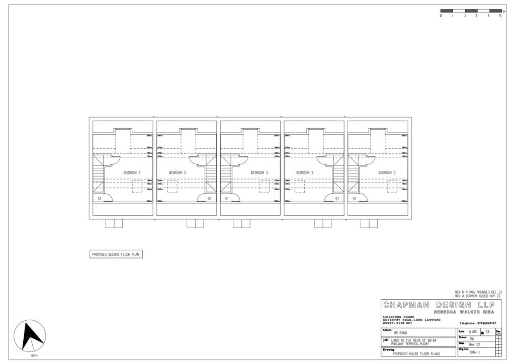
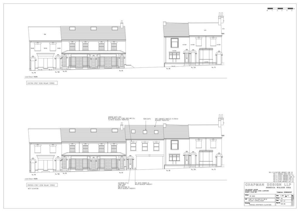
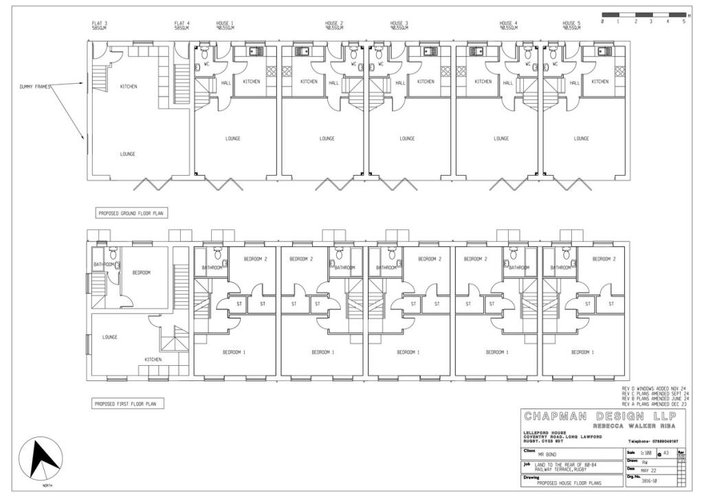
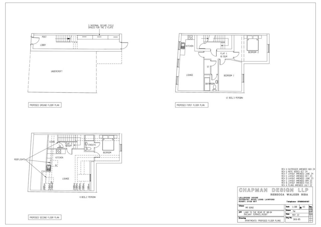
Prime Rugby town-centre development site with full planning for 5 houses and 4 apartments. High-demand location with excellent transport links, private parking, strong GDV potential, and ready-to-start freehold opportunity
Property Oracle says ..
This is a plot of land on Railway Terrace, Rugby, with planning permission for a new build. The location is good, with proximity to schools and transport links. However, the property requires complete construction, and the asking price seems high considering the work required. The plot size is a good size.
Therefore, we give this property 4 / 10. *Disclaimer: This is our option and does constitute a recommendation or financial advice. Do your own research. *
- Price
- 2
- Condition
- 1
- Location
- 7
- Land
- 6
- Bedrooms
- 0
- Bathrooms
- 0
- Lot (est)
- 8,971.00
The heatmap indicates the level of crime in the area. The color of the heatmap indicates the crime severity and recency.
Metrics Year-on-Year
- Average area value
- 252,500.00 £Increased by 21.08 %
- Average area rental value
- 820.00 £/moDecreased by 68.92 %
- Est rental Yield
- 3.90 %Decreased by 74.31 %
- Crime Rate
- 13.00 %Unchanged by 0.00 %
Agent Activity
Fine & Country created the listing.
Nearby Schools
| Name | Type | Ofsted | Distance |
|---|---|---|---|
| Northlands Primary School | Community School | Good | 0.12 KM |
| Lawrence Sheriff School | Academy Converter | 0.48 KM | |
| Claremont Children'S Centre (Formerly Rugby Parents Centre) | Children's Centre | 0.64 KM | |
| Rugby School | Other Independent School | 0.98 KM | |
| St Andrew'S Benn Cofe (Voluntary Aided) Primary School | Voluntary Aided School | Good | 1.21 KM |
Images
Nearby Streets
| Name | Average Price | Average Sqft | Distance |
|---|---|---|---|
| Albert Square | £ 0 | 0 | 0.00 KM |
| Craven Road | £ 200,000 | 0 | 0.00 KM |
| Gavel Drive | £ 0 | 0 | 0.00 KM |
| Barter Place | £ 0 | 0 | 0.00 KM |
| Church Walk | £ 525,000 | 0 | 0.00 KM |
Nearby Transport
| Name | NLC | TLC | Distance |
|---|---|---|---|
| Rugby | 1087 | RUG | 0.72 KM |
Nearby Listings
| Address | Price | Type | Score | Distance |
|---|---|---|---|---|
| Railway Terrace, Rugby, Warwickshire CV21 3EZ | £ 650,000 | BUY | 4 / 10 | 0.00 KM |
| Symington House, Spring Street, Town Centre | £ 125,000 | BUY | Unknown | 0.06 KM |
| Market Street, Rugby, Warwickshire, CV21 | £ 120,000 | BUY | 6 / 10 | 0.07 KM |
| Symington House, Spring Street, Rugby, CV21 | £ 175,000 | BUY | Unknown | 0.09 KM |
| Railway Terrace, Rugby, Warwickshire, CV21 | £ 165,000 | BUY | 7 / 10 | 0.10 KM |
Nearby Properties
| Address | Price | Distance |
|---|---|---|
| 158 Railway Terrace | £ 147,000 | 0.10 KM |
| 162 Railway Terrace | £ 94,000 | 0.10 KM |
| 148 Railway Terrace | £ 115,000 | 0.10 KM |
| 150 Railway Terrace | £ 520,000 | 0.10 KM |
| 156 Railway Terrace | £ 150,000 | 0.10 KM |