Agar Road, West Derby, Liverpool, L11
By Move Residential
£ 250,000
Reviews
3 out of 5 stars
Move Residential says ..
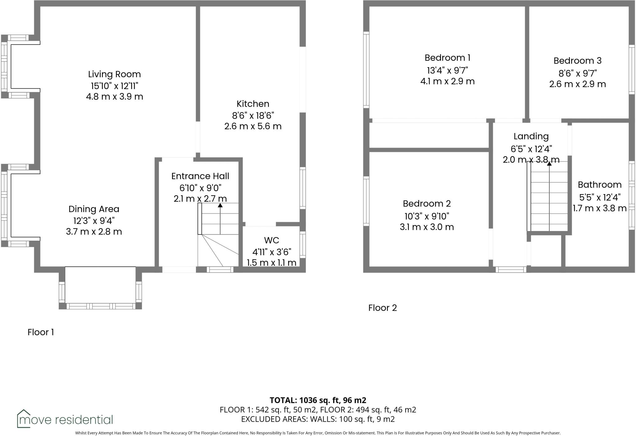
Located on Agar Road in the favoured residential area of West Derby, L11, is this fantastic three bedroom semi detached property, arriving at the sales market courtesy of appointed agents Move Residential. Generously proportioned and impeccably presented throughout, this promises to make a wonder...
Property Oracle says ..
This is a three-bedroom semi-detached house located on Agar Road in Clubmoor, West Derby, Liverpool. The property is in good condition, with modern fixtures and fittings. The kitchen and bathroom have been recently renovated. The property has a garden to the rear and off-street parking. The property is located close to local schools and amenities. The property is listed for £250,000, which is slightly above the average price for properties in the area.
Therefore, we give this property 6 / 10. *Disclaimer: This is our option and does constitute a recommendation or financial advice. Do your own research. *
- Price
- 6
- Condition
- 8
- Location
- 7
- Land
- 6
- Bedrooms
- 3
- Bathrooms
- 1
- Sqft (est)
- 1,003.34
The heatmap indicates the level of crime in the area. The color of the heatmap indicates the crime severity and recency.
Metrics Year-on-Year
- Average area value
- 282,843.00 £Decreased by 1.29 %
- Est sale value
- 268,895.12 £Decreased by 3.60 %
- Average area rental value
- 1,092.00 £/moDecreased by 6.75 %
- Est letting value
- 1,003.34 £/moUnchanged by 0.00 %
- Est rental Yield
- 4.63 %Decreased by 5.51 %
- Crime Rate
- 3.00 %Unchanged by 0.00 %
Agent Activity
Move Residential created the listing.
Nearby Schools
| Name | Type | Ofsted | Distance |
|---|---|---|---|
| Broad Square Community Primary School | Community School | Good | 0.46 KM |
| Roscoe Primary School | Academy Converter | 0.63 KM | |
| Holly Lodge Girls' College | Community School | Good | 0.90 KM |
| Ernest Cookson School | Community Special School | Outstanding | 0.97 KM |
| West Derby School | Academy Converter | Requires improvement | 0.97 KM |
Images
Nearby Streets
| Name | Average Price | Average Sqft | Distance |
|---|---|---|---|
| Adair Road | £ 190,000 | 0 | 0.00 KM |
| Sandy Lane | £ 170,000 | 0 | 0.00 KM |
| Porchester Road | £ 0 | 0 | 0.00 KM |
| Lisburn Lane | £ 135,000 | 0 | 0.00 KM |
| Gough Road | £ 0 | 0 | 0.00 KM |
Nearby Transport
| Name | NLC | TLC | Distance |
|---|---|---|---|
| Wavertree Technology Park | 8589 | WAV | 3.22 KM |
| Fazakerley | 2126 | FAZ | 4.14 KM |
| Edge Hill | 2169 | EDG | 4.31 KM |
| Broad Green | 2240 | BGE | 4.55 KM |
| Rice Lane | 2131 | RIL | 5.00 KM |
Nearby Listings
| Address | Price | Type | Score | Distance |
|---|---|---|---|---|
| Agar Road, West Derby, Liverpool, L11 | £ 250,000 | BUY | 6 / 10 | 0.00 KM |
| Agar Road, Liverpool, Merseyside, L11 | £ 135,000 | BUY | 6 / 10 | 0.00 KM |
| 33 AGAR ROAD, LIVERPOOL | £ 100,000 | BUY | 6 / 10 | 0.01 KM |
| Agar Road, Liverpool, L11 | £ 180,000 | BUY | 5 / 10 | 0.04 KM |
| Agar Road, Liverpool, L11 | £ 220,000 | BUY | 6 / 10 | 0.04 KM |
Nearby Properties
| Address | Price | Distance |
|---|---|---|
| 29 Agar Road | £ 56,000 | 0.01 KM |
| 3 Agar Road | £ 114,500 | 0.01 KM |
| 25 Agar Road | £ 65,000 | 0.01 KM |
| 5 Agar Road | £ 184,000 | 0.01 KM |
| 1a Agar Road | £ 48,000 | 0.01 KM |