Winkworth says ..
Charming one-bedroom garden flat moments from Brockley Station. Featuring a bright living space, modern kitchen, and private patio, this move-in-ready home offers the perfect mix of period character and contemporary comfort.
Property Oracle says ..
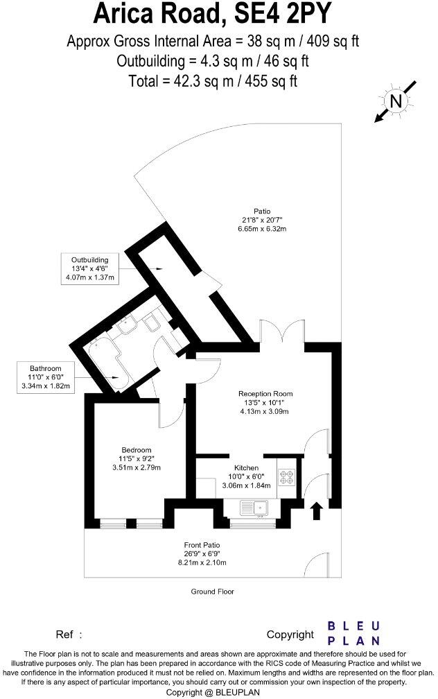
This is a one-bedroom apartment located in the Telegraph Hill area of London. The property benefits from a private garden and is within close proximity to local schools and transport links. The apartment appears to be in good condition, with a modern bathroom and kitchen. While the price per square foot is slightly above the local average, the inclusion of a garden makes it a reasonable investment.
Therefore, we give this property 6 / 10. *Disclaimer: This is our option and does constitute a recommendation or financial advice. Do your own research. *
- Price
- 7
- Condition
- 7
- Location
- 7
- Land
- 6
- Bedrooms
- 1
- Bathrooms
- 0
- Sqft (est)
- 455.31
The heatmap indicates the level of crime in the area. The color of the heatmap indicates the crime severity and recency.
Metrics Year-on-Year
- Average area value
- 770,995.00 £Increased by 28.32 %
- Est sale value
- 412,966.17 £Increased by 46.53 %
- Average area rental value
- 2,165.00 £/moDecreased by 8.88 %
- Est letting value
- 910.62 £/moUnchanged by 0.00 %
- Est rental Yield
- 3.37 %Decreased by 29.05 %
- Crime Rate
- 6.00 %Unchanged by 0.00 %
Agent Activity
Winkworth created the listing.
Nearby Schools
| Name | Type | Ofsted | Distance |
|---|---|---|---|
| John Stainer Community Primary School | Community School | Outstanding | 0.12 KM |
| St Mary Magdalen'S Catholic Primary School | Voluntary Aided School | Good | 0.48 KM |
| Turnham Academy | Academy Sponsor Led | 0.60 KM | |
| Haberdashers' Aske'S Hatcham Temple Grove Free School | Free Schools | Outstanding | 0.65 KM |
| Chelwood Nursery School | Local Authority Nursery School | Outstanding | 0.65 KM |
Images
Nearby Streets
| Name | Average Price | Average Sqft | Distance |
|---|---|---|---|
| Meadows Way | £ 0 | 0 | 0.00 KM |
| Reservoir Road | £ 0 | 0 | 0.00 KM |
| Brockley Way | £ 350,000 | 0 | 0.00 KM |
| Bonita Mews | £ 0 | 0 | 0.00 KM |
| Musgrove Road | £ 937,500 | 0 | 0.00 KM |
Nearby Transport
| Name | NLC | TLC | Distance |
|---|---|---|---|
| Brockley | 5404 | BCY | 0.22 KM |
| Crofton Park | 5078 | CFT | 0.94 KM |
| New Cross Gate | 5345 | NXG | 1.33 KM |
| Nunhead | 5068 | NHD | 1.52 KM |
| Honor Oak Park | 5418 | HPA | 1.64 KM |
Nearby Listings
| Address | Price | Type | Score | Distance |
|---|---|---|---|---|
| Arica Road, London, SE4 | £ 419,500 | BUY | 6 / 10 | 0.00 KM |
| Arica Road, London | £ 400,000 | BUY | 6 / 10 | 0.02 KM |
| Arica Road, Brockley, SE4 | £ 750,000 | BUY | 6 / 10 | 0.03 KM |
| Arica Road, London, SE4 | £ 850,000 | BUY | 7 / 10 | 0.07 KM |
| Arica Road, London, SE4 | £ 700,000 | BUY | 6 / 10 | 0.07 KM |
Nearby Properties
| Address | Price | Distance |
|---|---|---|
| 17 St Norbert Road | £ 499,995 | 0.05 KM |
| 45 St Norbert Road | £ 618,119 | 0.05 KM |
| 53 St Norbert Road | £ 340,000 | 0.05 KM |
| 79 St Norbert Road | £ 310,000 | 0.05 KM |
| 43 St Norbert Road | £ 502,000 | 0.05 KM |