CB
Mallard Lake, Cotswold Hoburne, Cotswold Lakes
By CBSlade
£ 34,000
Reviews
3 out of 5 stars
CBSlade says ..
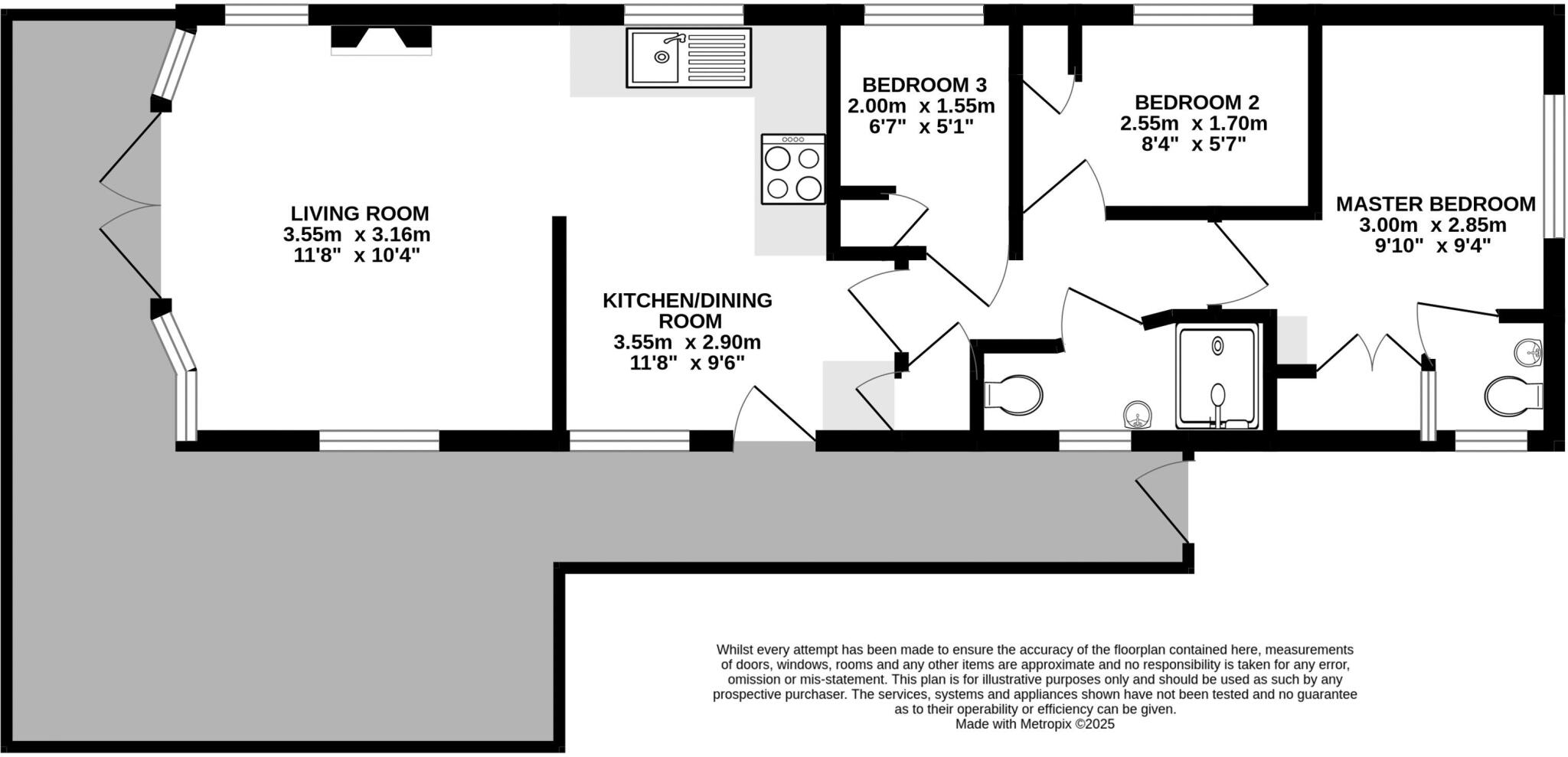
Well presented, detached holiday home in the heart of this popular development. The accommodation includes three bedrooms, bathroom and ensuite wc, kitchen with dining area, and large living room. There is decking to the rear and side with views to the lakes, as well as nearby parking and a range...
Property Oracle says ..
Therefore, we give this property 7 / 10. *Disclaimer: This is our option and does constitute a recommendation or financial advice. Do your own research. *
- Price
- 9
- Condition
- 8
- Location
- 6
- Land
- 5
- Bedrooms
- 3
- Bathrooms
- 2
- Sqft (est)
- 403.65
The heatmap indicates the level of crime in the area. The color of the heatmap indicates the crime severity and recency.
Metrics Year-on-Year
- Average area value
- 460,000.00 £Decreased by 2.99 %
- Est sale value
- 85,170.15 £Decreased by 55.11 %
- Average area rental value
- 1,350.00 £/moDecreased by 16.51 %
- Est letting value
- 0.00 £/moDecreased by 100.00 %
- Est rental Yield
- 3.52 %Decreased by 13.94 %
- Crime Rate
- 0.00 %
from 474,184.00 £
from 189,715.50 £
from 1,617.00 £/mo
from 403.65 £/mo
from 4.09 %
from 0.00 %
Agent Activity
CBSlade created the listing.
Nearby Schools
| Name | Type | Ofsted | Distance |
|---|---|---|---|
| Ann Edwards Church Of England Primary School | Voluntary Controlled School | Good | 2.20 KM |
| Ashton Keynes Church Of England Primary School | Voluntary Controlled School | Good | 2.71 KM |
| Siddington Church Of England Primary School | Academy Converter | 6.11 KM | |
| Watermoor Church Of England Primary School | Voluntary Controlled School | Good | 6.30 KM |
| Cirencester Kingshill School | Academy Converter | Good | 6.85 KM |
Images
Nearby Streets
| Name | Average Price | Average Sqft | Distance |
|---|---|---|---|
| The Landings | £ 856,000 | 0 | 0.00 KM |
| Lake Pochard | £ 230,000 | 0 | 0.00 KM |
| AND | £ 750,000 | 0 | 0.00 KM |
| Spring Lake | £ 324,439 | 0 | 0.00 KM |
| Bittern Close | £ 0 | 0 | 0.00 KM |
Nearby Listings
| Address | Price | Type | Score | Distance |
|---|---|---|---|---|
| Kingfisher Lake, Cotswold Hoburne, Cotswold Lakes | £ 49,000 | BUY | 7 / 10 | 0.00 KM |
| Kingfisher Lake, Cotswold Hoburne, Cotswold Lakes | £ 25,000 | BUY | Unknown | 0.00 KM |
| Water Lily Meadow, Cotswold Hoburne, Cotswold Lakes | £ 60,000 | BUY | 7 / 10 | 0.00 KM |
| Heron View, Cotswold Hoburne, Cotswold Lakes | £ 50,000 | BUY | 7 / 10 | 0.00 KM |
| Kingfisher Lake, Cotswold Hoburne, Cotswold Lakes | £ 32,500 | BUY | 5 / 10 | 0.00 KM |
Nearby Properties
| Address | Price | Distance |
|---|---|---|
| 74 Spring Lake | £ 211,000 | 1.16 KM |
| 5 Swan Close | £ 1,050,000 | 1.23 KM |
| 4 Bittern Close | £ 590,000 | 1.31 KM |
| 12 Kingfisher Place | £ 625,000 | 1.31 KM |
| 7 Kingfisher Place | £ 375,000 | 1.31 KM |