Homesearch Ltd says ..
Being Sold via Secure Sale online bidding. Terms & Conditions apply. Starting Bid £375,000LOCATION LOCATION LOCATION!!!! Proudly
Property Oracle says ..
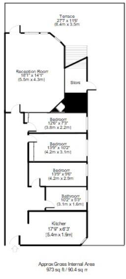
This is a 3-bedroom flat in Ealing Broadway, a well-connected area of London. The flat itself is a good size at 973 sqft and appears to be in modern condition. While it has a balcony, it lacks a garden. The asking price of £375,000 seems reasonable given the location and size of the property.
Therefore, we give this property 6 / 10. *Disclaimer: This is our option and does constitute a recommendation or financial advice. Do your own research. *
- Price
- 8
- Condition
- 7
- Location
- 7
- Land
- 4
- Bedrooms
- 3
- Bathrooms
- 1
- Sqft (est)
- 973.06
The heatmap indicates the level of crime in the area. The color of the heatmap indicates the crime severity and recency.
Metrics Year-on-Year
- Average area value
- 677,500.00 £Decreased by 34.26 %
- Est sale value
- 1,185,187.08 £Increased by 51.87 %
- Average area rental value
- 2,388.00 £/moIncreased by 11.33 %
- Est letting value
- 3,892.24 £/moIncreased by 300.00 %
- Est rental Yield
- 4.23 %Increased by 69.20 %
- Crime Rate
- 18.00 %Unchanged by 0.00 %
Agent Activity
Homesearch Ltd created the listing.
Nearby Schools
| Name | Type | Ofsted | Distance |
|---|---|---|---|
| Ealing Independent College | Other Independent School | 0.18 KM | |
| Clifton Lodge School | Other Independent School | 0.22 KM | |
| Christ The Saviour Church Of England Primary School | Voluntary Aided School | Outstanding | 0.48 KM |
| Harvington Prep School | Other Independent School | 0.49 KM | |
| Durston House School | Other Independent School | 0.53 KM |
Images
Nearby Streets
| Name | Average Price | Average Sqft | Distance |
|---|---|---|---|
| Vernon Court Private Parking | £ 183,500 | 0 | 0.00 KM |
| Victoria Lane | £ 0 | 0 | 0.00 KM |
| Longfield Walk | £ 575,000 | 0 | 0.00 KM |
| Carlton Road | £ 1,246,111 | 0 | 0.00 KM |
| High Street | £ 0 | 0 | 0.00 KM |
Nearby Transport
| Name | NLC | TLC | Distance |
|---|---|---|---|
| Ealing Broadway | 3190 | EAL | 0.89 KM |
| West Ealing | 3188 | WEA | 1.17 KM |
| Drayton Green | 3099 | DRG | 2.32 KM |
| Castle Bar Park | 3098 | CBP | 2.67 KM |
| Brentford | 5552 | BFD | 2.83 KM |
Nearby Listings
| Address | Price | Type | Score | Distance |
|---|---|---|---|---|
| Uxbridge Road, Ealing | £ 399,950 | BUY | 6 / 10 | 0.00 KM |
| Uxbridge Road, Ealing | £ 399,950 | BUY | 6 / 10 | 0.00 KM |
| Longfield House, W5 | £ 375,000 | BUY | 6 / 10 | 0.00 KM |
| Longfield Avenue, Ealing, W5 | £ 800,000 | BUY | 7 / 10 | 0.01 KM |
| Uxbridge Road, London | £ 375,000 | BUY | 5 / 10 | 0.02 KM |
Nearby Properties
| Address | Price | Distance |
|---|---|---|
| 46 Craven Avenue | £ 385,000 | 0.15 KM |
| 56 Craven Avenue | £ 285,000 | 0.15 KM |
| 52 Craven Avenue | £ 1,150,000 | 0.15 KM |
| 42 Craven Avenue | £ 1,375,000 | 0.15 KM |
| 79a New Broadway | £ 10,000 | 0.15 KM |