GD3 Property says ..
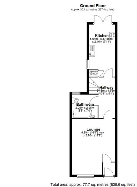
Nestled on the charming Balliol Road in Portsmouth, this delightful terraced house offers a perfect blend of modern living and comfort. Built in 2005, the property boasts a contemporary design that is both stylish and functional. Upon entering, you are welcomed into a spacious reception...
Property Oracle says ..
This is a three-bedroom terraced house in Fratton, Portsmouth. The property benefits from its proximity to local amenities, schools, and transportation links. The interior is modern, with a recently renovated kitchen and bathroom. While the property is in generally good condition, the exterior and garden area could use some attention. The asking price of £235,000 appears reasonable when compared to similar properties in the area. This property would be ideal for a small family or first-time buyer looking for a well-connected location with a modern interior.
Therefore, we give this property 6 / 10. *Disclaimer: This is our option and does constitute a recommendation or financial advice. Do your own research. *
- Price
- 7
- Condition
- 7
- Location
- 7
- Land
- 5
- Bedrooms
- 3
- Bathrooms
- 2
- Sqft (est)
- 836.36
The heatmap indicates the level of crime in the area. The color of the heatmap indicates the crime severity and recency.
Metrics Year-on-Year
- Average area value
- 225,874.00 £Increased by 4.56 %
- Est sale value
- 293,562.36 £Increased by 35.00 %
- Average area rental value
- 914.00 £/moDecreased by 25.20 %
- Est letting value
- 836.36 £/moUnchanged by 0.00 %
- Est rental Yield
- 4.86 %Decreased by 28.42 %
- Crime Rate
- 6.00 %Unchanged by 0.00 %
Agent Activity
GD3 Property created the listing.
Nearby Schools
| Name | Type | Ofsted | Distance |
|---|---|---|---|
| Manor Infant And Nursery School | Community School | Good | 0.21 KM |
| Madani Academy | Other Independent School | Good | 0.44 KM |
| New Horizons Primary School | Academy Converter | Good | 0.46 KM |
| The Portsmouth Academy | Academy Sponsor Led | Good | 0.52 KM |
| North End And Willows Children'S Centre | Children's Centre | 0.59 KM |
Images
Nearby Streets
| Name | Average Price | Average Sqft | Distance |
|---|---|---|---|
| Drayton Road | £ 297,500 | 0 | 0.00 KM |
| Emsworth Road | £ 229,995 | 0 | 0.00 KM |
| Watts Road | £ 240,000 | 0 | 0.00 KM |
| Fourth Street | £ 0 | 0 | 0.00 KM |
| Trafalgar Place | £ 0 | 0 | 0.00 KM |
Nearby Transport
| Name | NLC | TLC | Distance |
|---|---|---|---|
| Fratton | 5509 | FTN | 1.41 KM |
| Portsmouth And Southsea | 5537 | PMS | 1.99 KM |
| Hilsea | 5539 | HLS | 2.90 KM |
| Portsmouth Harbour | 5540 | PMH | 3.73 KM |
| Cosham | 5896 | CSA | 3.82 KM |
Nearby Listings
| Address | Price | Type | Score | Distance |
|---|---|---|---|---|
| Balliol Road, Portsmouth | £ 235,000 | BUY | 6 / 10 | 0.00 KM |
| Balliol Road, Portsmouth, Hampshire, PO2 | £ 215,000 | BUY | Unknown | 0.03 KM |
| Toronto Road, Buckland, Portsmouth, Hampshire | £ 145,500 | BUY | 6 / 10 | 0.06 KM |
| Toronto Road, Buckland, Portsmouth, Hampshire | £ 220,000 | BUY | 5 / 10 | 0.06 KM |
| New Road, Portsmouth, PO2 | £ 100,000 | BUY | 5 / 10 | 0.06 KM |
Nearby Properties
| Address | Price | Distance |
|---|---|---|
| 2 Balliol Road | £ 185,000 | 0.02 KM |
| 10 Balliol Road | £ 127,000 | 0.02 KM |
| 14 Balliol Road | £ 165,000 | 0.02 KM |
| 3 Balliol Road | £ 144,995 | 0.02 KM |
| 3 Toronto Road | £ 136,000 | 0.06 KM |