Winkworth says ..
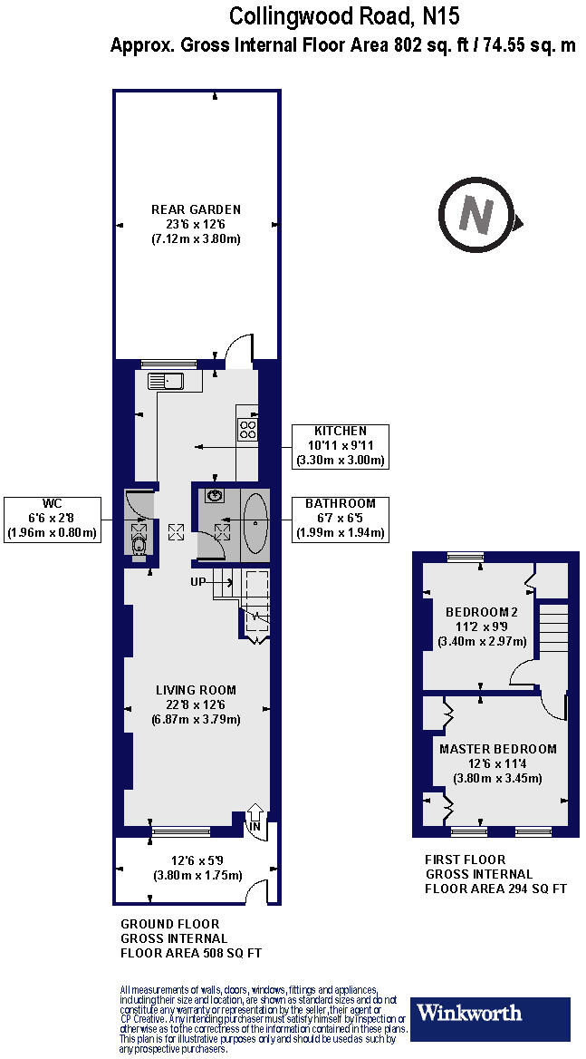
Spread across two floors, this charming two-bedroom home offers a practical layout, a welcoming feel, and a private garden at the rear. Sole Agent
Property Oracle says ..
Therefore, we give this property 7 / 10. *Disclaimer: This is our option and does constitute a recommendation or financial advice. Do your own research. *
- Price
- 8
- Condition
- 8
- Location
- 7
- Land
- 5
- Bedrooms
- 2
- Bathrooms
- 1
- Sqft (est)
- 800.21
The heatmap indicates the level of crime in the area. The color of the heatmap indicates the crime severity and recency.
Metrics Year-on-Year
- Average area value
- 789,000.00 £Increased by 13.27 %
- Est sale value
- 929,844.02 £Increased by 105.66 %
- Average area rental value
- 2,233.00 £/moIncreased by 4.05 %
- Est letting value
- 2,400.63 £/moIncreased by 200.00 %
- Est rental Yield
- 3.40 %Decreased by 8.11 %
- Crime Rate
- 7.00 %Unchanged by 0.00 %
from 696,574.00 £
from 452,118.65 £
from 2,146.00 £/mo
from 800.21 £/mo
from 3.70 %
from 7.00 %
Agent Activity
Winkworth created the listing.
Nearby Schools
| Name | Type | Ofsted | Distance |
|---|---|---|---|
| Ambitious College | Special Post 16 Institution | Good | 0.67 KM |
| South Grove Children'S Centre | Children's Centre | 0.71 KM | |
| Seven Sisters Primary School | Community School | Good | 0.71 KM |
| Broadwaters Children'S Centre | Children's Centre | 0.92 KM | |
| The Triangle Centre | Children's Centre | 0.93 KM |
Images
Nearby Streets
| Name | Average Price | Average Sqft | Distance |
|---|---|---|---|
| Fairweather Close | £ 0 | 0 | 0.00 KM |
| Lawrence Road | £ 471,875 | 0 | 0.00 KM |
| Portland Place | £ 325,000 | 0 | 0.00 KM |
| Tarbert Mews | £ 0 | 0 | 0.00 KM |
| Houghton Road | £ 0 | 0 | 0.00 KM |
Nearby Transport
| Name | NLC | TLC | Distance |
|---|---|---|---|
| Seven Sisters | 6931 | SVS | 0.69 KM |
| South Tottenham | 7404 | STO | 1.06 KM |
| Bruce Grove | 6958 | BCV | 1.17 KM |
| Stamford Hill | 6968 | SMH | 1.48 KM |
| Tottenham Hale | 6951 | TOM | 2.03 KM |
Nearby Listings
| Address | Price | Type | Score | Distance |
|---|---|---|---|---|
| Collingwood Road, London, N15 | £ 585,000 | BUY | 7 / 10 | 0.00 KM |
| Collingwood Road, Tottenham, N15 | £ 675,000 | BUY | Unknown | 0.03 KM |
| Clyde Road, London, N15 | £ 585,000 | BUY | 8 / 10 | 0.07 KM |
| Lawrence Road, London, N15 4EG | £ 700,000 | BUY | 7 / 10 | 0.08 KM |
| Clyde Road, London, N15 | £ 625,000 | BUY | 7 / 10 | 0.08 KM |
Nearby Properties
| Address | Price | Distance |
|---|---|---|
| 28 Collingwood Road | £ 474,000 | 0.04 KM |
| 25 Collingwood Road | £ 160,000 | 0.04 KM |
| 6 Collingwood Road | £ 176,000 | 0.04 KM |
| 32 Collingwood Road | £ 505,000 | 0.04 KM |
| 30 Collingwood Road | £ 155,000 | 0.04 KM |