Walsh Lane, Leeds, West Yorkshire, LS12
DA

Walsh Lane, Leeds, West Yorkshire, LS12

By Dacre Son & Hartley

£ 750,000

Dacre Son & Hartley says ..

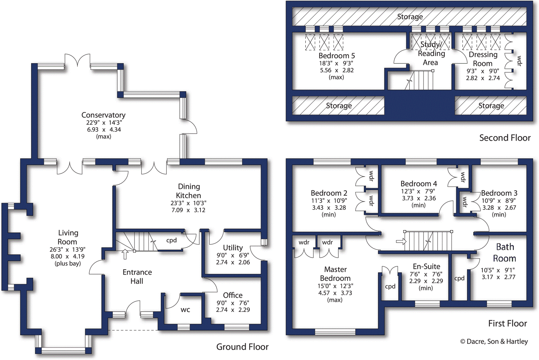
Offered for sale for the first time since it was originally built in 1996, this stunning family home boats over 2500 square feet of versatile living accommodation arrange over three floors. Beautifully presented and tastefully decorated throughout an internal inspection is essential to fully appr...

Bedrooms
5
Bathrooms
2

The heatmap indicates the level of crime in the area. The color of the heatmap indicates the crime severity and recency.

Metrics Year-on-Year

Average area value
214,369.00 £
Decreased by 6.83 %
from 230,085.00 £
Average area rental value
954.00 £/mo
Increased by 1.92 %
from 936.00 £/mo
Est rental Yield
5.34 %
Increased by 9.43 %
from 4.88 %
Crime Rate
6.00 %
Unchanged by 0.00 %
from 6.00 %

Agent Activity

  • Dacre Son & Hartley created the listing.

Nearby Schools

NameTypeOfstedDistance
Gildersome Children'S CentreChildren's Centre1.54 KM
Gildersome Primary SchoolCommunity SchoolRequires improvement1.61 KM
The Farnley AcademyAcademy Sponsor LedRequires improvement1.63 KM
Lawns Park Primary SchoolCommunity SchoolGood1.76 KM
Farnley Children'S CentreChildren's Centre1.81 KM

Images

External Front Living Room Living Room Dining Kitchen Living Room Dining Kitchen Dining Kitchen Office Utility Room Conservatory Conservatory Entrance Hall Entrance Hall Master Bedroom Master Bedroom Master Bedroom Master En-Suite Bedroom Two Bedroom Four Bedroom Five Bedroom Five Study/Reading Area Family Bathroom Family Bathroom Garden Room Garden Room External Rear Rear Garden Rear Garden Rear Garden Bedroom Two Bedroom Three Bedroom Three Bedroom Four Dressing Room Rear Garden Rear Garden Front Driveway

Nearby Streets

NameAverage PriceAverage SqftDistance
Edward Way £ 000.00 KM
Armitage place £ 000.00 KM
Castle mount £ 000.00 KM
Armitage Gardens £ 000.00 KM
Church Avenue £ 000.00 KM

Nearby Transport

NameNLCTLCDistance
Bramley (West Yorkshire)8496BLE3.79 KM
Cottingley8505COT4.64 KM
Morley8504MLY4.93 KM
Kirkstall Forge6544KLF5.78 KM
Headingley8498HDY6.42 KM

Nearby Listings

AddressPriceTypeScoreDistance
Whitehall Road, Leeds £ 285,000BUY6 / 100.09 KM
Edward Way, Leeds, LS12 5FB £ 270,000BUY7 / 100.14 KM
Edward Way, Leeds £ 280,000BUY7 / 100.14 KM
Edward way, New Farnley £ 295,000BUY8 / 100.15 KM
Armitage Place, Leeds £ 279,950BUYUnknown0.18 KM

Nearby Properties

AddressPriceDistance
Half Acre Bungalow £ 385,0000.02 KM
2 Walsh Lane £ 266,0000.02 KM
8 Walsh Lane £ 199,9500.05 KM
16 Walsh Lane £ 373,0000.05 KM
14a Walsh Lane £ 125,0000.05 KM