Winkworth says ..
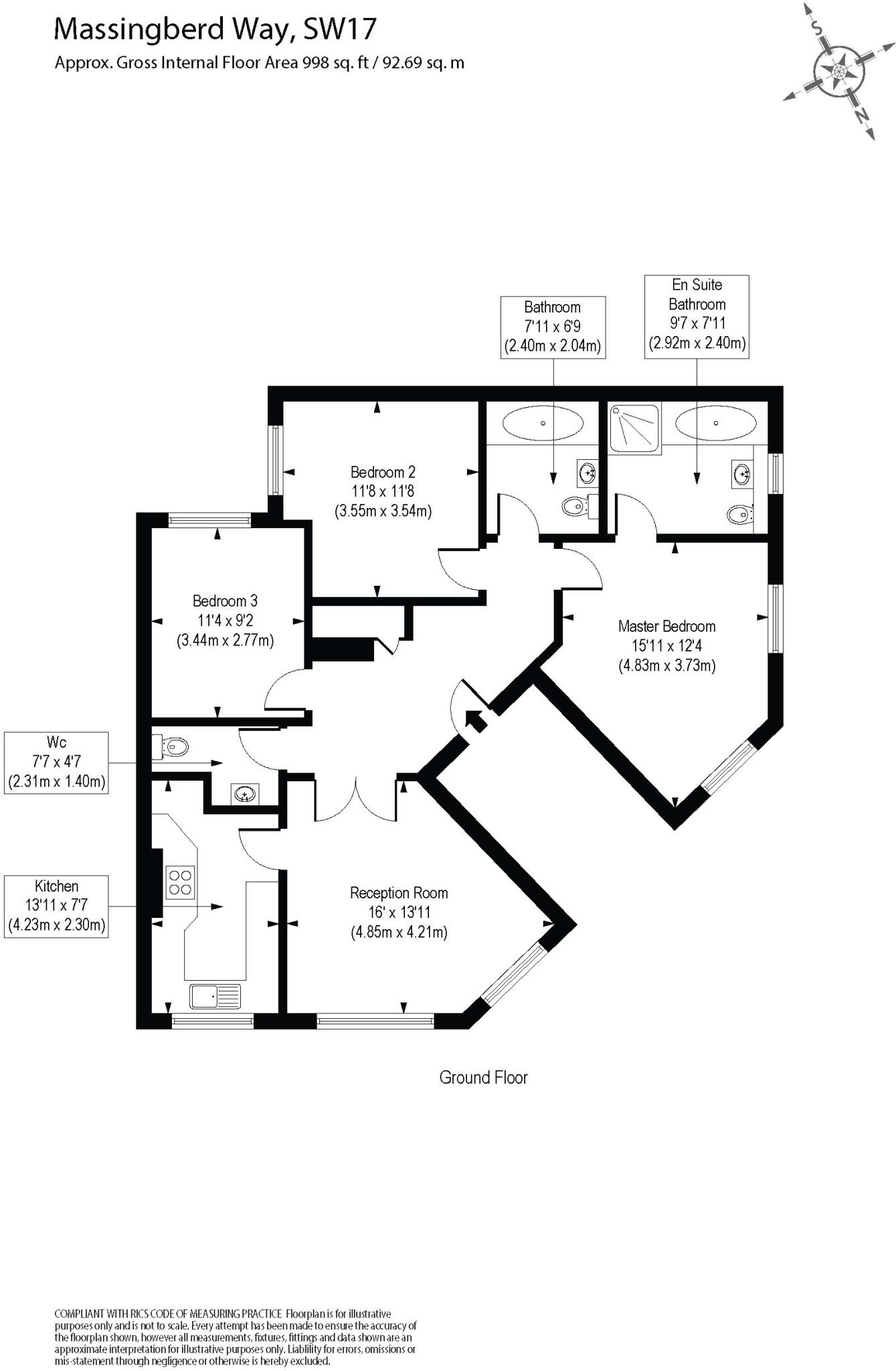
This expansive and airy ground floor flat features three generously sized double bedrooms. The property boasts a large reception room, a galley-style kitchen, two bathrooms (including one en suite), and a separate WC. The property also benefits from two off-street parking spaces, communal gardens...
Property Oracle says ..
This is a three-bedroom apartment located in Bedford, Wandsworth, London. The property is approximately 908 sqft and is listed for £500,000. The apartment is located in a residential area and is close to local schools and transportation links. While the property appears to be in reasonable condition, it could benefit from some modernisation, particularly in the kitchen and bathroom. The apartment offers good value for money, given the average property prices in the area.
Therefore, we give this property 5 / 10. *Disclaimer: This is our option and does constitute a recommendation or financial advice. Do your own research. *
- Price
- 7
- Condition
- 6
- Location
- 7
- Land
- 3
- Bedrooms
- 3
- Bathrooms
- 2
- Sqft (est)
- 908.29
The heatmap indicates the level of crime in the area. The color of the heatmap indicates the crime severity and recency.
Metrics Year-on-Year
- Average area value
- 946,667.00 £Increased by 7.29 %
- Est sale value
- 928,272.38 £Increased by 37.74 %
- Average area rental value
- 2,720.00 £/moIncreased by 4.21 %
- Est letting value
- 1,816.58 £/moUnchanged by 0.00 %
- Est rental Yield
- 3.45 %Decreased by 2.82 %
- Crime Rate
- 2.00 %Unchanged by 0.00 %
Agent Activity
Winkworth created the listing.
Nearby Schools
| Name | Type | Ofsted | Distance |
|---|---|---|---|
| Graveney School | Academy Converter | Outstanding | 0.72 KM |
| Furzedown Primary School | Community School | Good | 0.78 KM |
| Hillbrook School | Foundation School | Outstanding | 0.80 KM |
| Penwortham Primary School | Community School | Good | 0.96 KM |
| Franciscan Primary School | Academy Converter | 0.97 KM |
Images
Nearby Streets
| Name | Average Price | Average Sqft | Distance |
|---|---|---|---|
| Furzedown Road | £ 0 | 0 | 0.00 KM |
| Bruce Hall Mews | £ 0 | 0 | 0.00 KM |
| Saint Benedict's Close | £ 335,000 | 0 | 0.00 KM |
| Carnie Lodge | £ 450,000 | 0 | 0.00 KM |
| Topsham Road | £ 750,000 | 0 | 0.00 KM |
Nearby Transport
| Name | NLC | TLC | Distance |
|---|---|---|---|
| Tooting | 5389 | TOO | 1.52 KM |
| Balham | 5399 | BAL | 1.56 KM |
| Streatham Common | 5384 | SRC | 2.06 KM |
| Streatham | 5383 | STE | 2.22 KM |
| Wandsworth Common | 5395 | WSW | 2.31 KM |
Nearby Listings
| Address | Price | Type | Score | Distance |
|---|---|---|---|---|
| Massingberd Way, London, SW17 | £ 500,000 | BUY | 5 / 10 | 0.00 KM |
| Massingberd Way, Tooting Bec | £ 525,000 | BUY | 7 / 10 | 0.01 KM |
| Elderfield Place, Tooting | £ 475,000 | BUY | 6 / 10 | 0.05 KM |
| Elderfield Place, London | £ 525,000 | BUY | 5 / 10 | 0.05 KM |
| Massingberd Way, Tooting | £ 999,999 | BUY | 6 / 10 | 0.07 KM |
Nearby Properties
| Address | Price | Distance |
|---|---|---|
| 22 Massingberd Way | £ 249,500 | 0.01 KM |
| 20 Massingberd Way | £ 360,000 | 0.01 KM |
| 29 Massingberd Way | £ 390,000 | 0.01 KM |
| 24 Massingberd Way | £ 425,000 | 0.01 KM |
| 28 Massingberd Way | £ 123,000 | 0.01 KM |