Hunters says ..
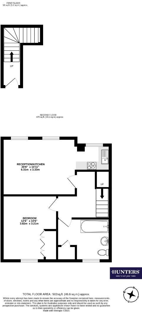
Set within a stunning period building in Stoke Newington, this fantastic one bedroom top (second) floor flat offers 475 sq. ft. (44 sqm.) of internal accommodation. Rarely available on the open market, this wonderful period conversion comprises, large, light & airy, open plan kitchen rec...
Property Oracle says ..
This one bedroom flat is located on Albion Road, in the Clissold area of Hackney, East London. The property benefits from being close to highly-rated primary schools such as Grasmere Primary School (0.08km) and Betty Layward Primary School (0.30km), both rated as ‘Good’ by Ofsted. Transport links are also convenient, with several London Overground stations within a reasonable distance, including Canonbury (1.13km) and Dalston Kingsland (1.23km). The property itself is a one-bedroom flat with 501.60 sqft of living space. While the images show a well-maintained interior, the lack of outdoor space is a notable feature. The list price of £425,000 is slightly below the average price for the area (£611,500), but significantly lower than the average price per sqft (£548), suggesting it could represent good value. However, comparable properties in the area range from £280,000 to £1,032,500, indicating a wide price range and the need for further investigation to determine if the £425,000 price is accurate.
Therefore, we give this property 6 / 10. *Disclaimer: This is our option and does constitute a recommendation or financial advice. Do your own research. *
- Price
- 7
- Condition
- 8
- Location
- 9
- Land
- 1
- Bedrooms
- 1
- Bathrooms
- 1
- Sqft (est)
- 501.60
The heatmap indicates the level of crime in the area. The color of the heatmap indicates the crime severity and recency.
Metrics Year-on-Year
- Average area value
- 920,000.00 £Increased by 33.45 %
- Est sale value
- 456,456.00 £Increased by 8.98 %
- Average area rental value
- 2,550.00 £/moIncreased by 2.12 %
- Est letting value
- 1,003.20 £/moDecreased by 33.33 %
- Est rental Yield
- 3.33 %Decreased by 23.45 %
- Crime Rate
- 4.00 %Unchanged by 0.00 %
Agent Activity
Hunters created the listing.
Nearby Schools
| Name | Type | Ofsted | Distance |
|---|---|---|---|
| Grasmere Primary School | Community School | Good | 0.08 KM |
| Stoke Newington School And Sixth Form | Community School | Good | 0.30 KM |
| Betty Layward Primary School | Community School | Good | 0.30 KM |
| The Factory Children'S Centre | Children's Centre | 0.37 KM | |
| Newington Green Primary School | Community School | Good | 0.43 KM |
Images
Nearby Streets
| Name | Average Price | Average Sqft | Distance |
|---|---|---|---|
| Wordsworth Road | £ 0 | 0 | 0.00 KM |
| Green Lanes | £ 0 | 0 | 0.00 KM |
| Scholars' Place | £ 825,000 | 0 | 0.00 KM |
| Park View | £ 0 | 0 | 0.00 KM |
| Collins Road | £ 425,000 | 0 | 0.00 KM |
Nearby Transport
| Name | NLC | TLC | Distance |
|---|---|---|---|
| Canonbury | 1441 | CNN | 1.13 KM |
| Dalston Kingsland | 1429 | DLK | 1.23 KM |
| Dalston Junction | 1443 | DLJ | 1.43 KM |
| Stoke Newington | 6934 | SKW | 1.69 KM |
| Rectory Road | 6967 | REC | 1.81 KM |
Nearby Listings
| Address | Price | Type | Score | Distance |
|---|---|---|---|---|
| Albion Road, London, N16 | £ 425,000 | BUY | 6 / 10 | 0.00 KM |
| Albion Road, by Clissold Park, N16 | £ 560,000 | BUY | 7 / 10 | 0.02 KM |
| Albion Road, Newington Green, N16 | £ 450,000 | BUY | 7 / 10 | 0.03 KM |
| Albion Road, London, N16 | £ 500,000 | BUY | 7 / 10 | 0.04 KM |
| Albion Road, London, N16 | £ 600,000 | BUY | 6 / 10 | 0.06 KM |
Nearby Properties
| Address | Price | Distance |
|---|---|---|
| 73 Albion Road | £ 470,000 | 0.03 KM |
| 93c Albion Road | £ 242,500 | 0.03 KM |
| 105 Albion Road | £ 1,830,000 | 0.03 KM |
| 127a Albion Road | £ 590,250 | 0.03 KM |
| 115 Albion Road | £ 500,000 | 0.03 KM |