Royal Fox says ..
DETACHED FAMILY HOME - THREE BEDROOMS - QUIET CUL-DE-SAC LOCATION - NO CHAIN ... Royal Fox Estates are pleased to offer this spacious detached home of modern design situated in a quiet spot on the edge of the ever popular Locke estate in Barnton. Benefitting from spacious and versatile accommodat...
Property Oracle says ..
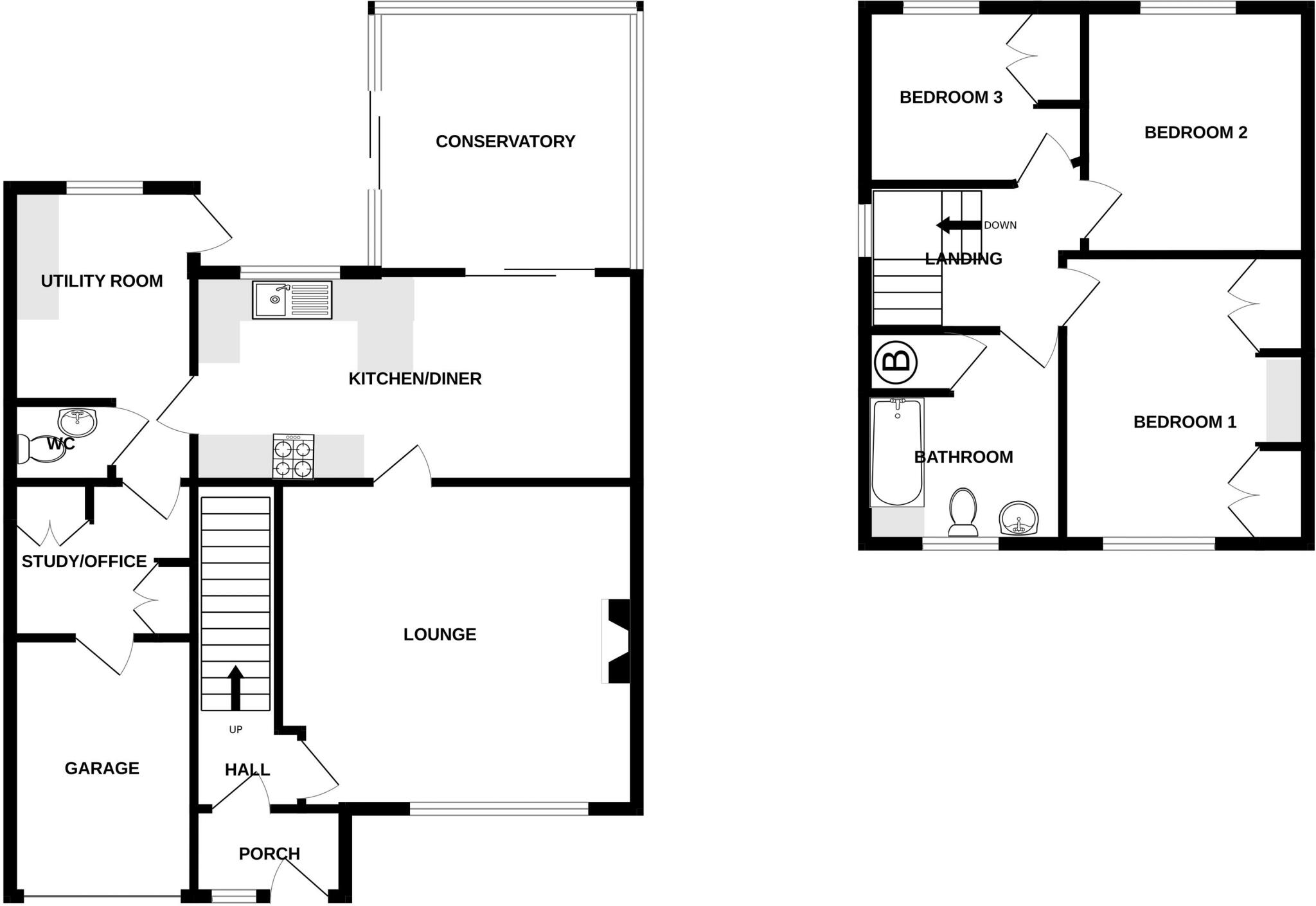
This property is a 3-bedroom semi-detached house located in Barnton, Cheshire. The location benefits from being close to good schools such as Rosebank School and Barnton Community Nursery and Primary School, both rated as ‘Good’ by Ofsted. Several train stations are within a reasonable distance, offering convenient access to commuting routes. The property itself appears well-maintained and in good condition, with a modern kitchen and bathroom. The garden is a notable feature, providing ample outdoor space. While the plot size is not specified, the images suggest a relatively sizable garden. Compared to other properties in the area, the list price of £295,000 seems reasonable, especially considering the average price per sqft in the neighborhood. However, a precise assessment of the value would require more detailed information about the property’s square footage and plot size.
Therefore, we give this property 7 / 10. *Disclaimer: This is our option and does constitute a recommendation or financial advice. Do your own research. *
- Price
- 7
- Condition
- 8
- Location
- 8
- Land
- 7
- Bedrooms
- 3
- Bathrooms
- 1
- Sqft (est)
- 1,110.00
The heatmap indicates the level of crime in the area. The color of the heatmap indicates the crime severity and recency.
Metrics Year-on-Year
- Average area value
- 258,571.00 £Decreased by 18.16 %
- Est sale value
- 364,080.00 £Increased by 11.95 %
- Average area rental value
- 1,230.00 £/moIncreased by 21.30 %
- Est letting value
- 1,110.00 £/mo
- Est rental Yield
- 5.71 %Increased by 48.31 %
- Crime Rate
- 1.00 %Unchanged by 0.00 %
Agent Activity
Royal Fox created the listing.
Nearby Schools
| Name | Type | Ofsted | Distance |
|---|---|---|---|
| Barnton And Weaverham Children'S Centre | Children's Centre | 0.66 KM | |
| Rosebank School | Community Special School | Good | 0.74 KM |
| Barnton Community Nursery And Primary School | Academy Converter | Good | 0.85 KM |
| Comberbach Nursery And Primary School | Academy Converter | 2.08 KM | |
| Winnington Park Community Primary And Nursery School | Community School | Good | 2.93 KM |
Images
Nearby Streets
| Name | Average Price | Average Sqft | Distance |
|---|---|---|---|
| Hazelwood Road | £ 0 | 0 | 0.00 KM |
| Ashwood Close | £ 0 | 0 | 0.00 KM |
| Cherry Tree Avenue | £ 220,000 | 0 | 0.00 KM |
| Goodwood Close | £ 0 | 0 | 0.00 KM |
| The Mews | £ 150,000 | 0 | 0.00 KM |
Nearby Transport
| Name | NLC | TLC | Distance |
|---|---|---|---|
| Greenbank | 2325 | GBK | 3.17 KM |
| Hartford (Cheshire) | 2230 | HTF | 4.12 KM |
| Northwich | 2326 | NWI | 5.65 KM |
| Acton Bridge (Cheshire) | 2287 | ACB | 6.52 KM |
| Cuddington | 2305 | CUD | 7.32 KM |
Nearby Listings
| Address | Price | Type | Score | Distance |
|---|---|---|---|---|
| Chestnut Grove, Barnton | £ 295,000 | BUY | 7 / 10 | 0.00 KM |
| Fir Tree Close, Barnton, CW8 4SL | £ 400,000 | BUY | 7 / 10 | 0.07 KM |
| Larch Tree Close, Northwich | £ 300,000 | BUY | 6 / 10 | 0.13 KM |
| Limewood Crescent, Barnton | £ 235,000 | BUY | 6 / 10 | 0.21 KM |
| Oak Tree Close, Barnton, CW8 4SP | £ 385,000 | BUY | 7 / 10 | 0.21 KM |
Nearby Properties
| Address | Price | Distance |
|---|---|---|
| 34 Chestnut Grove | £ 250,000 | 0.00 KM |
| 9 Chestnut Grove | £ 105,000 | 0.00 KM |
| 21 Chestnut Grove | £ 108,000 | 0.00 KM |
| 23 Chestnut Grove | £ 75,000 | 0.00 KM |
| 4 Chestnut Grove | £ 170,000 | 0.02 KM |