PI
Applebees Walk, Hinckley, LE10
By Picker Elliott
£ 270,000
Reviews
3 out of 5 stars
Picker Elliott says ..
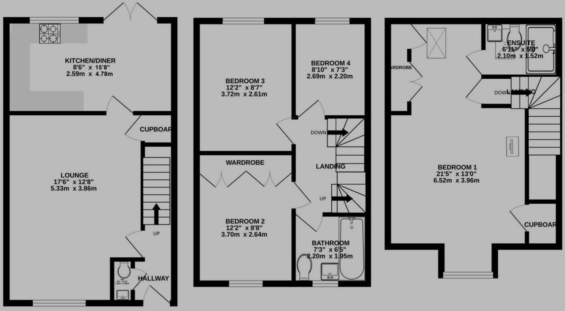
This beautifully presented, modern four-bedroom townhouse offers spacious three-floor living in a convenient Hinckley location, close to commuter r...
Property Oracle says ..
Therefore, we give this property 6 / 10. *Disclaimer: This is our option and does constitute a recommendation or financial advice. Do your own research. *
- Price
- 6
- Condition
- 8
- Location
- 7
- Land
- 6
- Bedrooms
- 4
- Bathrooms
- 2
The heatmap indicates the level of crime in the area. The color of the heatmap indicates the crime severity and recency.
Metrics Year-on-Year
- Average area value
- 220,000.00 £Decreased by 14.11 %
- Average area rental value
- 1,181.00 £/moIncreased by 11.42 %
- Est rental Yield
- 6.44 %Increased by 29.58 %
- Crime Rate
- 20.00 %Unchanged by 0.00 %
from 256,154.00 £
from 1,060.00 £/mo
from 4.97 %
from 20.00 %
Agent Activity
Picker Elliott created the listing.
Nearby Schools
| Name | Type | Ofsted | Distance |
|---|---|---|---|
| Westfield Infant School | Community School | Outstanding | 1.98 KM |
| Hinckley Sure Start Children'S Centre | Children's Centre | 2.08 KM | |
| Westfield Junior School | Community School | Good | 2.27 KM |
| Battling Brook Primary School | Academy Converter | Good | 2.33 KM |
| Dovetree School | Other Independent Special School | Good | 2.47 KM |
Images
Nearby Streets
| Name | Average Price | Average Sqft | Distance |
|---|---|---|---|
| Pinfold Close | £ 0 | 0 | 0.00 KM |
| Dove Close | £ 262,500 | 0 | 0.00 KM |
| Skylark Road | £ 0 | 0 | 0.00 KM |
| Partridge Road | £ 0 | 0 | 0.00 KM |
| Normandy Way cycleway | £ 240,000 | 0 | 0.00 KM |
Nearby Transport
| Name | NLC | TLC | Distance |
|---|---|---|---|
| Hinckley (Leics) | 1870 | HNK | 3.39 KM |
| Nuneaton | 1077 | NUN | 6.82 KM |
| Bermuda Park | 6543 | BEP | 8.45 KM |
| Bedworth | 1165 | BEH | 9.31 KM |
Nearby Listings
| Address | Price | Type | Score | Distance |
|---|---|---|---|---|
| Applebees Walk, Hinckley, LE10 | £ 270,000 | BUY | 6 / 10 | 0.00 KM |
| Applebees Walk, Hinckley, LE10 | £ 265,000 | BUY | 6 / 10 | 0.00 KM |
| Applebees Walk, Hinckley, Leicestershire, LE10 | £ 265,000 | BUY | 7 / 10 | 0.03 KM |
| Applebees Walk, Hinckley | £ 250,000 | BUY | 6 / 10 | 0.03 KM |
| Applebees Walk, Hinckley | £ 270,000 | BUY | 6 / 10 | 0.04 KM |
Nearby Properties
| Address | Price | Distance |
|---|---|---|
| 21 Applebees Walk | £ 175,000 | 0.06 KM |
| 10 Applebees Walk | £ 172,000 | 0.06 KM |
| 19 Applebees Walk | £ 174,500 | 0.06 KM |
| 23 Applebees Walk | £ 177,000 | 0.06 KM |
| 44 Applebees Walk | £ 320,000 | 0.06 KM |