Carr Road, Deepcar, S36 2PR
By Stonebridge Homes
£ 444,995
Reviews
3 out of 5 stars
Stonebridge Homes says ..
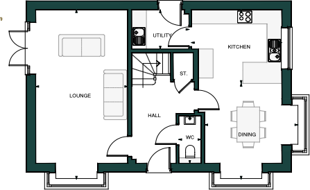
LAST ONE REMAINING The Hamilton is a spacious family home with a spacious open plan kitchen/diner, a large lounge featuring French doors that open out onto the beautiful garden, a handy utility room and four double bedrooms, one boasting an en-suite with a shower.
Property Oracle says ..
This property is a four-bedroom detached house located in Deepcar, Sheffield. The images showcase a modern, stylish interior with high-quality finishes and a well-designed layout. The kitchen, bathrooms, and bedrooms all appear to be in excellent condition, suggesting a recent build or renovation. Notably, it has a modern open-plan kitchen/diner and a spacious living area. The property’s location offers close proximity to well-regarded primary schools rated as ‘Good’ by Ofsted. This makes it attractive to families. The proximity to train stations is reasonable, though there’s a considerable distance to travel. However, the listing lacks crucial information like the exact square footage and plot size, making a full assessment of value difficult. The absence of a substantial garden or land is a significant drawback, impacting its overall appeal for some buyers. While the provided images suggest a high standard of construction and design, a more thorough in-person inspection and access to comprehensive property data are crucial to assess value and other potential concerns that could affect its Property Oracle score. The current information shows the property is likely well-suited for families who prioritize a modern property in a convenient location close to good schools. However, the lack of outdoor space may be a significant factor for prospective buyers. The price appears competitive relative to other listings that have limited details provided, but a more detailed comparison with accurately comparable properties is necessary for a definitive conclusion.
Therefore, we give this property 6 / 10. *Disclaimer: This is our option and does constitute a recommendation or financial advice. Do your own research. *
- Price
- 7
- Condition
- 9
- Location
- 7
- Land
- 2
- Bedrooms
- 4
- Bathrooms
- 0
- Sqft (est)
- 780.00
The heatmap indicates the level of crime in the area. The color of the heatmap indicates the crime severity and recency.
Metrics Year-on-Year
- Average area value
- 268,863.00 £Decreased by 9.00 %
- Est sale value
- 253,500.00 £Increased by 30.52 %
- Average area rental value
- 713.00 £/moDecreased by 30.44 %
- Est letting value
- 0.00 £/mo
- Est rental Yield
- 3.18 %Decreased by 23.56 %
- Crime Rate
- 21.00 %Unchanged by 0.00 %
Agent Activity
Stonebridge Homes created the listing.
Nearby Schools
| Name | Type | Ofsted | Distance |
|---|---|---|---|
| Royd Nursery And Infant School | Community School | Good | 0.07 KM |
| Deepcar St John'S Church Of England Junior School | Voluntary Aided School | Good | 0.18 KM |
| Stocksbridge High School | Academy Converter | 1.94 KM | |
| Stocksbridge Junior School | Community School | Outstanding | 2.02 KM |
| St Ann'S Catholic Primary School, A Voluntary Academy | Academy Converter | Good | 2.13 KM |
Images
Nearby Streets
| Name | Average Price | Average Sqft | Distance |
|---|---|---|---|
| St Paul Close | £ 0 | 0 | 0.00 KM |
| Broadhead Road | £ 170,000 | 0 | 0.00 KM |
| Ash Lane | £ 0 | 0 | 0.00 KM |
| St Ann's Road | £ 0 | 0 | 0.00 KM |
| Upper Don Trail | £ 357,500 | 0 | 0.00 KM |
Nearby Transport
| Name | NLC | TLC | Distance |
|---|---|---|---|
| Silkstone Common | 6782 | SLK | 6.94 KM |
| Penistone | 6634 | PNS | 7.45 KM |
| Dodworth | 6781 | DOD | 9.37 KM |
Nearby Listings
| Address | Price | Type | Score | Distance |
|---|---|---|---|---|
| Carr Road, Deepcar, S36 2PR | £ 299,995 | BUY | 8 / 10 | 0.00 KM |
| Carr Road, Deepcar, S36 2PR | £ 514,995 | BUY | Unknown | 0.00 KM |
| Carr Road, Deepcar, S36 2PR | £ 302,995 | BUY | 6 / 10 | 0.00 KM |
| Carr Road, Deepcar, Sheffield | £ 220,000 | BUY | 7 / 10 | 0.06 KM |
| Coultas Avenue, Deepcar, Sheffield | £ 175,000 | BUY | 8 / 10 | 0.13 KM |
Nearby Properties
| Address | Price | Distance |
|---|---|---|
| 45 Carr Road | £ 170,000 | 0.00 KM |
| 119 Carr Road | £ 270,000 | 0.00 KM |
| 39 Carr Road | £ 318,000 | 0.00 KM |
| 85 Carr Road | £ 145,000 | 0.00 KM |
| 65 Carr Road | £ 210,000 | 0.00 KM |