Ancaster Road, Callander, FK17
By Clyde Property
£ 440,000
Reviews
3 out of 5 stars
Clyde Property says ..
Inverenys, located on Ancaster Road in the picturesque town of Callander, is a beautifully presented detached villa offering spacious and flexible living across two thoughtfully designed levels.
Property Oracle says ..
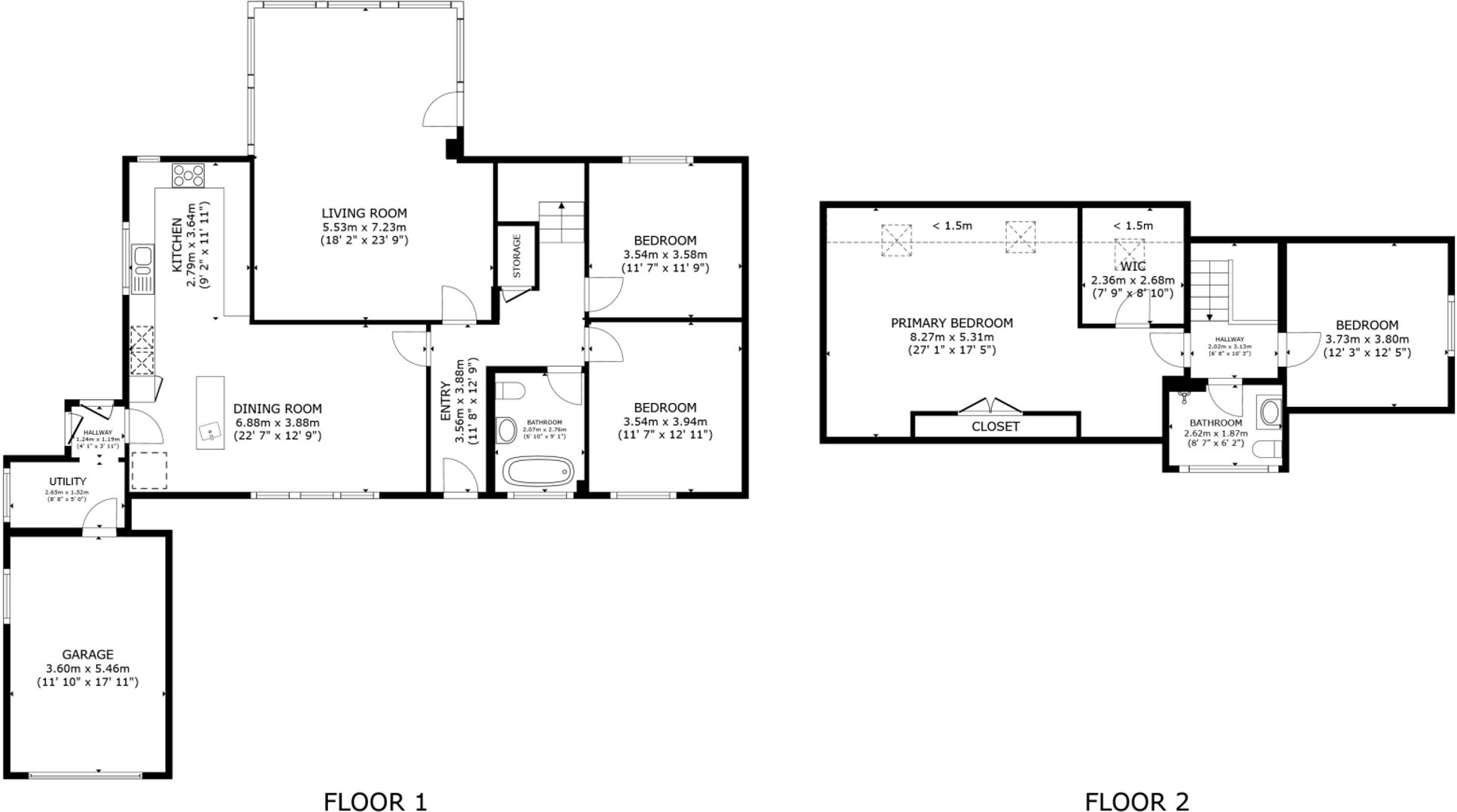
This detached property on Ancaster Road, Callander, presents a well-maintained and modern living space in a desirable location. With four bedrooms and two bathrooms, it’s suitable for families or those seeking ample space. The property benefits from a modern interior, a well-kept garden, and a garage, enhancing its appeal. While the square footage is slightly below the area average, the overall condition and location make it a competitive offering in the Stirling property market. The asking price of £440,000 reflects the property’s attributes and current market conditions.
Therefore, we give this property 7 / 10. *Disclaimer: This is our option and does constitute a recommendation or financial advice. Do your own research. *
- Price
- 7
- Condition
- 8
- Location
- 7
- Land
- 7
- Bedrooms
- 4
- Bathrooms
- 2
- Sqft (est)
- 550.47
The heatmap indicates the level of crime in the area. The color of the heatmap indicates the crime severity and recency.
Metrics Year-on-Year
- Average area value
- 534,995.00 £Increased by 15.67 %
- Est sale value
- 358,355.97 £Increased by 44.35 %
- Average area rental value
- 911.00 £/moIncreased by 2.02 %
- Est letting value
- 550.47 £/mo
- Est rental Yield
- 2.04 %Decreased by 12.07 %
- Crime Rate
- 0.00 %
Agent Activity
Clyde Property created the listing.
Images
Nearby Streets
| Name | Average Price | Average Sqft | Distance |
|---|---|---|---|
| Craigard Road | £ 232,400 | 0 | 0.00 KM |
| North Church Street | £ 146,000 | 0 | 0.00 KM |
| Bracklinn Road | £ 365,000 | 0 | 0.00 KM |
| Pearl Street | £ 130,000 | 0 | 0.00 KM |
| Riverside | £ 0 | 0 | 0.00 KM |
Nearby Listings
| Address | Price | Type | Score | Distance |
|---|---|---|---|---|
| Ancaster Road, Callander, FK17 | £ 440,000 | BUY | 7 / 10 | 0.00 KM |
| Craigard Road, Callander | £ 164,995 | BUY | 7 / 10 | 0.12 KM |
| Craigard Road, Callander | £ 120,000 | BUY | 5 / 10 | 0.17 KM |
| Craigard Road, Callander, FK17 | £ 137,000 | BUY | 7 / 10 | 0.17 KM |
| Flat 2, 8 North Church Street, Callander, FK17 | £ 78,000 | BUY | 6 / 10 | 0.21 KM |