Ridgley Road, Chiddingfold, Godalming, Surrey, GU8
By Seymours
£ 1,650,000
Reviews
3 out of 5 stars
Seymours says ..
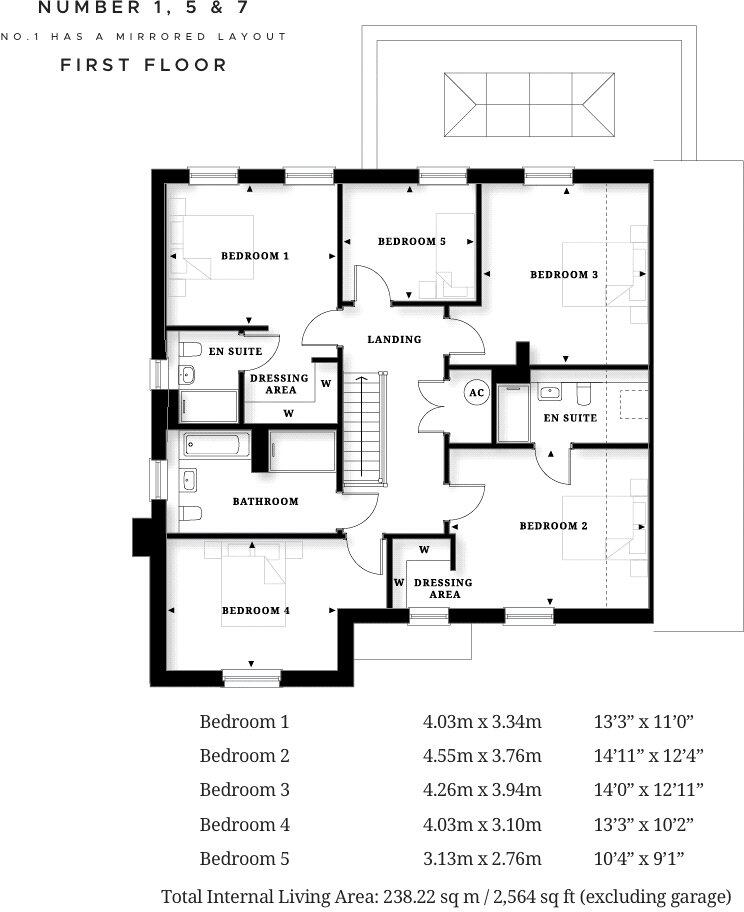
An exquisite five-bedroom detached home at Oakland Grove, Chiddingfold — one of Surrey’s most desirable villages. This exceptional residence combines elegant architecture, high ceilings, generous proportions, and a refined sense of style. Set within a boutique collection of just eight...
Property Oracle says ..
This is a modern detached property located in the desirable village of Chiddingfold, Surrey. The house boasts five bedrooms and three bathrooms, offering ample space for a family. The interiors appear to be in excellent condition, with modern fixtures and fittings. The property also benefits from a well-maintained garden and a garage. While the location is somewhat remote, it offers a tranquil setting and is within reasonable distance of local amenities and schools. The price is relatively high for the area, but this reflects the size and quality of the property.
Therefore, we give this property 7 / 10. *Disclaimer: This is our option and does constitute a recommendation or financial advice. Do your own research. *
- Price
- 6
- Condition
- 9
- Location
- 7
- Land
- 7
- Bedrooms
- 5
- Bathrooms
- 3
- Sqft (est)
- 2,564.18
The heatmap indicates the level of crime in the area. The color of the heatmap indicates the crime severity and recency.
Metrics Year-on-Year
- Average area value
- 272,143.00 £Decreased by 0.84 %
- Est sale value
- 628,224.10 £Increased by 2.08 %
- Average area rental value
- 950.00 £/moDecreased by 12.68 %
- Est letting value
- 0.00 £/mo
- Est rental Yield
- 4.19 %Decreased by 11.97 %
- Crime Rate
- 43.00 %Unchanged by 0.00 %
Agent Activity
Seymours created the listing.
Nearby Schools
| Name | Type | Ofsted | Distance |
|---|---|---|---|
| St Mary'S Church Of England Primary School | Academy Sponsor Led | Good | 1.38 KM |
| King Edward'S School Witley | Other Independent School | 2.71 KM | |
| St Dominic'S School | Academy Special Converter | 3.03 KM | |
| Witley Cofe Controlled Infant School | Voluntary Controlled School | Good | 3.97 KM |
| The Chandler Cofe Aided Junior School | Voluntary Aided School | Good | 4.52 KM |
Images
Nearby Streets
| Name | Average Price | Average Sqft | Distance |
|---|---|---|---|
| The Willows | £ 0 | 0 | 0.00 KM |
| Oak Close | £ 822,500 | 0 | 0.00 KM |
| Wildwood Close | £ 625,000 | 0 | 0.00 KM |
Nearby Transport
| Name | NLC | TLC | Distance |
|---|---|---|---|
| Witley | 5640 | WTY | 2.29 KM |
| Milford (Surrey) | 5644 | MLF | 5.59 KM |
| Godalming | 5629 | GOD | 8.51 KM |
| Haslemere | 5633 | HSL | 9.11 KM |
Nearby Listings
| Address | Price | Type | Score | Distance |
|---|---|---|---|---|
| Ridgley Road, Chiddingfold, Godalming, Surrey, GU8 | £ 1,650,000 | BUY | 7 / 10 | 0.00 KM |
| Ridgley Road, Chiddingfold, Godalming, Surrey, GU8 | £ 1,650,000 | BUY | 7 / 10 | 0.00 KM |
| Ridgley Road, Chiddingfold, Godalming, Surrey, GU8 | £ 1,250,000 | BUY | 6 / 10 | 0.01 KM |
| Ridgley Road, Chiddingfold, Godalming, Surrey, GU8 | £ 1,295,000 | BUY | 7 / 10 | 0.01 KM |
| Ridgley Road, Chiddingfold, Godalming, Surrey, GU8 | £ 1,675,000 | BUY | 7 / 10 | 0.01 KM |
Nearby Properties
| Address | Price | Distance |
|---|---|---|
| 4 The Willows | £ 570,000 | 0.13 KM |
| 3 The Willows | £ 555,000 | 0.13 KM |
| 13 Ash Combe | £ 176,000 | 0.15 KM |
| 23 Ash Combe | £ 490,000 | 0.15 KM |
| 14 Ash Combe | £ 657,000 | 0.15 KM |