Pearsons says ..
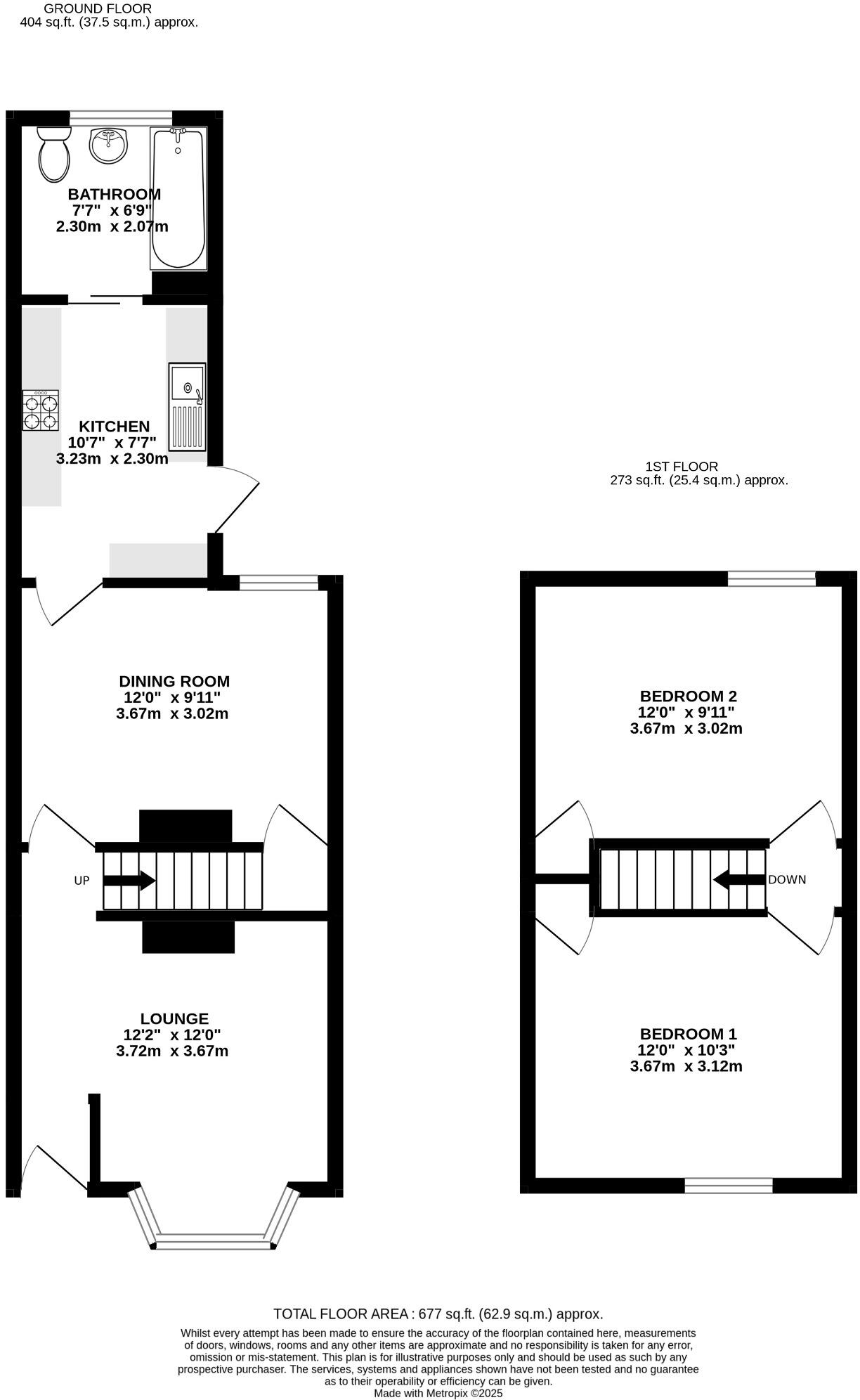
Sold with no forward chain, this two-bedroom terraced home is perfectly situated to enjoy everything Southsea has to offer. A perfect first-time buy or buy-to-let investment. The internal accommodation comprises; entrance porch, lounge with fitted log burner, a separate dining room, a fitted kitc...
Property Oracle says ..
Therefore, we give this property 6 / 10. *Disclaimer: This is our option and does constitute a recommendation or financial advice. Do your own research. *
- Price
- 7
- Condition
- 6
- Location
- 7
- Land
- 5
- Bedrooms
- 2
- Bathrooms
- 1
- Sqft (est)
- 640.16
The heatmap indicates the level of crime in the area. The color of the heatmap indicates the crime severity and recency.
Metrics Year-on-Year
- Average area value
- 269,625.00 £Decreased by 6.52 %
- Est sale value
- 225,976.48 £Increased by 13.50 %
- Average area rental value
- 1,216.00 £/moDecreased by 16.14 %
- Est letting value
- 640.16 £/moUnchanged by 0.00 %
- Est rental Yield
- 5.41 %Decreased by 10.28 %
- Crime Rate
- 4.00 %Unchanged by 0.00 %
from 288,420.00 £
from 199,089.76 £
from 1,450.00 £/mo
from 640.16 £/mo
from 6.03 %
from 4.00 %
Agent Activity
Pearsons created the listing.
Nearby Schools
| Name | Type | Ofsted | Distance |
|---|---|---|---|
| Southsea And Brambles Children'S Centre | Children's Centre | 0.21 KM | |
| Bramble Infant School And Nursery | Community School | Good | 0.30 KM |
| The Brambles Children'S Centre And Nursery School | Children's Centre Linked Site | 0.34 KM | |
| Southsea Infant School | Community School | Good | 0.47 KM |
| Craneswater Junior School | Community School | Good | 0.52 KM |
Images
Nearby Streets
| Name | Average Price | Average Sqft | Distance |
|---|---|---|---|
| Boulton Road | £ 0 | 0 | 0.00 KM |
| Beatrice Road | £ 270,000 | 0 | 0.00 KM |
| Campbell Road | £ 0 | 0 | 0.00 KM |
| Spencer Road | £ 0 | 0 | 0.00 KM |
| Onslow Road | £ 0 | 0 | 0.00 KM |
Nearby Transport
| Name | NLC | TLC | Distance |
|---|---|---|---|
| Fratton | 5509 | FTN | 0.83 KM |
| Portsmouth And Southsea | 5537 | PMS | 2.03 KM |
| Portsmouth Harbour | 5540 | PMH | 3.71 KM |
| Hilsea | 5539 | HLS | 4.74 KM |
| Cosham | 5896 | CSA | 5.96 KM |
Nearby Listings
| Address | Price | Type | Score | Distance |
|---|---|---|---|---|
| Norman Road, Southsea | £ 220,000 | BUY | 6 / 10 | 0.00 KM |
| Norman Road, Southsea | £ 290,000 | BUY | 6 / 10 | 0.04 KM |
| Darlington Road, Southsea | £ 370,000 | BUY | 6 / 10 | 0.05 KM |
| Darlington Road, Southsea | £ 343,000 | BUY | 6 / 10 | 0.06 KM |
| Darlington Road, Southsea | £ 235,000 | BUY | 5 / 10 | 0.06 KM |
Nearby Properties
| Address | Price | Distance |
|---|---|---|
| 18 Norman Road | £ 212,000 | 0.00 KM |
| 4 Norman Road | £ 250,000 | 0.00 KM |
| 19 Norman Road | £ 162,000 | 0.00 KM |
| 10 Norman Road | £ 137,000 | 0.00 KM |
| 20 Norman Road | £ 142,500 | 0.00 KM |