Bychoice says ..
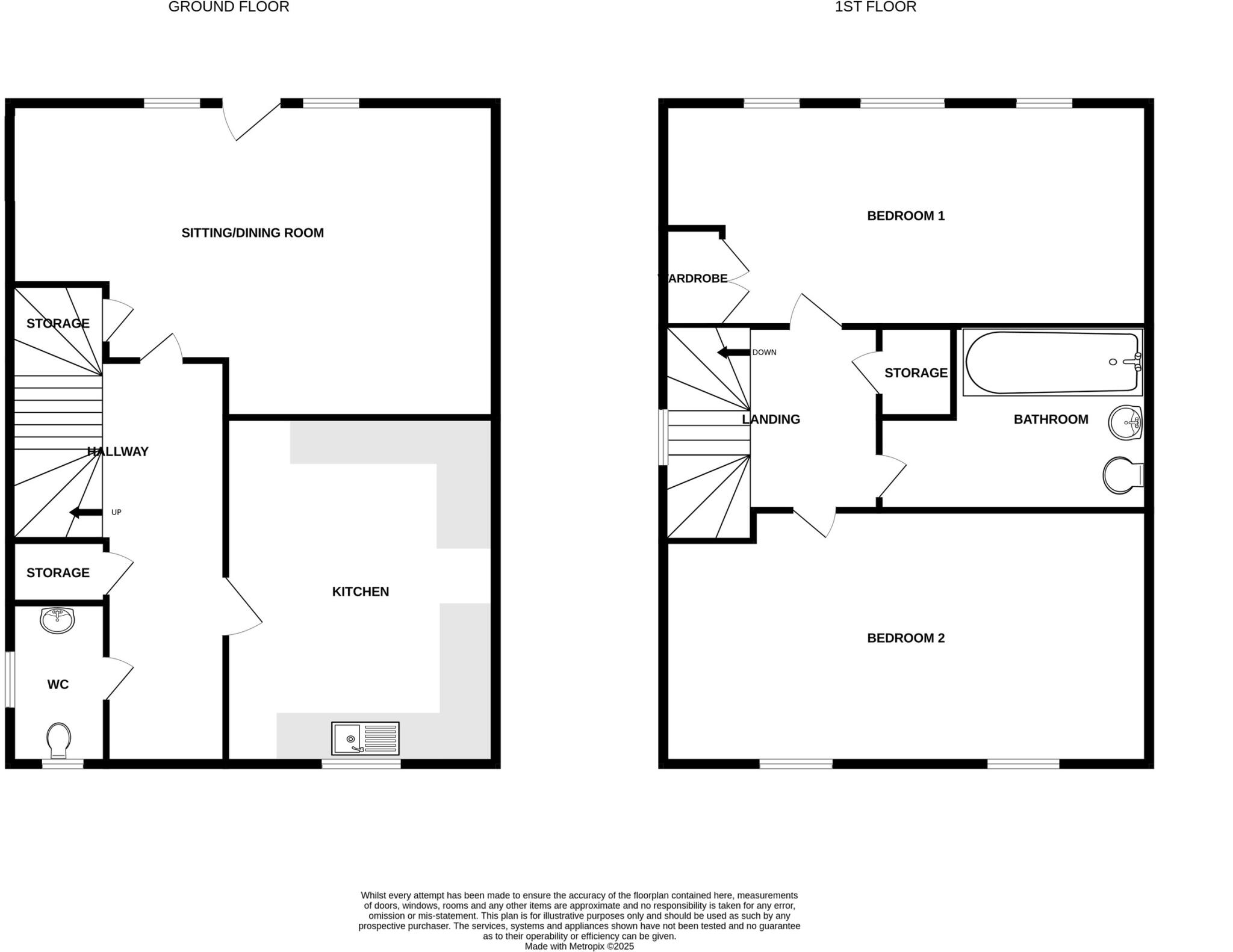
SHAREDOWNERSHIP 40% Share Advertised. A great opportunity to buy a brand new two-bedroom home in Thetford, available through shared ownership with Havebury Housing. This modern property features a bright kitchen, large living/ diner, a downstairs W/C, spacious bedrooms and allocated parking. The ...
Property Oracle says ..
This terraced property in Thetford presents a promising opportunity. The interior condition appears modern and well-maintained. The inclusion of a garden with a shed enhances its appeal. The price is significantly lower than the average for the area, suggesting good value for money. While the location isn’t in a major urban center, it offers access to essential amenities and schools, making it suitable for families and individuals alike. Overall, this property offers a blend of affordability and modern living in a convenient location.
Therefore, we give this property 7 / 10. *Disclaimer: This is our option and does constitute a recommendation or financial advice. Do your own research. *
- Price
- 9
- Condition
- 8
- Location
- 6
- Land
- 6
- Bedrooms
- 2
- Bathrooms
- 1
- Sqft (est)
- 825.00
The heatmap indicates the level of crime in the area. The color of the heatmap indicates the crime severity and recency.
Metrics Year-on-Year
- Average area value
- 508,948.00 £Increased by 6.99 %
- Est sale value
- 537,075.00 £Increased by 48.63 %
- Average area rental value
- 1,944.00 £/moIncreased by 29.95 %
- Est letting value
- 1,650.00 £/moIncreased by 100.00 %
- Est rental Yield
- 4.58 %Increased by 21.49 %
- Crime Rate
- 0.00 %
Agent Activity
Bychoice created the listing.
Nearby Schools
| Name | Type | Ofsted | Distance |
|---|---|---|---|
| Admirals Academy | Academy Sponsor Led | 1.49 KM | |
| Raleigh Infant Academy | Academy Sponsor Led | 1.49 KM | |
| The Thetford Academy | Academy Sponsor Led | Good | 1.84 KM |
| Drake Primary School | Community School | Outstanding | 1.99 KM |
| Surestart Thetford Drake Children'S Centre (Phase 2) | Children's Centre | 2.03 KM |
Images
Nearby Streets
| Name | Average Price | Average Sqft | Distance |
|---|---|---|---|
| Sovereign Way | £ 0 | 0 | 0.00 KM |
| Elswick Road | £ 0 | 0 | 0.00 KM |
| Shortingate Road | £ 143,000 | 0 | 0.00 KM |
| Cedar Road | £ 219,950 | 0 | 0.00 KM |
| Joe Blunt's Lane | £ 0 | 0 | 0.00 KM |
Nearby Transport
| Name | NLC | TLC | Distance |
|---|---|---|---|
| Thetford | 7203 | TTF | 3.26 KM |
Nearby Listings
| Address | Price | Type | Score | Distance |
|---|---|---|---|---|
| Coromandel Road, Thetford | £ 102,000 | BUY | 7 / 10 | 0.00 KM |
| Coromandel Road, Thetford | £ 102,000 | BUY | 7 / 10 | 0.00 KM |
| Coromandel Road, Thetford | £ 96,000 | BUY | 7 / 10 | 0.00 KM |
| Elveden Place, Norwhich Road, Thetford | £ 62,500 | BUY | 7 / 10 | 0.14 KM |
| Sovereign Way, Thetford, IP24 | £ 300,000 | BUY | 8 / 10 | 0.15 KM |
Nearby Properties
| Address | Price | Distance |
|---|---|---|
| 24 Pennycress Drive | £ 278,000 | 0.68 KM |
| 27 Pennycress Drive | £ 339,000 | 0.68 KM |
| 44 Pennycress Drive | £ 146,000 | 0.68 KM |
| 10 Pennycress Drive | £ 115,000 | 0.68 KM |
| 1 Pennycress Drive | £ 111,350 | 0.68 KM |