Chancellors says ..
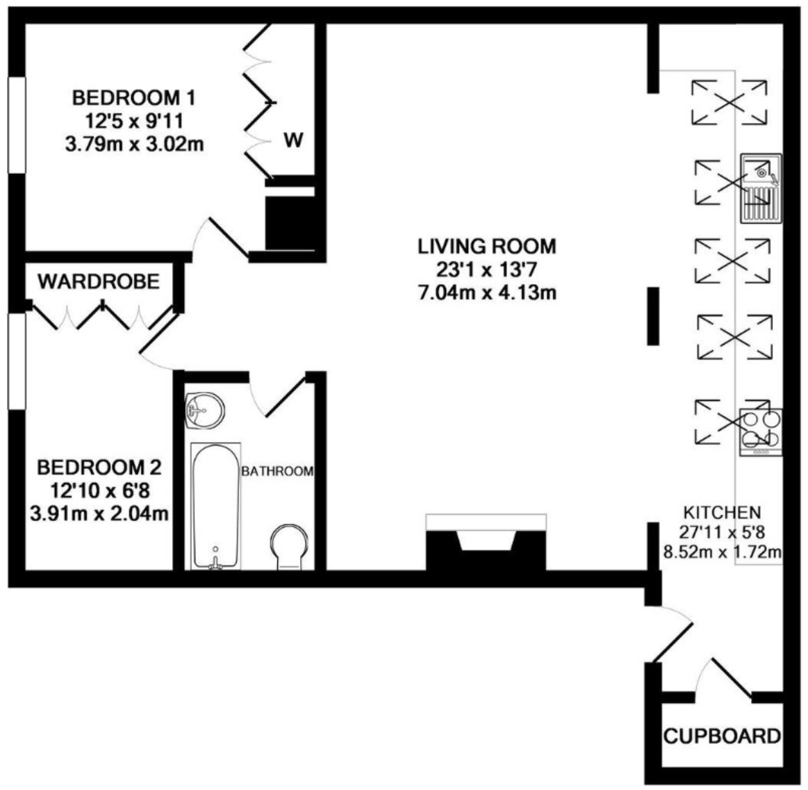
Situated in an historic former Masonic Hall this two bedroom ground floor apartment has character features including an amazing fireplace and modern kitchen and bathroom. The parking is allocated, off street and the property is within 0.4 mile of Newbury train station. No onward chain.
Property Oracle says ..
Therefore, we give this property 6 / 10. *Disclaimer: This is our option and does constitute a recommendation or financial advice. Do your own research. *
- Price
- 6
- Condition
- 8
- Location
- 8
- Land
- 5
- Bedrooms
- 2
- Bathrooms
- 1
- Sqft (est)
- 679.76
The heatmap indicates the level of crime in the area. The color of the heatmap indicates the crime severity and recency.
Metrics Year-on-Year
- Average area value
- 243,889.00 £Decreased by 15.46 %
- Est sale value
- 218,202.96 £Decreased by 5.59 %
- Average area rental value
- 1,333.00 £/moDecreased by 3.62 %
- Est letting value
- 679.76 £/moUnchanged by 0.00 %
- Est rental Yield
- 6.56 %Increased by 14.09 %
- Crime Rate
- 16.00 %Unchanged by 0.00 %
from 288,504.00 £
from 231,118.40 £
from 1,383.00 £/mo
from 679.76 £/mo
from 5.75 %
from 16.00 %
Agent Activity
Chancellors created the listing.
Nearby Schools
| Name | Type | Ofsted | Distance |
|---|---|---|---|
| St Nicolas C.E. Junior School | Voluntary Aided School | Good | 0.33 KM |
| Icollege Alternative Provision | Pupil Referral Unit | Good | 0.64 KM |
| St John The Evangelist C.E. Nursery And Infant Sch | Voluntary Aided School | Good | 0.84 KM |
| St Bartholomew'S School | Academy Converter | Good | 0.90 KM |
| Victoria Park Nursery School & Family Hub | Local Authority Nursery School | Outstanding | 0.93 KM |
Images
Nearby Streets
| Name | Average Price | Average Sqft | Distance |
|---|---|---|---|
| Kyftle Court | £ 0 | 0 | 0.00 KM |
| Eight Bells Shopping Arcade | £ 0 | 0 | 0.00 KM |
| Saint Michael's Road | £ 100,000 | 0 | 0.00 KM |
| St David's Road | £ 0 | 0 | 0.00 KM |
| Echo Walk | £ 0 | 0 | 0.00 KM |
Nearby Transport
| Name | NLC | TLC | Distance |
|---|---|---|---|
| Newbury | 3074 | NBY | 0.48 KM |
| Newbury Racecourse | 3071 | NRC | 2.13 KM |
| Thatcham | 3152 | THA | 9.29 KM |
Nearby Listings
| Address | Price | Type | Score | Distance |
|---|---|---|---|---|
| Newbury, Berkshire, RG14 | £ 300,000 | BUY | 6 / 10 | 0.00 KM |
| Newbury, Berkshire, RG14 | £ 190,000 | BUY | 6 / 10 | 0.01 KM |
| Oddfellows Hall, Craven Road, Newbury, RG14 5AE | £ 219,950 | BUY | 6 / 10 | 0.02 KM |
| Craven Road, Newbury, Berkshire, RG14 | £ 325,000 | BUY | 7 / 10 | 0.03 KM |
| RG14 5NE | £ 160,000 | BUY | 6 / 10 | 0.04 KM |
Nearby Properties
| Address | Price | Distance |
|---|---|---|
| 32 Craven Road | £ 385,000 | 0.07 KM |
| 2 Craven Road | £ 273,000 | 0.08 KM |
| 13 Craven Road | £ 250,000 | 0.09 KM |
| 15 Craven Road | £ 176,500 | 0.09 KM |
| 21 Craven Road | £ 227,950 | 0.09 KM |