Northwood says ..
A one bedroom ground floor flat close to the M32 and city centre, the property would make an excellent first home or buy to let investment.
Property Oracle says ..
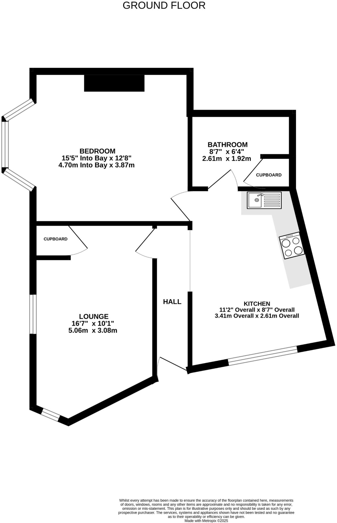
This property is a one-bedroom flat located on Royate Hill in the Eastville area of Bristol. The flat itself is of a reasonable size at 964.45 square feet. The provided photographs show a property that appears clean and habitable, but somewhat dated in terms of its interior design and fittings. The kitchen and bathroom, in particular, could benefit from some modernisation. The lack of any outdoor space is a notable drawback for potential buyers. The location offers easy access to several primary schools and Stapleton Road train station, although the immediate street environment is not fully captured in the provided information. In terms of value, the list price appears competitively positioned within the broader Bristol property market, especially considering other comparable one-bedroom properties. Overall, it is likely to appeal most to first-time buyers or investors seeking a reasonably priced entry point to the Bristol housing market, provided they are prepared to make some improvements and are comfortable without access to any outdoor space.
Therefore, we give this property 5 / 10. *Disclaimer: This is our option and does constitute a recommendation or financial advice. Do your own research. *
- Price
- 7
- Condition
- 5
- Location
- 7
- Land
- 1
- Bedrooms
- 1
- Bathrooms
- 1
- Sqft (est)
- 964.45
The heatmap indicates the level of crime in the area. The color of the heatmap indicates the crime severity and recency.
Metrics Year-on-Year
- Average area value
- 347,495.00 £Increased by 4.36 %
- Est sale value
- 426,286.90 £Increased by 12.18 %
- Average area rental value
- 1,189.00 £/moDecreased by 23.64 %
- Est letting value
- 964.45 £/moUnchanged by 0.00 %
- Est rental Yield
- 4.11 %Decreased by 26.74 %
- Crime Rate
- 7.00 %Unchanged by 0.00 %
Agent Activity
Northwood created the listing.
Nearby Schools
| Name | Type | Ofsted | Distance |
|---|---|---|---|
| May Park Primary School | Academy Sponsor Led | 0.64 KM | |
| Whitehall Primary School | Community School | Outstanding | 0.95 KM |
| Colston'S School | Other Independent School | 0.96 KM | |
| The Limes Nursery School | Local Authority Nursery School | Good | 0.99 KM |
| The Limes Nursery School & Children'S Centre | Children's Centre | 1.04 KM |
Images
Nearby Streets
| Name | Average Price | Average Sqft | Distance |
|---|---|---|---|
| Park Avenue | £ 330,000 | 0 | 0.00 KM |
| Coombe Road | £ 0 | 0 | 0.00 KM |
| Bristol & Bath Railway Path | £ 169,973 | 0 | 0.00 KM |
| Gordon Road | £ 0 | 0 | 0.00 KM |
| Shaw Road | £ 430,000 | 0 | 0.00 KM |
Nearby Transport
| Name | NLC | TLC | Distance |
|---|---|---|---|
| Stapleton Road | 3250 | SRD | 1.69 KM |
| Lawrence Hill | 3225 | LWH | 2.14 KM |
| Filton Abbey Wood | 3235 | FIT | 3.78 KM |
| Montpelier | 3203 | MTP | 4.10 KM |
| Bristol Temple Meads | 3231 | BRI | 4.17 KM |
Nearby Listings
| Address | Price | Type | Score | Distance |
|---|---|---|---|---|
| Royate Hill, Bristol, BS5 | £ 160,000 | BUY | 5 / 10 | 0.00 KM |
| Royate Hill, Eastville | £ 375,000 | BUY | 7 / 10 | 0.05 KM |
| Royate Hill, Bristol, BS5 | £ 365,000 | BUY | 6 / 10 | 0.05 KM |
| Stonebridge Park, Eastville | £ 450,000 | BUY | 5 / 10 | 0.09 KM |
| Fishponds Road, Eastville, Bristol | £ 175,000 | BUY | Unknown | 0.11 KM |
Nearby Properties
| Address | Price | Distance |
|---|---|---|
| 37 Royate Hill | £ 176,500 | 0.05 KM |
| 43 Royate Hill | £ 345,000 | 0.06 KM |
| 45 Royate Hill | £ 130,000 | 0.06 KM |
| 39 Royate Hill | £ 137,000 | 0.06 KM |
| 26 Royate Hill | £ 292,500 | 0.06 KM |