Lon Heulog, Abergele, LL22 8QH
By Peter Large Estate Agents
£ 465,000
Reviews
3 out of 5 stars
Peter Large Estate Agents says ..
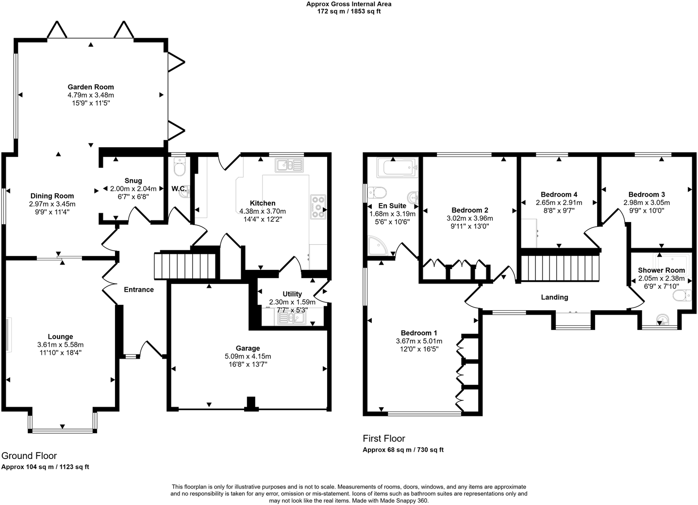
A superior detached house within Tan y Gopa estate which has been extended recently and now presents as a beautiful well presented family home. Located in a quiet cul de sac in an elevated position and with far reaching woodland and coastal views from various aspects. The property boasts hallw...
Property Oracle says ..
This four-bedroom, two-bathroom property located in Abergele, Conwy, is presented in excellent condition following renovations. The property features a modern kitchen, a substantial extension that includes a large open-plan living/dining area with access to the garden, and updated bathrooms. The images display a well-maintained interior with contemporary styling and fixtures. The exterior is presented neatly with a sizable garden encompassing raised garden beds and a shed, indicating potential for hobby gardening or outdoor living. The garden is reasonably sized for the area. Close proximity to schools, namely Ysgol Emrys Ap Iwan, Canolfan Addysg Nant-Y-Bryniau Education Centre, Ysgol Glan Gele, St Elfod Junior School, and Ysgol Glan Morfa, make it attractive to families. Abergele and Pensarn train station is within a short distance, providing access to public transportation. While the lack of specific sqft data for comparable properties prevents definitive price-per-sqft analysis, the listed price sits above some comparable houses in the locality, though this seems accounted for by the significant extension and overall updated condition. Overall, the property presents as a well-maintained, family-friendly home with an attractive extension. Further research regarding property prices per sqft in the immediate vicinity could further refine a price analysis.
Therefore, we give this property 7 / 10. *Disclaimer: This is our option and does constitute a recommendation or financial advice. Do your own research. *
- Price
- 7
- Condition
- 9
- Location
- 7
- Land
- 6
- Bedrooms
- 4
- Bathrooms
- 2
- Sqft (est)
- 1,853.00
The heatmap indicates the level of crime in the area. The color of the heatmap indicates the crime severity and recency.
Metrics Year-on-Year
- Average area value
- 391,990.00 £Increased by 15.65 %
- Est sale value
- 657,815.00 £Increased by 51.06 %
- Average area rental value
- 895.00 £/moIncreased by 23.45 %
- Est letting value
- 0.00 £/mo
- Est rental Yield
- 2.74 %Increased by 6.61 %
- Crime Rate
- 1.00 %Unchanged by 0.00 %
Agent Activity
Peter Large Estate Agents created the listing.
Nearby Schools
| Name | Type | Ofsted | Distance |
|---|---|---|---|
| Ysgol Emrys Ap Iwan | Welsh Establishment | 1.45 KM | |
| Canolfan Addysg Nant-Y-Bryniau Education Centre | Welsh Establishment | 1.61 KM | |
| Ysgol Glan Morfa | Welsh Establishment | 1.74 KM | |
| Ysgol Glan Gele | Welsh Establishment | 1.74 KM | |
| St Elfod Junior School | Welsh Establishment | 1.74 KM |
Images
Nearby Streets
| Name | Average Price | Average Sqft | Distance |
|---|---|---|---|
| Lôn Heulog | £ 0 | 0 | 0.00 KM |
| Lôn Hyfryd | £ 274,950 | 0 | 0.00 KM |
| Lôn y Dail | £ 284,150 | 0 | 0.00 KM |
| Lôn Goed | £ 317,450 | 0 | 0.00 KM |
| Lôn Derw | £ 251,485 | 0 | 0.00 KM |
Nearby Transport
| Name | NLC | TLC | Distance |
|---|---|---|---|
| Abergele And Pensarn | 2448 | AGL | 1.95 KM |
Nearby Listings
| Address | Price | Type | Score | Distance |
|---|---|---|---|---|
| Lon Heulog, Abergele, LL22 8QH | £ 465,000 | BUY | 7 / 10 | 0.00 KM |
| Lon Hyfryd, Abergele, Conwy, LL22 8QE | £ 315,000 | BUY | 7 / 10 | 0.10 KM |
| Lon Y Dail, Abergele, Conwy, LL22 | £ 375,000 | BUY | 7 / 10 | 0.12 KM |
| Lon Derw, Abergele, Conwy, LL22 7EA | £ 259,950 | BUY | 6 / 10 | 0.15 KM |
| Lon Dirion, Abergele, LL22 | £ 325,000 | BUY | Unknown | 0.16 KM |
Nearby Properties
| Address | Price | Distance |
|---|---|---|
| 1 Lon Heulog | £ 254,000 | 0.02 KM |
| 6 Lon Heulog | £ 235,000 | 0.02 KM |
| 11 Lon Hyfryd | £ 217,000 | 0.11 KM |
| 9 Lon Hyfryd | £ 155,000 | 0.11 KM |
| 3 Lon Hyfryd | £ 203,000 | 0.11 KM |