Fox & Sons says ..
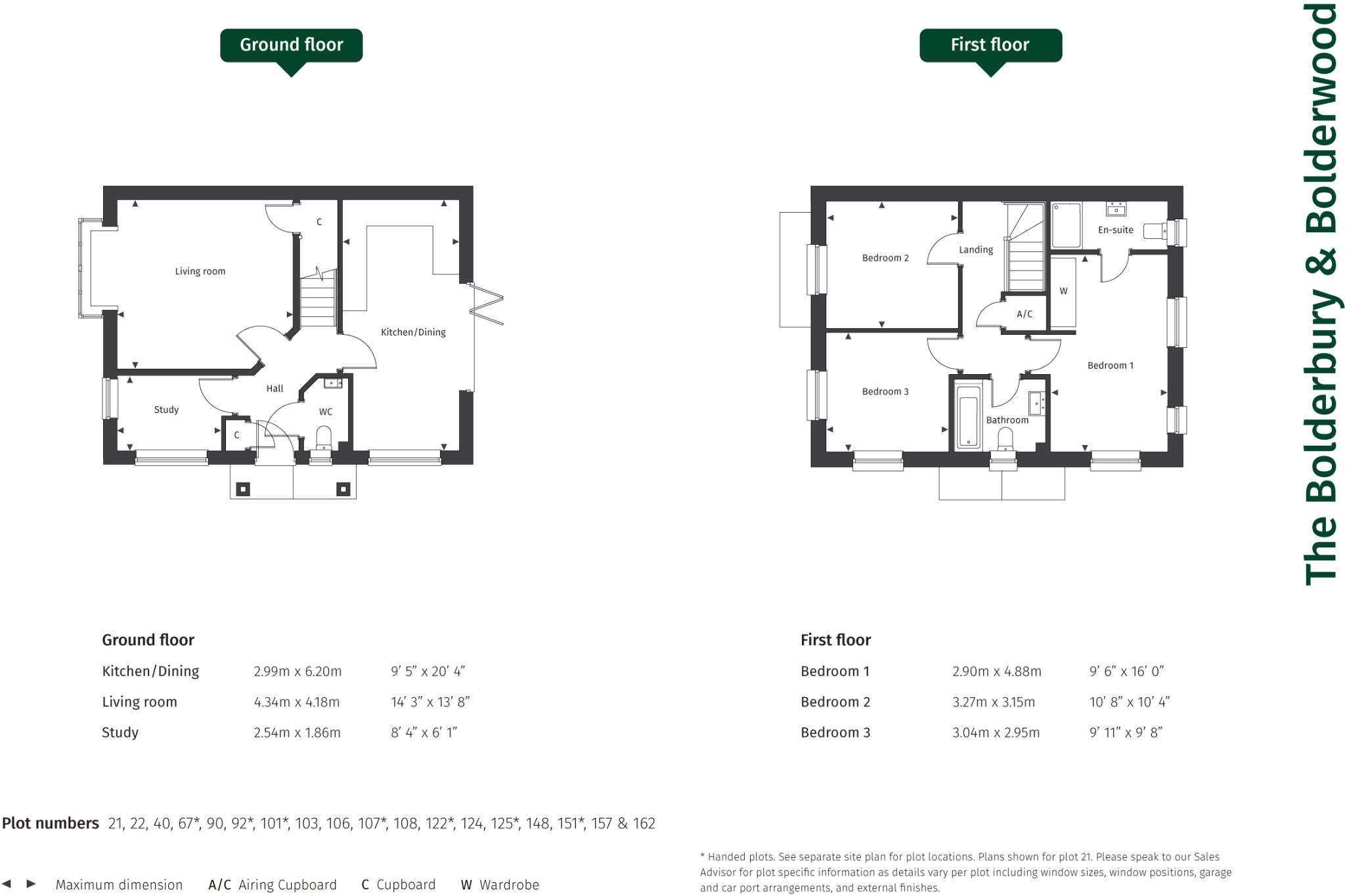
** NEW THREE BEDROOM END OF TERRACE BEDROOM WITH STUDY **GARAGE AND OFF ROAD PARKING **OPEN PLAN KITCHEN/DINER WITH BIFOLDING DOORS LEADING TO THE GARDEN **ENERGY EFFICIENT HEATING **READY JUNE 2026
Property Oracle says ..
This end-of-terrace property on Brockhills Lane, New Milton, presents a modern living space in a convenient location. The house features three bedrooms and two bathrooms within approximately 805.28 sqft. The interiors are well-presented, suggesting a recently built or renovated home. The property benefits from a garden, enhancing its appeal for families. Located in Fernhill, it is near schools and transportation links, making it a desirable residence. While the price is slightly above the average per square foot for the area, the property’s condition and modern features justify the premium.
Therefore, we give this property 7 / 10. *Disclaimer: This is our option and does constitute a recommendation or financial advice. Do your own research. *
- Price
- 7
- Condition
- 9
- Location
- 7
- Land
- 6
- Bedrooms
- 3
- Bathrooms
- 2
- Sqft (est)
- 805.28
The heatmap indicates the level of crime in the area. The color of the heatmap indicates the crime severity and recency.
Metrics Year-on-Year
- Average area value
- 413,623.00 £Decreased by 6.20 %
- Est sale value
- 397,808.32 £Increased by 32.09 %
- Average area rental value
- 1,217.00 £/moDecreased by 13.57 %
- Est letting value
- 805.28 £/moUnchanged by 0.00 %
- Est rental Yield
- 3.53 %Decreased by 7.83 %
- Crime Rate
- 0.00 %
Agent Activity
Fox & Sons created the listing.
Nearby Schools
| Name | Type | Ofsted | Distance |
|---|---|---|---|
| Ashley Junior School | Foundation School | Good | 1.34 KM |
| Ashley Infant School | Community School | Good | 1.50 KM |
| Tiptoe Primary School | Community School | Good | 1.57 KM |
| Ballard School | Other Independent School | 1.61 KM | |
| New Milton Junior School | Community School | Good | 2.72 KM |
Images
Nearby Streets
| Name | Average Price | Average Sqft | Distance |
|---|---|---|---|
| Park Road | £ 0 | 0 | 0.00 KM |
| Hilton Road | £ 0 | 0 | 0.00 KM |
| Hermitage Close | £ 1,000,000 | 0 | 0.00 KM |
| Meadow Road | £ 0 | 0 | 0.00 KM |
| The Parade | £ 0 | 0 | 0.00 KM |
Nearby Transport
| Name | NLC | TLC | Distance |
|---|---|---|---|
| New Milton | 5881 | NWM | 1.89 KM |
| Sway | 5884 | SWY | 4.35 KM |
| Hinton Admiral | 5880 | HNA | 7.79 KM |
| Brockenhurst | 5886 | BCU | 9.66 KM |
Nearby Listings
| Address | Price | Type | Score | Distance |
|---|---|---|---|---|
| Brockhills Lane, New Milton | £ 570,000 | BUY | 7 / 10 | 0.00 KM |
| Brockhills Lane, New Milton | £ 335,000 | BUY | 7 / 10 | 0.00 KM |
| Brockhills Lane, New Milton | £ 375,000 | BUY | 7 / 10 | 0.00 KM |
| Brockhills Lane, New Milton | £ 335,000 | BUY | 7 / 10 | 0.00 KM |
| Brockhills Lane, New Milton | £ 690,000 | BUY | 7 / 10 | 0.00 KM |
Nearby Properties
| Address | Price | Distance |
|---|---|---|
| Wood Croft | £ 650,000 | 0.10 KM |
| Woodcroft | £ 812,000 | 0.10 KM |
| 3 Brockhills Lane | £ 300,000 | 0.10 KM |
| Grey Gables | £ 370,000 | 0.10 KM |
| Gayfield | £ 415,000 | 0.10 KM |