Felix Road, London
NO

Felix Road, London

By Northfields

£ 575,000

Reviews

3 out of 5 stars

Northfields says ..

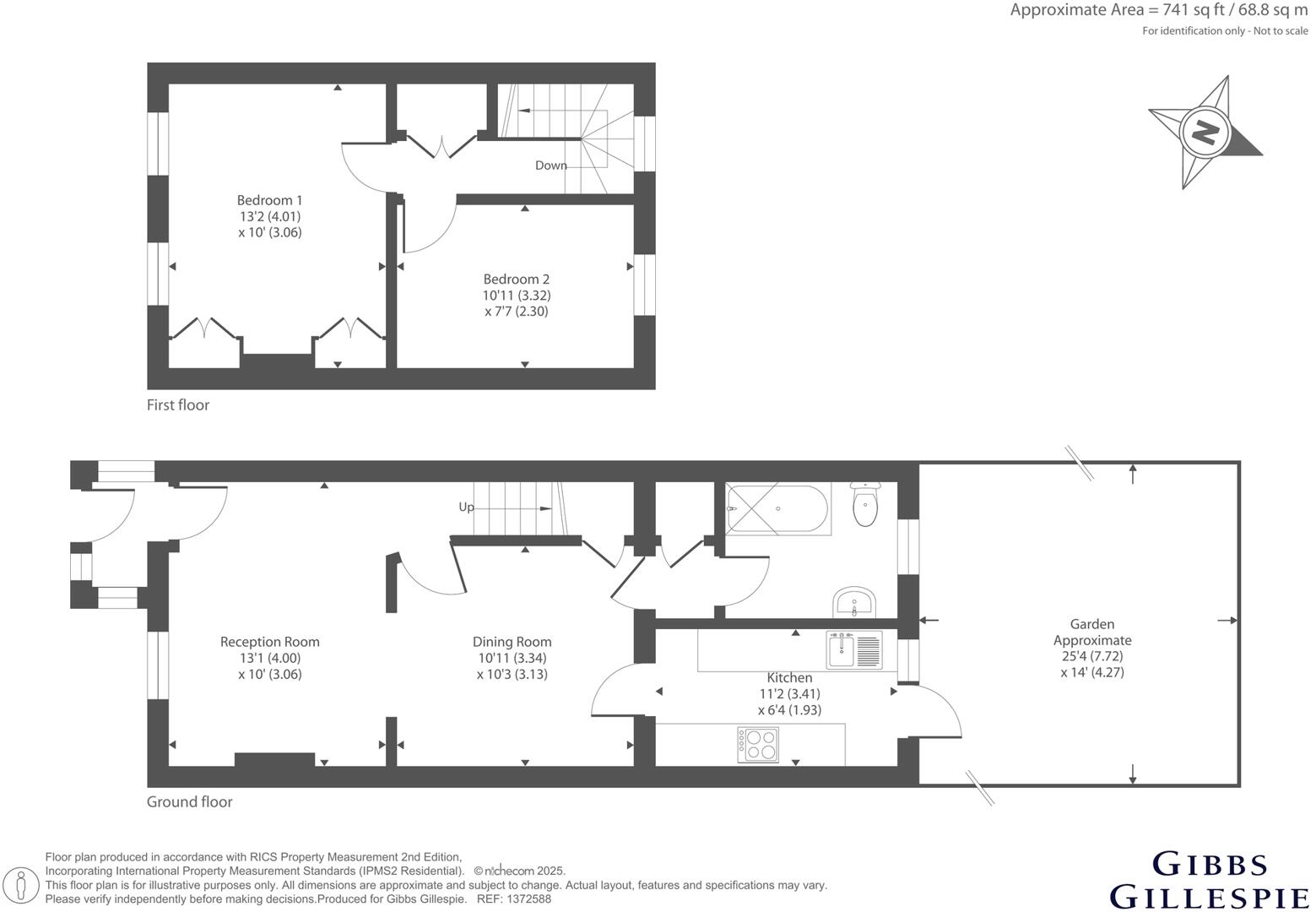
A well-presented two-bedroom terraced family home offering a perfect blend of space and character. The property comprises a spacious reception room, dining room, fitted kitchen and family bathroom to the ground floor. Upstairs are two double bedrooms. Outside there is a pr...

Property Oracle says ..

This terraced house on Felix Road, West Ealing, presents a good opportunity for buyers. The property features two bedrooms, one bathroom, and a garden. While the house requires some modernization, its location near schools and transportation links makes it an attractive option. The price is competitive for the area, reflecting the need for some renovation work. Overall, this property offers potential for improvement and comfortable living in a well-connected part of London.

Therefore, we give this property 6 / 10. *Disclaimer: This is our option and does constitute a recommendation or financial advice. Do your own research. *

Price
7
Condition
5
Location
7
Land
6
Bedrooms
2
Bathrooms
1
Sqft (est)
764.94

The heatmap indicates the level of crime in the area. The color of the heatmap indicates the crime severity and recency.

Metrics Year-on-Year

Average area value
526,250.00 £
Increased by 3.90 %
from 506,498.00 £
Est sale value
611,187.06 £
Increased by 15.30 %
from 530,103.42 £
Average area rental value
1,876.00 £/mo
Increased by 3.25 %
from 1,817.00 £/mo
Est letting value
1,529.88 £/mo
Unchanged by 0.00 %
from 1,529.88 £/mo
Est rental Yield
4.28 %
Decreased by 0.47 %
from 4.30 %
Crime Rate
8.00 %
Unchanged by 0.00 %
from 8.00 %

Agent Activity

  • Northfields created the listing.

Nearby Schools

NameTypeOfstedDistance
Jubilee Hall Children'S CentreChildren's Centre Linked Site0.12 KM
St John'S Primary SchoolCommunity SchoolGood0.12 KM
Drayton Green Primary SchoolCommunity SchoolGood0.27 KM
Ealing Alternative ProvisionPupil Referral UnitGood0.43 KM
Insights Independent SchoolOther Independent Special SchoolGood0.52 KM

Images

1372588-1-69033c3... 1372588-5-69033d1... 1372588-7-69033c4... 1372588-12-69033c... 1372588-10-69033c... 1372588-9-69033d4... 1372588-13-69033d... 1372588-14-69033c... 1372588-3-69033c5... 1372588-2-69033c5... 1372588-4-69033c6... 1372588-6-69033d1... 1372588-17-69033c... 1372588-8-69033c7... 1372588-16-69033c... 1372588-18-69033c... 1372588-15-69033d... 1372588-11-69033d...

Nearby Streets

NameAverage PriceAverage SqftDistance
Sutherland Avenue £ 484,95000.00 KM
College Road £ 700,00000.00 KM
Sutherland Avenue £ 000.00 KM
Park Road £ 812,50000.00 KM
Colebrooke Avenue £ 000.00 KM

Nearby Transport

NameNLCTLCDistance
West Ealing3188WEA0.55 KM
Drayton Green3099DRG0.72 KM
Castle Bar Park3098CBP1.35 KM
Hanwell3191HAN1.51 KM
Ealing Broadway3190EAL2.58 KM

Nearby Listings

AddressPriceTypeScoreDistance
Felix Road, London £ 575,000BUY6 / 100.00 KM
Felix Road, London, W13 £ 670,000BUY4 / 100.00 KM
Felix Road, London, W13 £ 670,000BUY4 / 100.02 KM
Felix Road, W13 £ 620,000BUY8 / 100.06 KM
Felix Road, London £ 685,000BUY7 / 100.09 KM

Nearby Properties

AddressPriceDistance
8 Felix Road £ 275,0000.01 KM
24 Felix Road £ 650,0000.01 KM
6 Felix Road £ 302,0000.01 KM
22 Felix Road £ 205,0000.01 KM
28 Felix Road £ 240,0000.01 KM