Garages adjacent to 2A Eldon Road, Walthamstow, London, E17 7BZ
By Savills
£ 225,000
Reviews
2 out of 5 stars
Savills says ..
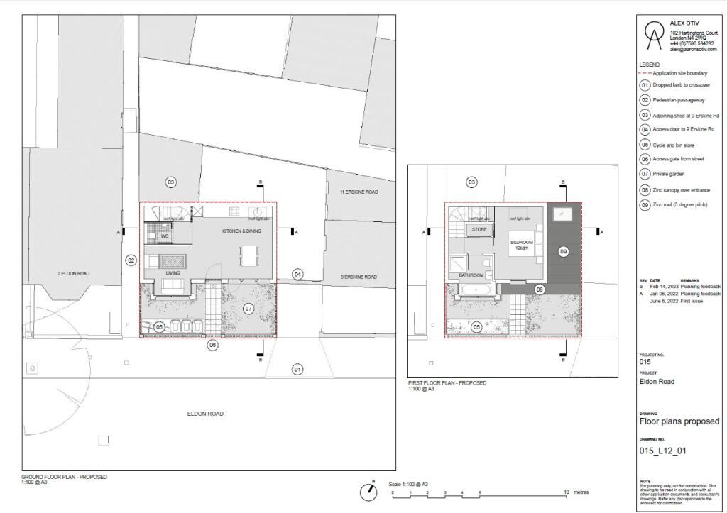
Auction Sale - 21/10/2025 - To book viewings, view the legal pack and register to bid please refer to the full sales particulars on the Savills Auctions website A block of three vacant garages with planning permission granted for construction of a two storey house, well located for the popu...
Property Oracle says ..
The property consists of a plot of land with existing garages on Eldon Road in Walthamstow. The location is convenient, with proximity to transportation, schools, and local amenities. However, the property is in need of renovation and the garages appear run-down. The asking price of £225,000 reflects the condition and potential of the property. This could be an attractive investment for someone looking to develop or renovate in a well-connected area of Walthamstow.
Therefore, we give this property 5 / 10. *Disclaimer: This is our option and does constitute a recommendation or financial advice. Do your own research. *
- Price
- 7
- Condition
- 3
- Location
- 7
- Land
- 5
- Bedrooms
- 0
- Bathrooms
- 0
The heatmap indicates the level of crime in the area. The color of the heatmap indicates the crime severity and recency.
Metrics Year-on-Year
- Average area value
- 457,500.00 £Increased by 10.94 %
- Average area rental value
- 1,891.00 £/moIncreased by 26.91 %
- Est rental Yield
- 4.96 %Increased by 14.29 %
- Crime Rate
- 13.00 %Unchanged by 0.00 %
Agent Activity
Savills created the listing.
Nearby Schools
| Name | Type | Ofsted | Distance |
|---|---|---|---|
| Mission Grove Primary School | Community School | Good | 0.38 KM |
| Mission Grove Children Centre | Children's Centre Linked Site | 0.58 KM | |
| Greenleaf Primary School | Community School | Outstanding | 0.64 KM |
| Edinburgh Primary School | Community School | Good | 0.74 KM |
| South Grove Primary School | Community School | Outstanding | 0.75 KM |
Images
Nearby Streets
| Name | Average Price | Average Sqft | Distance |
|---|---|---|---|
| Eldon Road | £ 550,000 | 0 | 0.00 KM |
| High Street | £ 450,870 | 0 | 0.00 KM |
| Osborne Mews | £ 0 | 0 | 0.00 KM |
| Erskine Road | £ 691,667 | 0 | 0.00 KM |
| Selborne Road | £ 415,000 | 0 | 0.00 KM |
Nearby Transport
| Name | NLC | TLC | Distance |
|---|---|---|---|
| Walthamstow Queen'S Road | 7407 | WMW | 0.43 KM |
| Walthamstow Central | 6953 | WHC | 0.77 KM |
| St James Street | 6973 | SJS | 0.78 KM |
| Blackhorse Road | 7400 | BHO | 1.64 KM |
| Lea Bridge | 6927 | LEB | 2.25 KM |
Nearby Listings
| Address | Price | Type | Score | Distance |
|---|---|---|---|---|
| Garages adjacent to 2A Eldon Road, Walthamstow, London, E17 7BZ | £ 200,000 | BUY | 5 / 10 | 0.00 KM |
| Garages adjacent to 2A Eldon Road, Walthamstow, London, E17 7BZ | £ 225,000 | BUY | 5 / 10 | 0.00 KM |
| Somers Road, Walthamstow, London, E17 | £ 1,200,000 | BUY | 7 / 10 | 0.08 KM |
| Somers Road, Walthamstow, London, E17 | £ 900,000 | BUY | 6 / 10 | 0.09 KM |
| 263 High Street, Walthamstow | £ 500,000 | BUY | 6 / 10 | 0.10 KM |
Nearby Properties
| Address | Price | Distance |
|---|---|---|
| 18 Eldon Road | £ 325,000 | 0.01 KM |
| 20a Eldon Road | £ 204,000 | 0.02 KM |
| 4 Eldon Road | £ 248,500 | 0.02 KM |
| 36 Eldon Road | £ 213,000 | 0.02 KM |
| 42 Eldon Road | £ 265,000 | 0.02 KM |