Goodfellows says ..
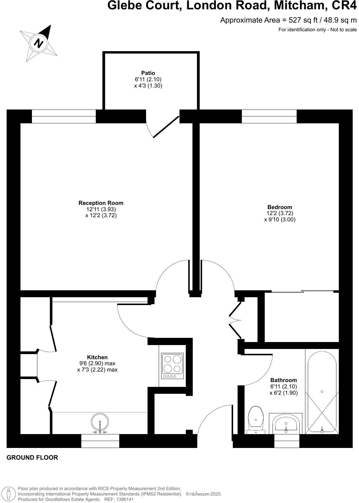
Goodfellows are pleased to present to the market this ground floor one double bedroom flat. The property is situated in the sought-after Glebe Court, Mitcham which perfectly blends town centre and quiet residential living. Situated over 500 sq. ft this property is ideal first-time buy...
Property Oracle says ..
This is a one-bedroom apartment located in Milford, Surrey. The property is listed with Goodfellows for £230,000. The apartment is 395.92 sqft. While the location offers good access to schools and transport, the property itself appears to be in need of renovation. The price is slightly above the average price per square foot for the area, but is in line with similar properties in the area. The property benefits from communal gardens.
Therefore, we give this property 5 / 10. *Disclaimer: This is our option and does constitute a recommendation or financial advice. Do your own research. *
- Price
- 7
- Condition
- 4
- Location
- 6
- Land
- 5
- Bedrooms
- 1
- Bathrooms
- 1
- Sqft (est)
- 395.92
The heatmap indicates the level of crime in the area. The color of the heatmap indicates the crime severity and recency.
Metrics Year-on-Year
- Average area value
- 817,850.00 £Increased by 32.75 %
- Est sale value
- 197,168.16 £Increased by 9.93 %
- Average area rental value
- 2,429.00 £/moIncreased by 45.28 %
- Est letting value
- 395.92 £/moUnchanged by 0.00 %
- Est rental Yield
- 3.56 %Increased by 9.20 %
- Crime Rate
- 0.00 %
Agent Activity
Goodfellows created the listing.
Nearby Schools
| Name | Type | Ofsted | Distance |
|---|---|---|---|
| Rodborough | Academy Converter | Good | 1.26 KM |
| Milford School | Foundation School | Good | 1.49 KM |
| Barrow Hills School | Other Independent School | 1.89 KM | |
| The Chandler Cofe Aided Junior School | Voluntary Aided School | Good | 1.97 KM |
| Witley Cofe Controlled Infant School | Voluntary Controlled School | Good | 2.51 KM |
Images
Nearby Streets
| Name | Average Price | Average Sqft | Distance |
|---|---|---|---|
| Heath View Road | £ 0 | 0 | 0.00 KM |
| Khartoum Road | £ 0 | 0 | 0.00 KM |
| Manor Fields | £ 446,667 | 0 | 0.00 KM |
| George Road | £ 595,000 | 0 | 0.00 KM |
| Eashing Lane | £ 1,250,000 | 0 | 0.00 KM |
Nearby Transport
| Name | NLC | TLC | Distance |
|---|---|---|---|
| Milford (Surrey) | 5644 | MLF | 2.48 KM |
| Witley | 5640 | WTY | 4.13 KM |
| Godalming | 5629 | GOD | 4.89 KM |
| Farncombe | 5643 | FNC | 6.83 KM |
| Wanborough | 5639 | WAN | 8.58 KM |
Nearby Listings
| Address | Price | Type | Score | Distance |
|---|---|---|---|---|
| London Road, Mitcham, CR4 | £ 230,000 | BUY | 5 / 10 | 0.00 KM |
| London Road, Mitcham, CR4 | £ 220,000 | BUY | Unknown | 0.00 KM |
| London Road, Bracknell, Berkshire, RG12 | £ 400,000 | BUY | 7 / 10 | 0.00 KM |
| London Road, Old Basing, Basingstoke, Hampshire, RG24 | £ 250,000 | BUY | 6 / 10 | 0.00 KM |
| London Road, Old Basing, Basingstoke, Hampshire, RG24 | £ 195,000 | BUY | 7 / 10 | 0.00 KM |
Nearby Properties
| Address | Price | Distance |
|---|---|---|
| Gable End | £ 535,000 | 0.28 KM |
| Heathside | £ 985,000 | 0.28 KM |
| Millers | £ 435,000 | 0.28 KM |
| Parkside | £ 320,000 | 0.42 KM |
| Silverdale | £ 595,000 | 0.42 KM |