Hampton Court Way, Thames Ditton, KT7
By Ivy Gate
£ 399,950
Reviews
3 out of 5 stars
Ivy Gate says ..
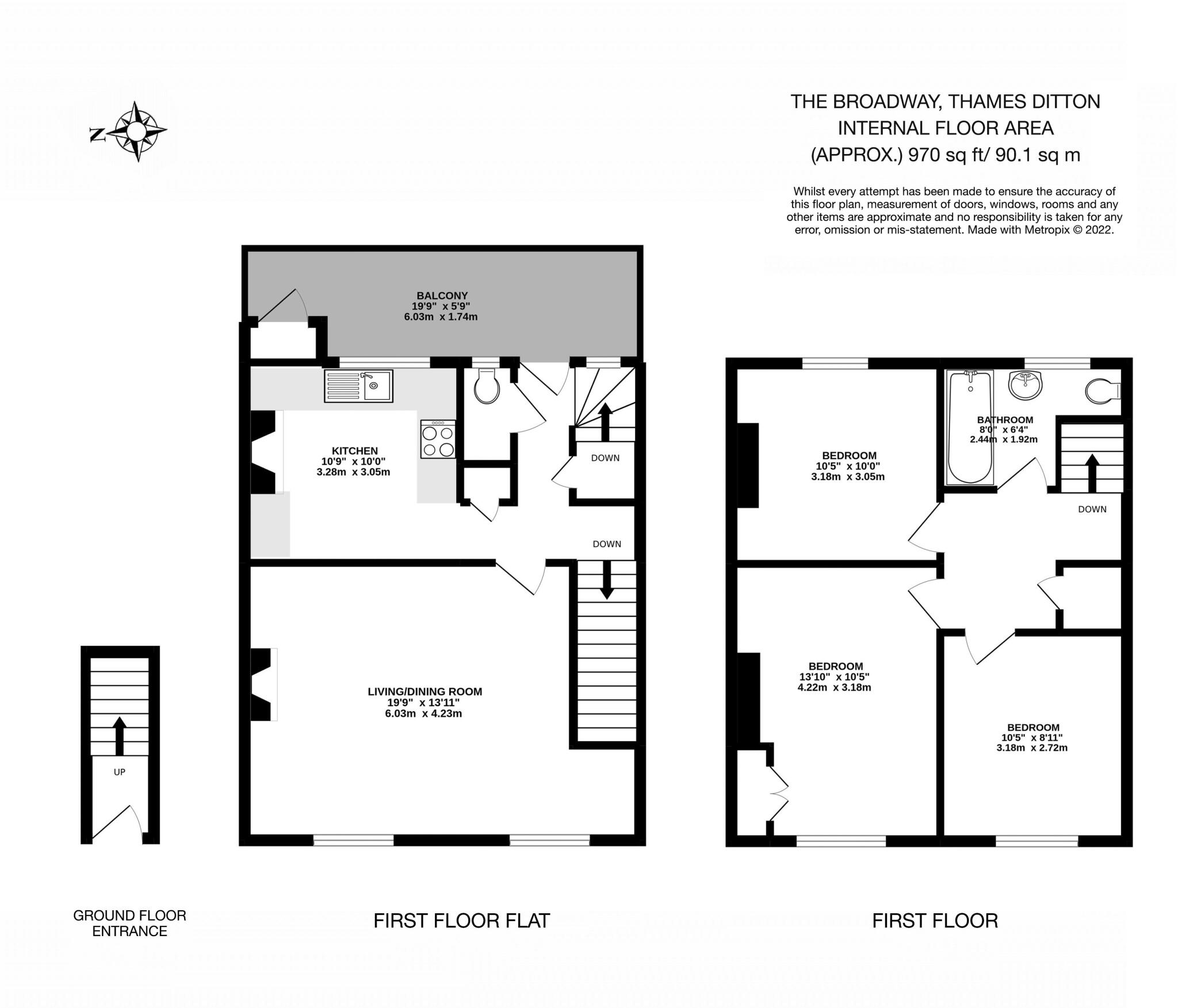
Ivy Gate is delighted to present this spacious and beautifully presented three-bedroom top-floor apartment, offering approximately 970 sq ft of well-appointed living space. Situated in the charming and sought-after area of Weston Green, this characterful home features its own private front doo...
Property Oracle says ..
The property is a 3-bedroom apartment located in a convenient location near transport links and schools. It appears to be in good condition with modern fixtures and fittings, and benefits from a small balcony. The list price seems reasonable compared to similar properties in the area, although the lack of plot size data makes a definitive price comparison difficult.
Therefore, we give this property 6 / 10. *Disclaimer: This is our option and does constitute a recommendation or financial advice. Do your own research. *
- Price
- 7
- Condition
- 8
- Location
- 9
- Land
- 2
- Bedrooms
- 3
- Bathrooms
- 1
- Sqft (est)
- 969.83
The heatmap indicates the level of crime in the area. The color of the heatmap indicates the crime severity and recency.
Metrics Year-on-Year
- Average area value
- 1,013,333.00 £Decreased by 0.35 %
- Est sale value
- 1,159,916.68 £Increased by 88.94 %
- Average area rental value
- 1,500.00 £/moDecreased by 52.35 %
- Est letting value
- 969.83 £/moUnchanged by 0.00 %
- Est rental Yield
- 1.78 %Decreased by 52.02 %
- Crime Rate
- 12.00 %Unchanged by 0.00 %
Agent Activity
Ivy Gate created the listing.
Nearby Schools
| Name | Type | Ofsted | Distance |
|---|---|---|---|
| Weston Green Preparatory School | Other Independent School | 0.10 KM | |
| Esher Sixth Form College | Academy 16-19 Converter | Outstanding | 0.45 KM |
| St Paul'S Catholic Primary School, Thames Ditton | Voluntary Aided School | Good | 0.58 KM |
| Thames Ditton Infant School | Foundation School | Outstanding | 1.25 KM |
| The Ditton'S Sure Start Children'S Centre | Children's Centre | 1.38 KM |
Images
Nearby Streets
| Name | Average Price | Average Sqft | Distance |
|---|---|---|---|
| Newlands Avenue | £ 0 | 0 | 0.00 KM |
| Imbet Close | £ 474,993 | 0 | 0.00 KM |
| Winston Close | £ 675,000 | 0 | 0.00 KM |
| Basing Close | £ 1,650,000 | 0 | 0.00 KM |
| Priors Wood | £ 0 | 0 | 0.00 KM |
Nearby Transport
| Name | NLC | TLC | Distance |
|---|---|---|---|
| Esher | 5558 | ESH | 0.93 KM |
| Thames Ditton | 5610 | THD | 0.95 KM |
| Hinchley Wood | 5591 | HYW | 1.29 KM |
| Hampton Court | 5561 | HMC | 2.01 KM |
| Claygate | 5556 | CLG | 2.64 KM |
Nearby Listings
| Address | Price | Type | Score | Distance |
|---|---|---|---|---|
| Hampton Court Way, Thames Ditton, KT7 | £ 399,950 | BUY | 6 / 10 | 0.00 KM |
| The Broadway, Thames Ditton | £ 399,950 | BUY | 5 / 10 | 0.00 KM |
| The Broadway, Thames Ditton, KT7 | £ 390,000 | BUY | Unknown | 0.03 KM |
| The Broadway, Thames Ditton | £ 349,950 | BUY | 6 / 10 | 0.09 KM |
| The Broadway, Hampton Court Way, Thames Ditton, Surrey, KT7 | £ 425,000 | BUY | 7 / 10 | 0.10 KM |
Nearby Properties
| Address | Price | Distance |
|---|---|---|
| 8 Lime Tree Avenue | £ 1,050,000 | 0.09 KM |
| 2 & 2a Lime Tree Avenue | £ 630,000 | 0.12 KM |
| 7 Lime Tree Avenue | £ 480,000 | 0.12 KM |
| 2a Lime Tree Avenue | £ 652,500 | 0.12 KM |
| 1 Lime Tree Avenue | £ 1,325,000 | 0.12 KM |