Rivulet Road, Tottenham, London, N17
By Foxtons
£ 625,000
Reviews
3 out of 5 stars
Foxtons says ..
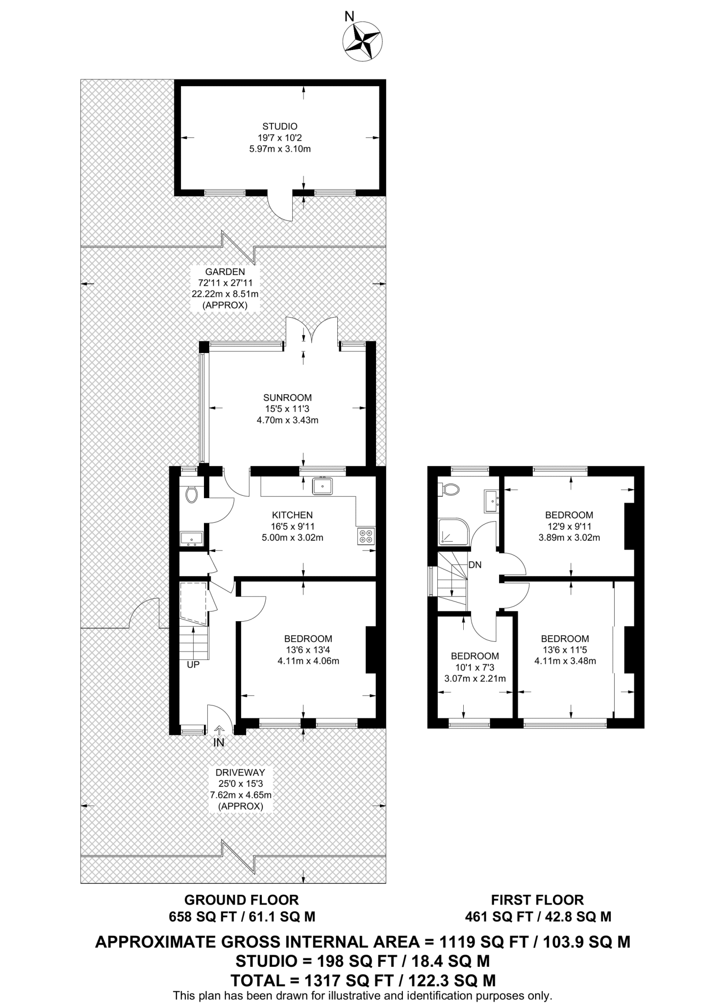
This brilliant three bedroom house spread over two floors is bright and spacious throughout, featuring a large sun room looking into a massive rear garden, modern open plan kitchen and dining room and large bedrooms.
Property Oracle says ..
The property is a 3-bedroom, 2-bathroom house located on Rivulet Road in Tottenham, London. The list price is £625,000, and the property has a size of 1,317 sqft. The property includes a conservatory and a garden. The property appears to be in good condition based on the provided images. The kitchen and bathrooms look recently updated or well-maintained. There is some evidence of minor cosmetic work needing to be done, such as patching some holes in the walls. However, overall the property presents well. The location in Tottenham, London, is reasonably convenient. The proximity to several schools, including Riverside School and Rowland Hill Nursery School (both rated ‘Good’ by Ofsted), is a positive. Several transport links are within a reasonable distance, although specific commute times would need to be verified. The presence of a garden is a notable advantage, especially in a densely populated area like London. Considering the average price per sqft in the area (£725) and the property’s size (1,317 sqft), a rough estimate of its value would be around £952,000 (£725 x 1317). However, the average house price in the area is significantly higher (£1,128,824), and the average sqft is also larger (1,556 sqft). The list price of £625,000 is considerably lower than both the average price and the estimated value based on price per sqft. This suggests the property may be underpriced, potentially due to factors not fully captured in the provided data, such as the plot size (0.00 sqft) or the specific condition of the property. Further investigation into comparable properties in the immediate vicinity would be necessary to confirm this.
Therefore, we give this property 7 / 10. *Disclaimer: This is our option and does constitute a recommendation or financial advice. Do your own research. *
- Price
- 8
- Condition
- 8
- Location
- 7
- Land
- 7
- Bedrooms
- 3
- Bathrooms
- 2
- Sqft (est)
- 1,317.00
The heatmap indicates the level of crime in the area. The color of the heatmap indicates the crime severity and recency.
Metrics Year-on-Year
- Average area value
- 506,786.00 £Increased by 14.81 %
- Est sale value
- 964,044.00 £Increased by 47.88 %
- Average area rental value
- 2,825.00 £/moIncreased by 38.28 %
- Est letting value
- 5,268.00 £/moIncreased by 100.00 %
- Est rental Yield
- 6.69 %Increased by 20.54 %
- Crime Rate
- 4.00 %Unchanged by 0.00 %
Agent Activity
Foxtons created the listing.
Nearby Schools
| Name | Type | Ofsted | Distance |
|---|---|---|---|
| Riverside School | Community Special School | Good | 0.40 KM |
| Rowland Hill Nursery School & Children'S Centre | Children's Centre | 0.51 KM | |
| Rowland Hill Nursery School | Local Authority Nursery School | Good | 0.61 KM |
| Lordship Lane Primary School | Community School | Good | 0.62 KM |
| Footsteps Trust | Other Independent School | Good | 0.76 KM |
Images
Nearby Streets
| Name | Average Price | Average Sqft | Distance |
|---|---|---|---|
| Normans Close | £ 460,000 | 0 | 0.00 KM |
| Daubeney Road | £ 0 | 0 | 0.00 KM |
| Butterfield Close | £ 0 | 0 | 0.00 KM |
| Devonshire Court | £ 0 | 0 | 0.00 KM |
| Liberty Mews | £ 0 | 0 | 0.00 KM |
Nearby Transport
| Name | NLC | TLC | Distance |
|---|---|---|---|
| Palmers Green | 6021 | PAL | 2.44 KM |
| White Hart Lane | 6956 | WHL | 2.53 KM |
| Hornsey | 6015 | HRN | 2.81 KM |
| Bruce Grove | 6958 | BCV | 2.87 KM |
| Bowes Park | 6027 | BOP | 2.99 KM |
Nearby Listings
| Address | Price | Type | Score | Distance |
|---|---|---|---|---|
| Rivulet Road, Tottenham, London, N17 | £ 625,000 | BUY | 7 / 10 | 0.00 KM |
| Gospatrick Road, London, N17 | £ 550,000 | BUY | 6 / 10 | 0.12 KM |
| Land Adjoining 109 Rivulet Road, Tottenham, N17 7JH | £ 5,000 | BUY | 5 / 10 | 0.15 KM |
| Gospatrick Road, London, N17 | £ 650,000 | BUY | 6 / 10 | 0.17 KM |
| GOSPATRICK ROAD, Tottenham, London, N17 | £ 580,000 | BUY | Unknown | 0.19 KM |
Nearby Properties
| Address | Price | Distance |
|---|---|---|
| 163 Rivulet Road | £ 142,500 | 0.02 KM |
| 145 Rivulet Road | £ 210,000 | 0.02 KM |
| 125 Rivulet Road | £ 249,950 | 0.02 KM |
| 106 Rivulet Road | £ 268,000 | 0.03 KM |
| 146 Rivulet Road | £ 220,000 | 0.03 KM |