Oaktree Way, Hailsham, BN27
By Crane & Co Estate Agents
£ 270,000
Reviews
3 out of 5 stars
Crane & Co Estate Agents says ..
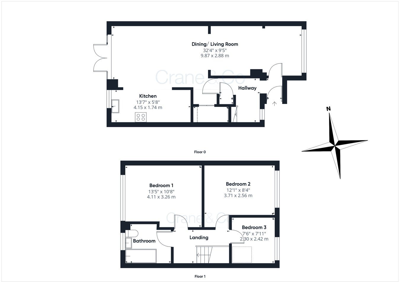
VIDEO & 3D TOUR (Free for all our sellers) PRICE GUIDE £270,000 - £295,000 Set along Oaktree Way in Hailsham, this three-bedroom terraced home offers a modern approach to everyday living. With a fully open-plan layout on the ground floor, the space feels instantly w...
Property Oracle says ..
This three-bedroom terraced house in Hailsham, East Sussex is listed at £270,000. The property benefits from a good-sized rear garden, as shown in the provided images. While the images suggest the property may benefit from some modernisation, it appears to be structurally sound and in reasonable condition. The location in Hailsham North offers proximity to several schools, including Hawkes Farm Academy and The Ropemakers’ Academy, both within a kilometre. Transport links are also relatively accessible, with Polegate railway station approximately 6.20 km away. Comparing the list price to nearby property sales and the average price per square foot in the area, the asking price of £270,000 appears to be within the expected range for a three-bedroom terraced house in this location, although further analysis of comparable properties with similar condition and plot size would be beneficial for a more precise valuation.
Therefore, we give this property 7 / 10. *Disclaimer: This is our option and does constitute a recommendation or financial advice. Do your own research. *
- Price
- 7
- Condition
- 7
- Location
- 7
- Land
- 7
- Bedrooms
- 3
- Bathrooms
- 1
- Sqft (est)
- 918.16
The heatmap indicates the level of crime in the area. The color of the heatmap indicates the crime severity and recency.
Metrics Year-on-Year
- Average area value
- 1,332,494.00 £Increased by 19.68 %
- Est sale value
- 1,281,751.36 £Increased by 164.90 %
- Average area rental value
- 1,800.00 £/moDecreased by 54.11 %
- Est letting value
- 918.16 £/moUnchanged by 0.00 %
- Est rental Yield
- 1.62 %Decreased by 61.70 %
- Crime Rate
- 4.00 %Unchanged by 0.00 %
Agent Activity
Crane & Co Estate Agents created the listing.
Nearby Schools
| Name | Type | Ofsted | Distance |
|---|---|---|---|
| The Ropemakers' Academy | Free Schools Special | 0.86 KM | |
| Hawkes Farm Academy | Academy Sponsor Led | Good | 0.88 KM |
| White House Academy | Academy Sponsor Led | Good | 1.10 KM |
| Hailsham Community College | Academy Converter | Good | 1.14 KM |
| Phoenix Academy | Academy Sponsor Led | Good | 1.30 KM |
Images
Nearby Streets
| Name | Average Price | Average Sqft | Distance |
|---|---|---|---|
| Bluebell Rise | £ 449,975 | 0 | 0.00 KM |
| Orchid Grove | £ 0 | 0 | 0.00 KM |
| Skylark Drive | £ 0 | 0 | 0.00 KM |
| Poppy Place | £ 0 | 0 | 0.00 KM |
| Hawkstown Gardens | £ 373,750 | 0 | 0.00 KM |
Nearby Transport
| Name | NLC | TLC | Distance |
|---|---|---|---|
| Polegate | 5455 | PLG | 6.20 KM |
| Hampden Park (Sussex) | 5450 | HMD | 8.87 KM |
| Pevensey And Westham | 5461 | PEV | 9.49 KM |
Nearby Listings
| Address | Price | Type | Score | Distance |
|---|---|---|---|---|
| Oaktree Way, Hailsham, BN27 | £ 270,000 | BUY | 7 / 10 | 0.00 KM |
| Harebeating Crescent, Hailsham, BN27 | £ 300,000 | BUY | 7 / 10 | 0.09 KM |
| Abbey Path, Hailsham | £ 275,000 | BUY | 7 / 10 | 0.10 KM |
| Abbey Path, Hailsham | £ 299,950 | BUY | Unknown | 0.10 KM |
| Harebeating Gardens, Hailsham, East Sussex, BN27 | £ 320,000 | BUY | 6 / 10 | 0.13 KM |
Nearby Properties
| Address | Price | Distance |
|---|---|---|
| 4 Oaktree Way | £ 295,000 | 0.02 KM |
| 16 Oaktree Way | £ 168,000 | 0.02 KM |
| 20 Oaktree Way | £ 225,500 | 0.02 KM |
| 27 Oaktree Way | £ 161,000 | 0.02 KM |
| 22 Oaktree Way | £ 186,000 | 0.02 KM |