Carter & Willow says ..
Carter & Willow offer for sale this 3 bedroom end of terrace house which is ideally located within close proximity to Becontree District line station which allows direct access into the city.
Property Oracle says ..
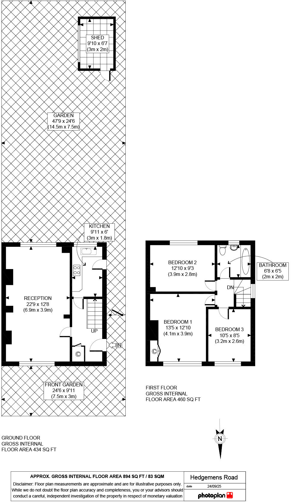
This end-of-terrace property on Hedgemans Road, Dagenham, offers three bedrooms and one bathroom. The property is situated in the Goresbrook locality of Dagenham, Greater London. While the property benefits from a large square footage (1,949.58 sqft) and a garden, it requires significant renovation. The location provides access to local schools and transportation, although it is not centrally located. The asking price of £425,000 appears somewhat high considering the condition and local market data.
Therefore, we give this property 5 / 10. *Disclaimer: This is our option and does constitute a recommendation or financial advice. Do your own research. *
- Price
- 5
- Condition
- 4
- Location
- 6
- Land
- 7
- Bedrooms
- 3
- Bathrooms
- 1
- Sqft (est)
- 1,949.58
The heatmap indicates the level of crime in the area. The color of the heatmap indicates the crime severity and recency.
Metrics Year-on-Year
- Average area value
- 362,000.00 £Increased by 7.30 %
- Est sale value
- 968,941.26 £Increased by 21.52 %
- Average area rental value
- 1,700.00 £/moDecreased by 7.81 %
- Est letting value
- 3,899.16 £/moUnchanged by 0.00 %
- Est rental Yield
- 5.64 %Decreased by 14.02 %
- Crime Rate
- 5.00 %Unchanged by 0.00 %
Agent Activity
Carter & Willow created the listing.
Nearby Schools
| Name | Type | Ofsted | Distance |
|---|---|---|---|
| Mayesbrook Park School | Pupil Referral Unit | Good | 0.19 KM |
| The James Cambell Primary School | Academy Sponsor Led | Requires improvement | 0.32 KM |
| Goresbrook School | Free Schools | Good | 0.67 KM |
| Jo Richardson Community School | Community School | Good | 0.69 KM |
| Hopewell School | Other Independent Special School | Good | 0.98 KM |
Images
Nearby Streets
| Name | Average Price | Average Sqft | Distance |
|---|---|---|---|
| Studley Road | £ 407,500 | 0 | 0.00 KM |
| Stamford Road | £ 0 | 0 | 0.00 KM |
| Greenfield Road | £ 425,000 | 0 | 0.00 KM |
| Gale Street | £ 0 | 0 | 0.00 KM |
| Richard Ryan Place | £ 0 | 0 | 0.00 KM |
Nearby Transport
| Name | NLC | TLC | Distance |
|---|---|---|---|
| Dagenham Dock | 7440 | DDK | 2.28 KM |
| Chadwell Heath | 6874 | CTH | 3.28 KM |
| Goodmayes | 6878 | GMY | 3.66 KM |
| Seven Kings | 6893 | SVK | 4.59 KM |
| Abbey Wood | 5131 | ABW | 5.37 KM |
Nearby Listings
| Address | Price | Type | Score | Distance |
|---|---|---|---|---|
| Hedgemans Road, Dagenham | £ 425,000 | BUY | 5 / 10 | 0.00 KM |
| Hedgemans Road, Dagenham, Essex, RM9 | £ 385,000 | BUY | 6 / 10 | 0.08 KM |
| Hedgemans Road, Dagenham | £ 365,000 | BUY | 6 / 10 | 0.08 KM |
| Hedgemans Road, Dagenham | £ 375,000 | BUY | 6 / 10 | 0.08 KM |
| Arden Crescent, DAGENHAM, Essex, RM9 | £ 220,000 | BUY | 7 / 10 | 0.09 KM |
Nearby Properties
| Address | Price | Distance |
|---|---|---|
| 329a Hedgemans Road | £ 235,000 | 0.00 KM |
| 341 Hedgemans Road | £ 140,000 | 0.00 KM |
| 311 Hedgemans Road | £ 50,500 | 0.00 KM |
| 305 Hedgemans Road | £ 250,000 | 0.00 KM |
| 317 Hedgemans Road | £ 163,000 | 0.00 KM |