Humberts says ..
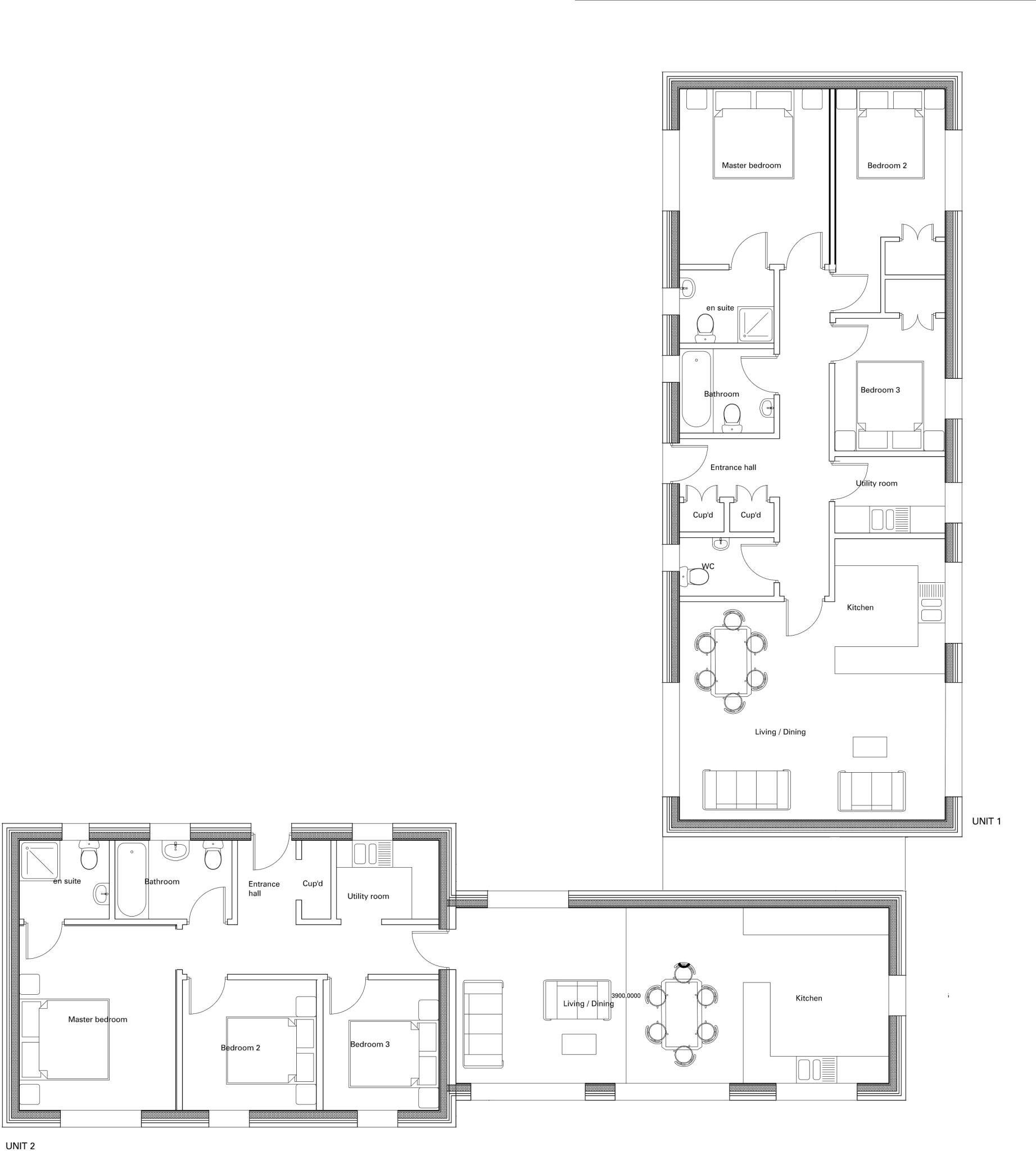
A spacious 3 bedroom detached brand new bungalow with beautiful open-plan accommodation in a small mews development
Property Oracle says ..
This property in Weston, Honiton, Devon, presents itself as a newly built or recently renovated 3-bedroom house. The provided images showcase a modern, open-plan kitchen with high-quality appliances and fixtures. The bathrooms are similarly well-appointed, with contemporary finishes. However, some rooms still require finishing touches; for instance, several bedrooms lack flooring. The location offers a desirable balance between rural serenity and proximity to the town of Honiton, where residents can access train services and local amenities. While good schools are nearby, more detailed information about local shops and other community aspects would allow for a more complete evaluation. The outside area is small and largely undeveloped, lacking a substantial garden. In summary, the property represents a good investment opportunity for those seeking a newly built home in a charming location in Devon, but potential buyers should factor in the cost of completing the interior work, along with the undeveloped exterior area. Given the current lack of square footage data for comparable properties, it’s challenging to offer a definitive assessment of its price relative to the current market value per square foot.
Therefore, we give this property 5 / 10. *Disclaimer: This is our option and does constitute a recommendation or financial advice. Do your own research. *
- Price
- 7
- Condition
- 6
- Location
- 7
- Land
- 2
- Bedrooms
- 3
- Bathrooms
- 2
- Sqft (est)
- 1,000.00
The heatmap indicates the level of crime in the area. The color of the heatmap indicates the crime severity and recency.
Metrics Year-on-Year
- Average area value
- 285,000.00 £Decreased by 22.84 %
- Est sale value
- 297,000.00 £Decreased by 4.81 %
- Average area rental value
- 1,300.00 £/moDecreased by 22.39 %
- Est letting value
- 1,000.00 £/moUnchanged by 0.00 %
- Est rental Yield
- 5.47 %Increased by 0.55 %
- Crime Rate
- 5.00 %Unchanged by 0.00 %
Agent Activity
Humberts created the listing.
Nearby Schools
| Name | Type | Ofsted | Distance |
|---|---|---|---|
| Awliscombe Church Of England Primary School | Voluntary Aided School | Good | 1.68 KM |
| Honiton & District Children'S Centre | Children's Centre | 3.10 KM | |
| Honiton Community College | Academy Converter | Good | 3.18 KM |
| Littletown Primary Academy | Academy Converter | Good | 3.20 KM |
| Honiton Primary School | Community School | Requires improvement | 3.51 KM |
Images
Nearby Streets
| Name | Average Price | Average Sqft | Distance |
|---|---|---|---|
| New Cottages | £ 1,250,000 | 0 | 0.00 KM |
| Manor Close | £ 1,100,000 | 0 | 0.00 KM |
| Hodges Close | £ 440,000 | 0 | 0.00 KM |
| Tape Lane | £ 0 | 0 | 0.00 KM |
| Maple Close | £ 279,950 | 0 | 0.00 KM |
Nearby Transport
| Name | NLC | TLC | Distance |
|---|---|---|---|
| Honiton | 5717 | HON | 3.59 KM |
| Feniton | 5808 | FNT | 7.41 KM |
Nearby Listings
| Address | Price | Type | Score | Distance |
|---|---|---|---|---|
| Weston, Honiton, Devon | £ 595,000 | BUY | 6 / 10 | 0.00 KM |
| Weston, Honiton, Devon | £ 450,000 | BUY | 5 / 10 | 0.00 KM |
| Honiton | £ 525,000 | BUY | Unknown | 0.01 KM |
| WESTON, NR HONITON, EX14 3GE - SITE FOR 3 DETACHED DWELLINGS | £ 350,000 | BUY | 5 / 10 | 0.02 KM |
| Honiton | £ 625,000 | BUY | 5 / 10 | 0.03 KM |
Nearby Properties
| Address | Price | Distance |
|---|---|---|
| 1 Weston Cottages | £ 285,000 | 0.13 KM |
| 4 Weston Cottages | £ 237,500 | 0.13 KM |
| 2 Weston Cottages | £ 157,000 | 0.13 KM |
| 6 Paynes Cottages | £ 122,000 | 0.14 KM |
| 3 Weston Cottages | £ 160,000 | 0.14 KM |