Constitution Hill, Woking, Surrey, GU22
By Seymours Estate Agents
£ 295,000
Reviews
3 out of 5 stars
Seymours Estate Agents says ..
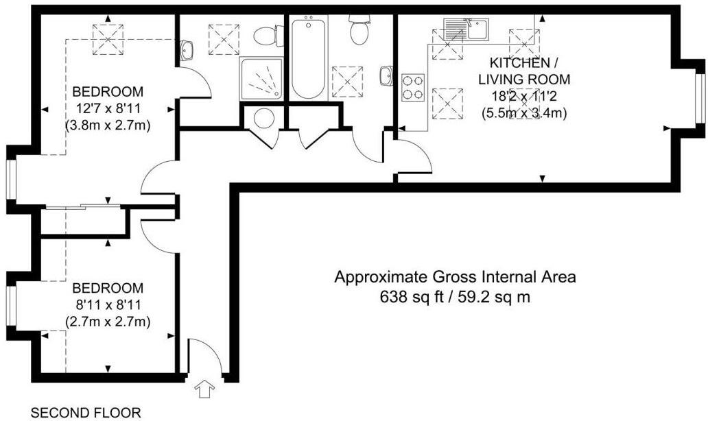
A top floor immaculately presented two bedroom, two bathroom apartment set within easy reach of the town centre and Woking’s fast mainline station. This stunning property boasts a contemporary bespoke fitted kitchen with integrated appliances, modern three-piece bathroom, open p...
Property Oracle says ..
This property is a 2-bedroom, 2-bathroom flat located in Woking, Surrey. The flat is in good condition and appears modern, with a recently renovated kitchen and bathrooms. The property benefits from allocated parking. While the plot size is small, there is a small area of garden visible in the photos. The location is convenient, with Woking train station within walking distance, offering good transport links to London and other parts of the UK. Several schools are located nearby. The list price of £295,000 appears reasonable considering the average price per square foot in the area (£521) and the modern condition of the property. However, it is slightly below the average price for the area, which could be due to the smaller size of the property and the lack of a significant garden.
Therefore, we give this property 6 / 10. *Disclaimer: This is our option and does constitute a recommendation or financial advice. Do your own research. *
- Price
- 7
- Condition
- 9
- Location
- 8
- Land
- 3
- Bedrooms
- 2
- Bathrooms
- 2
- Sqft (est)
- 638.00
The heatmap indicates the level of crime in the area. The color of the heatmap indicates the crime severity and recency.
Metrics Year-on-Year
- Average area value
- 943,000.00 £Increased by 128.77 %
- Est sale value
- 303,050.00 £Decreased by 7.23 %
- Average area rental value
- 1,665.00 £/moDecreased by 14.57 %
- Est letting value
- 0.00 £/moDecreased by 100.00 %
- Est rental Yield
- 2.12 %Decreased by 62.61 %
- Crime Rate
- 7.00 %Unchanged by 0.00 %
Agent Activity
Seymours Estate Agents created the listing.
Nearby Schools
| Name | Type | Ofsted | Distance |
|---|---|---|---|
| North West Surrey Short Stay School | Pupil Referral Unit | Good | 1.13 KM |
| Barnsbury Primary School And Nursery | Academy Converter | Good | 1.16 KM |
| Woking South Sure Start Children'S Centre | Children's Centre Linked Site | 1.23 KM | |
| Sythwood At Old Woking Sure Start Children'S Centre | Children's Centre Linked Site | 1.31 KM | |
| Westfield Primary School | Academy Converter | 1.33 KM |
Images
Nearby Streets
| Name | Average Price | Average Sqft | Distance |
|---|---|---|---|
| Lucerne Close | £ 0 | 0 | 0.00 KM |
| Nankeville Terrace | £ 283,125 | 0 | 0.00 KM |
| Mount Hermon Road | £ 435,000 | 0 | 0.00 KM |
| Percy Street | £ 0 | 0 | 0.00 KM |
| Victoria Square | £ 0 | 0 | 0.00 KM |
Nearby Transport
| Name | NLC | TLC | Distance |
|---|---|---|---|
| Woking | 5685 | WOK | 0.96 KM |
| Worplesdon | 5686 | WPL | 3.39 KM |
| West Byfleet | 5684 | WBY | 6.92 KM |
| London Road (Guildford) | 5632 | LRD | 7.83 KM |
| Brookwood | 5687 | BKO | 8.28 KM |
Nearby Listings
| Address | Price | Type | Score | Distance |
|---|---|---|---|---|
| Constitution Hill, Woking, Surrey, GU22 | £ 295,000 | BUY | 6 / 10 | 0.00 KM |
| Constitution Hill, Woking, Surrey, GU22 | £ 290,000 | BUY | 6 / 10 | 0.00 KM |
| Constitution Hill, Woking, Surrey, GU22 | £ 325,000 | BUY | 6 / 10 | 0.00 KM |
| Constitution Hill, Woking, Surrey, GU22 | £ 300,000 | BUY | 6 / 10 | 0.00 KM |
| Constitution Hill, Woking, Surrey, GU22 | £ 575,000 | BUY | 6 / 10 | 0.00 KM |
Nearby Properties
| Address | Price | Distance |
|---|---|---|
| 9 Elmdene Court | £ 133,000 | 0.05 KM |
| 4 Elmdene Court | £ 69,000 | 0.05 KM |
| 3 Elmdene Court | £ 210,000 | 0.05 KM |
| 1 Elmdene Court | £ 300,000 | 0.05 KM |
| 2 Elmdene Court | £ 235,000 | 0.05 KM |