Willow Crescent, Worthing, BN13
By Jacobs Steel
£ 335,000
Reviews
3 out of 5 stars
Jacobs Steel says ..
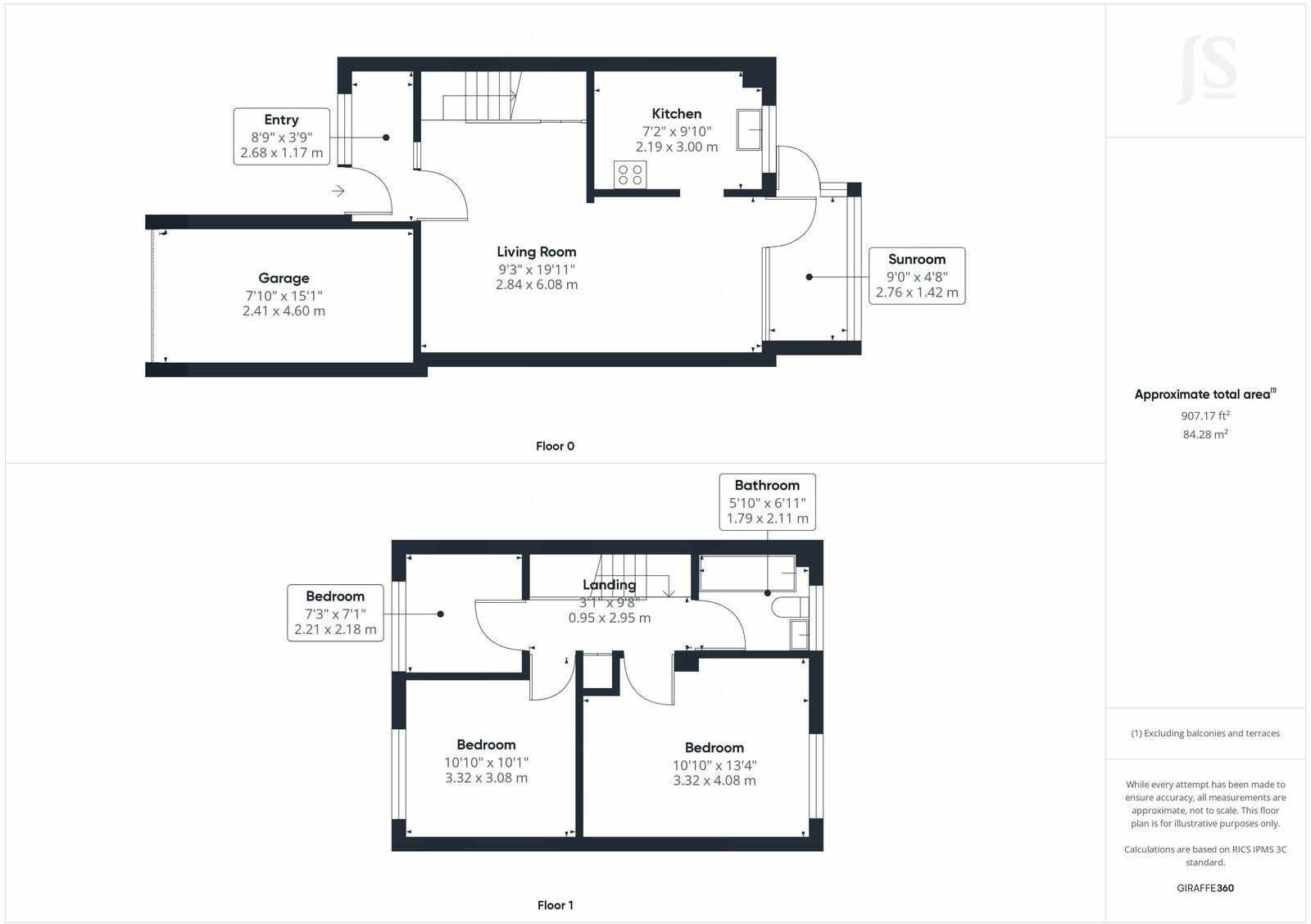
We are delighted to offer a semi detached house to the market. The property offers three bedrooms, modern fitted kitchen, lounge/ dining room and family bathroom. The property offers a private rear garden, off road parking and garage.
Property Oracle says ..
This three-bedroom, semi-detached house in Willow Crescent, Worthing, offers a comfortable family home, although it requires modernisation. The property’s location in Northbrook provides good access to local amenities, schools, and transport links, making it convenient for families. However, the surrounding area isn’t considered particularly prestigious. The provided photographs reveal an interior that’s dated and could benefit significantly from updating, and a relatively small rear garden. Considering the available information on comparable properties in the area, the asking price of £335,000 could be argued as slightly on the higher side for its condition and garden size. Potential buyers should budget for renovations to improve the property’s overall aesthetic appeal and value. The property presents a viable option for families seeking a reasonably located home in Worthing, but thorough inspection and consideration of renovation costs are recommended before proceeding with a purchase.
Therefore, we give this property 6 / 10. *Disclaimer: This is our option and does constitute a recommendation or financial advice. Do your own research. *
- Price
- 7
- Condition
- 6
- Location
- 7
- Land
- 4
- Bedrooms
- 3
- Bathrooms
- 1
- Sqft (est)
- 907.18
The heatmap indicates the level of crime in the area. The color of the heatmap indicates the crime severity and recency.
Metrics Year-on-Year
- Average area value
- 356,250.00 £Decreased by 6.97 %
- Est sale value
- 371,036.62 £Increased by 34.10 %
- Average area rental value
- 1,450.00 £/moDecreased by 3.85 %
- Est letting value
- 907.18 £/moUnchanged by 0.00 %
- Est rental Yield
- 4.88 %Increased by 3.17 %
- Crime Rate
- 5.00 %Unchanged by 0.00 %
Agent Activity
Jacobs Steel created the listing.
Nearby Schools
| Name | Type | Ofsted | Distance |
|---|---|---|---|
| Hawthorns Primary School, Durrington | Community School | Requires improvement | 0.29 KM |
| Palatine Primary School | Community Special School | Good | 0.65 KM |
| English Martyrs Catholic Primary School, Worthing | Voluntary Aided School | Requires improvement | 0.80 KM |
| Orchards Junior School | Academy Converter | Good | 0.84 KM |
| Field Place Infant School | Community School | Requires improvement | 0.84 KM |
Images
Nearby Streets
| Name | Average Price | Average Sqft | Distance |
|---|---|---|---|
| Shelby Road | £ 0 | 0 | 0.00 KM |
| Keswick Close | £ 495,000 | 0 | 0.00 KM |
| Taw Close | £ 500,000 | 0 | 0.00 KM |
| Mersey Road | £ 375,000 | 0 | 0.00 KM |
| Littlehampton Road | £ 365,000 | 0 | 0.00 KM |
Nearby Transport
| Name | NLC | TLC | Distance |
|---|---|---|---|
| Durrington-On-Sea | 5282 | DUR | 1.51 KM |
| Goring-By-Sea | 5272 | GBS | 2.00 KM |
| West Worthing | 5278 | WWO | 3.10 KM |
| Worthing | 5279 | WRH | 4.87 KM |
| East Worthing | 5283 | EWR | 7.13 KM |
Nearby Listings
| Address | Price | Type | Score | Distance |
|---|---|---|---|---|
| Willow Crescent, Worthing, BN13 | £ 318,500 | BUY | 6 / 10 | 0.00 KM |
| Willow Crescent, Worthing, BN13 | £ 335,000 | BUY | 6 / 10 | 0.00 KM |
| Willow Crescent, Worthing, West Sussex, BN13 | £ 280,000 | BUY | 5 / 10 | 0.05 KM |
| Willow Crescent, Worthing | £ 335,000 | BUY | 7 / 10 | 0.05 KM |
| Redwood Close, Worthing, BN13 | £ 285,000 | BUY | 5 / 10 | 0.06 KM |
Nearby Properties
| Address | Price | Distance |
|---|---|---|
| 60 Willow Crescent | £ 315,000 | 0.01 KM |
| 46 Willow Crescent | £ 153,500 | 0.01 KM |
| 23 Willow Crescent | £ 157,000 | 0.01 KM |
| 48 Willow Crescent | £ 78,000 | 0.01 KM |
| 34 Willow Crescent | £ 315,000 | 0.01 KM |