KI
Martell Road, West Dulwich, London, SE21
By Kinleigh Folkard & Hayward - Sales
£ 450,000
Reviews
3 out of 5 stars
Kinleigh Folkard & Hayward - Sales says ..
Martell Road is a quiet residential road in the heart of West Dulwich affording easy access to excellent transport links, popular schools and the wide selection of pubs, cafes and shops of West Dulwich such as The Rosendale and Volcano Coffee Works.
Property Oracle says ..
Therefore, we give this property 7 / 10. *Disclaimer: This is our option and does constitute a recommendation or financial advice. Do your own research. *
- Price
- 6
- Condition
- 7
- Location
- 8
- Land
- 7
- Bedrooms
- 2
- Bathrooms
- 1
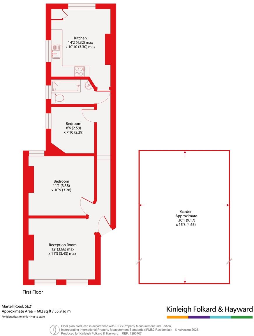
- Sqft (est)
- 602.00
- Lot (est)
- 454.00
The heatmap indicates the level of crime in the area. The color of the heatmap indicates the crime severity and recency.
Metrics Year-on-Year
- Average area value
- 455,829.00 £Decreased by 18.48 %
- Est sale value
- 299,796.00 £Decreased by 36.07 %
- Average area rental value
- 2,118.00 £/moDecreased by 3.99 %
- Est letting value
- 1,204.00 £/moDecreased by 33.33 %
- Est rental Yield
- 5.58 %Increased by 17.97 %
- Crime Rate
- 4.00 %Unchanged by 0.00 %
from 559,161.00 £
from 468,958.00 £
from 2,206.00 £/mo
from 1,806.00 £/mo
from 4.73 %
from 4.00 %
Agent Activity
Kinleigh Folkard & Hayward - Sales marked this listing as sold.
Kinleigh Folkard & Hayward - Sales created the listing.
Nearby Schools
| Name | Type | Ofsted | Distance |
|---|---|---|---|
| Elm Wood School | Community School | Good | 0.28 KM |
| Cherry Tree Children'S Centre | Children's Centre Linked Site | 0.49 KM | |
| Park Campus Academy | Academy Alternative Provision Converter | Good | 0.72 KM |
| Kingswood Primary School & Children'S Centre | Children's Centre | 0.79 KM | |
| Kingswood Primary School | Community School | Good | 0.82 KM |
Images
Nearby Streets
| Name | Average Price | Average Sqft | Distance |
|---|---|---|---|
| St Gothard Road | £ 0 | 0 | 0.00 KM |
| St Benards Close | £ 302,500 | 0 | 0.00 KM |
| Park Hall Road | £ 0 | 0 | 0.00 KM |
| Thurlow Park Road | £ 0 | 0 | 0.00 KM |
| Auckland Hill | £ 0 | 0 | 0.00 KM |
Nearby Transport
| Name | NLC | TLC | Distance |
|---|---|---|---|
| West Dulwich | 5086 | WDU | 0.87 KM |
| West Norwood | 5438 | WNW | 1.09 KM |
| Tulse Hill | 5390 | TUH | 1.41 KM |
| Gipsy Hill | 5363 | GIP | 1.51 KM |
| Sydenham Hill | 5085 | SYH | 1.53 KM |
Nearby Listings
| Address | Price | Type | Score | Distance |
|---|---|---|---|---|
| Martell Road, West Dulwich, London, SE21 | £ 450,000 | BUY | 7 / 10 | 0.00 KM |
| Martell Road, London | £ 399,999 | BUY | 6 / 10 | 0.01 KM |
| Martell Road, Dulwich, London, SE21 | £ 425,000 | BUY | Unknown | 0.01 KM |
| Martell Road, West Dulwich, London, SE21 | £ 500,000 | BUY | Unknown | 0.02 KM |
| Martell Road, London, SE21 | £ 475,000 | BUY | Unknown | 0.02 KM |
Nearby Properties
| Address | Price | Distance |
|---|---|---|
| 31c Martell Road | £ 250,000 | 0.00 KM |
| 19 Martell Road | £ 140,000 | 0.00 KM |
| 19c Martell Road | £ 520,000 | 0.00 KM |
| 21 Martell Road | £ 775,000 | 0.00 KM |
| 49 Martell Road | £ 58,500 | 0.00 KM |