Dempsey Close, Sholing, Southampton, Hampshire, SO19
By Beals
£ 234,950
Reviews
3 out of 5 stars
Beals says ..
Positioned in the heart of Sholing, this exceptional home presents an outstanding opportunity for discerning first-time buyers or investors seeking a high-quality buy-to-let property.
Property Oracle says ..
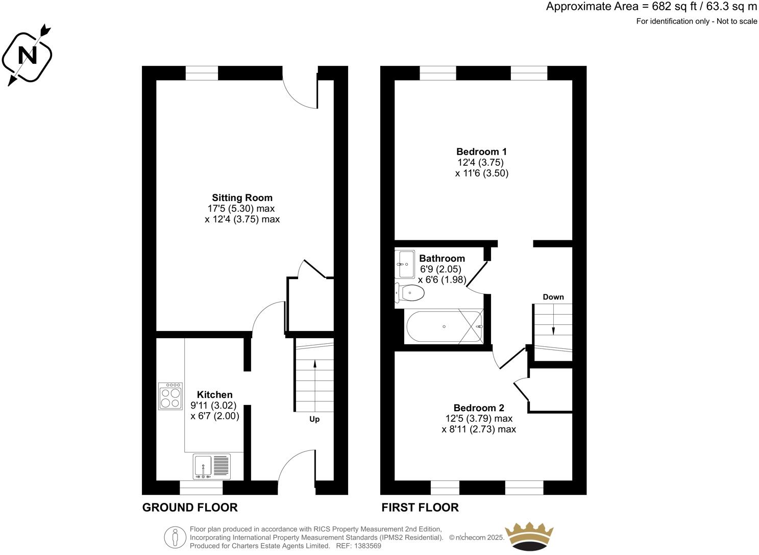
This is a two-bedroom terraced house in Sholing, Southampton. The property appears to be in generally good condition, with a modern bathroom. It features a garden, which adds to its appeal. The location offers reasonable access to local amenities, schools, and transportation. The asking price seems fair, considering the property’s condition and location, but potential buyers should compare it to similar properties in the area to ensure it represents good value for money.
Therefore, we give this property 7 / 10. *Disclaimer: This is our option and does constitute a recommendation or financial advice. Do your own research. *
- Price
- 8
- Condition
- 7
- Location
- 7
- Land
- 6
- Bedrooms
- 2
- Bathrooms
- 1
- Sqft (est)
- 577.33
The heatmap indicates the level of crime in the area. The color of the heatmap indicates the crime severity and recency.
Metrics Year-on-Year
- Average area value
- 298,182.00 £Increased by 13.23 %
- Est sale value
- 185,900.26 £Increased by 2.55 %
- Average area rental value
- 1,058.00 £/moDecreased by 12.78 %
- Est letting value
- 577.33 £/moUnchanged by 0.00 %
- Est rental Yield
- 4.26 %Decreased by 22.97 %
- Crime Rate
- 4.00 %Unchanged by 0.00 %
Agent Activity
Beals created the listing.
Nearby Schools
| Name | Type | Ofsted | Distance |
|---|---|---|---|
| St Monica Primary School | Academy Sponsor Led | 0.73 KM | |
| Sholing Infant School | Academy Converter | 0.90 KM | |
| Itchen College | Further Education | Requires improvement | 0.92 KM |
| Sholing Junior School | Academy Converter | 0.96 KM | |
| Oasis Academy Sholing | Academy Sponsor Led | 1.01 KM |
Images
Nearby Streets
| Name | Average Price | Average Sqft | Distance |
|---|---|---|---|
| Lynden Gate | £ 0 | 0 | 0.00 KM |
| Hayes Drive | £ 260,000 | 0 | 0.00 KM |
| Gainsborough Close | £ 0 | 0 | 0.00 KM |
| Butt's Crescent | £ 0 | 0 | 0.00 KM |
| Dairy Close | £ 0 | 0 | 0.00 KM |
Nearby Transport
| Name | NLC | TLC | Distance |
|---|---|---|---|
| Sholing | 5930 | SHO | 1.66 KM |
| Woolston | 5925 | WLS | 2.89 KM |
| Netley | 5911 | NTL | 3.28 KM |
| Bitterne | 5945 | BTE | 3.32 KM |
| Hamble | 5947 | HME | 4.27 KM |
Nearby Listings
| Address | Price | Type | Score | Distance |
|---|---|---|---|---|
| Dempsey Close, Sholing, Southampton, Hampshire, SO19 | £ 234,950 | BUY | 7 / 10 | 0.00 KM |
| Kathleen Road, Southampton, Hampshire, SO19 | £ 280,000 | BUY | 6 / 10 | 0.08 KM |
| Kathleen Road, Southampton, Hampshire, SO19 | £ 325,000 | BUY | 6 / 10 | 0.08 KM |
| Dempsey Close, Southampton, SO19 | £ 240,000 | BUY | 7 / 10 | 0.10 KM |
| Dempsey Close, Southampton, Hampshire, SO19 | £ 100,000 | BUY | 5 / 10 | 0.11 KM |
Nearby Properties
| Address | Price | Distance |
|---|---|---|
| 117 Kathleen Road | £ 229,950 | 0.04 KM |
| 101 Kathleen Road | £ 320,000 | 0.04 KM |
| 123 Kathleen Road | £ 223,000 | 0.04 KM |
| 87 Kathleen Road | £ 225,000 | 0.04 KM |
| 59 Kathleen Road | £ 230,000 | 0.04 KM |