Wykeham Road, Reading, Berkshire
By Nicholas Estate Agents
£ 295,000
Reviews
3 out of 5 stars
Nicholas Estate Agents says ..
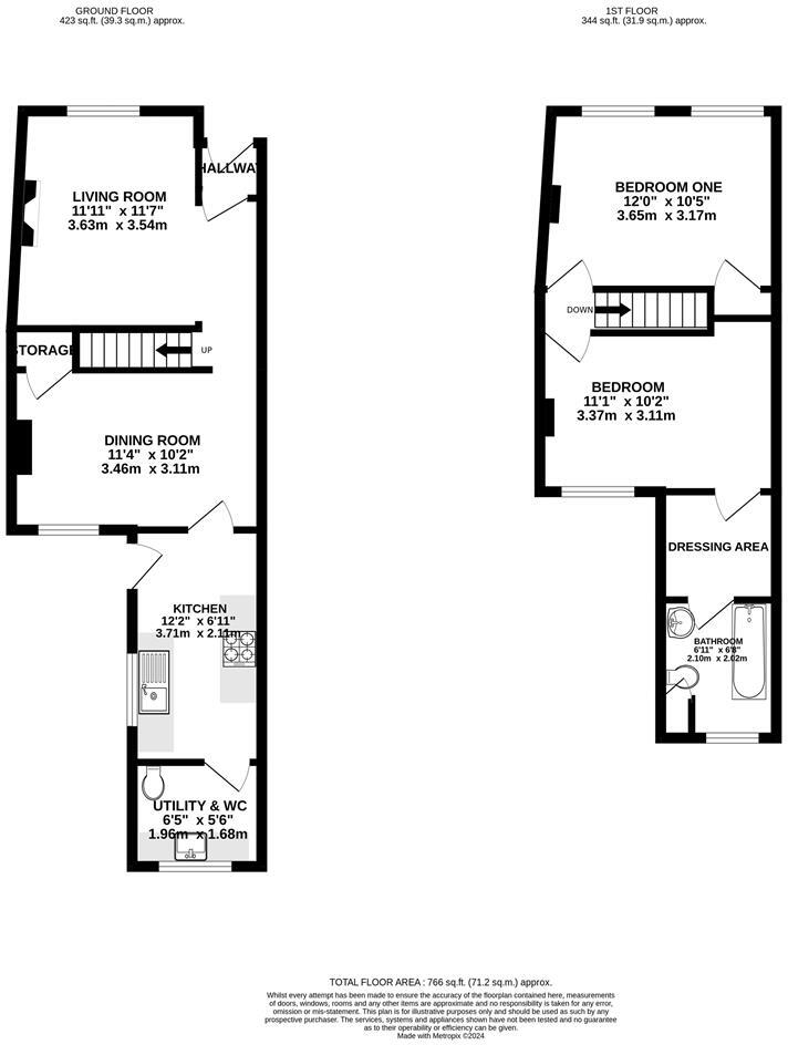
LAUNCH DAY SATURDAY 10TH OF MAY. CALL TO BOOK YOUR APPOINTMENT TO VIEW: Located only moments from Palmer Park is this well presented mid terraced period house that is within easy reach of the local amenities and offers easy access to central Reading. The property boasts two double bedrooms a dres...
Property Oracle says ..
This two-bedroom terraced house in Reading is located on Wykeham Road, within the Park locality. The property benefits from a relatively small plot size of 766 sqft, but includes a well-maintained, enclosed rear garden, ideal for relaxing or entertaining. The interior is presented in good condition, with a modern kitchen and bathroom. The property is conveniently located near several primary and secondary schools, including Alfred Sutton Primary School (Good Ofsted rating) and Utc Reading (Outstanding Ofsted rating), both within a kilometer. Several train stations are also within reasonable proximity, offering good transport links. The list price of £295,000 is slightly below the average price for the area (£339,216), however, it is important to note that the average property size in the area is significantly larger (1086 sqft compared to 632 sqft). Considering the smaller size and the lack of information regarding the condition of comparable properties, determining the exact value for money is difficult. However, the property appears well-maintained and benefits from a good location and garden, suggesting it could represent reasonable value.
Therefore, we give this property 7 / 10. *Disclaimer: This is our option and does constitute a recommendation or financial advice. Do your own research. *
- Price
- 7
- Condition
- 8
- Location
- 9
- Land
- 6
- Bedrooms
- 2
- Bathrooms
- 1
- Sqft (est)
- 632.00
- Lot (est)
- 766.00
The heatmap indicates the level of crime in the area. The color of the heatmap indicates the crime severity and recency.
Metrics Year-on-Year
- Average area value
- 339,299.00 £Increased by 1.34 %
- Est sale value
- 230,048.00 £Increased by 25.52 %
- Average area rental value
- 1,364.00 £/moIncreased by 34.92 %
- Est letting value
- 632.00 £/mo
- Est rental Yield
- 4.82 %Increased by 33.15 %
- Crime Rate
- 6.00 %Unchanged by 0.00 %
Agent Activity
Nicholas Estate Agents created the listing.
Nearby Schools
| Name | Type | Ofsted | Distance |
|---|---|---|---|
| Alfred Sutton Primary School | Community School | Good | 0.47 KM |
| Utc Reading | University Technical College | Outstanding | 0.80 KM |
| Maiden Erlegh School In Reading | Free Schools | Good | 0.80 KM |
| Earley St Peter'S Church Of England Primary School | Academy Converter | Good | 0.92 KM |
| Aldryngton Primary School | Community School | Outstanding | 1.59 KM |
Images
Nearby Streets
| Name | Average Price | Average Sqft | Distance |
|---|---|---|---|
| Milton Road | £ 0 | 0 | 0.00 KM |
| Grange Avenue | £ 372,500 | 0 | 0.00 KM |
| A3290 | £ 0 | 0 | 0.00 KM |
| Oaklands | £ 223,333 | 0 | 0.00 KM |
| Barbel Close | £ 0 | 0 | 0.00 KM |
Nearby Transport
| Name | NLC | TLC | Distance |
|---|---|---|---|
| Earley | 5694 | EAR | 2.03 KM |
| Reading | 3149 | RDG | 4.32 KM |
| Winnersh Triangle | 5698 | WTI | 4.93 KM |
| Reading West | 3160 | RDW | 6.26 KM |
| Winnersh | 5697 | WNS | 6.68 KM |
Nearby Listings
| Address | Price | Type | Score | Distance |
|---|---|---|---|---|
| Wykeham Road, Reading, Berkshire | £ 295,000 | BUY | 7 / 10 | 0.00 KM |
| Wykeham Road, Reading, Berkshire, RG6 | £ 330,000 | BUY | 6 / 10 | 0.05 KM |
| Grange Avenue, Reading, Berkshire, RG6 | £ 420,000 | BUY | 5 / 10 | 0.14 KM |
| Pitcroft Avenue, Reading | £ 320,000 | BUY | 6 / 10 | 0.15 KM |
| Pitcroft Avenue, Reading, Berkshire, RG6 | £ 315,000 | BUY | 6 / 10 | 0.16 KM |
Nearby Properties
| Address | Price | Distance |
|---|---|---|
| 57 Palmer Park Avenue | £ 197,000 | 0.04 KM |
| 58 Palmer Park Avenue | £ 237,000 | 0.04 KM |
| 56 Palmer Park Avenue | £ 250,000 | 0.04 KM |
| 3 Wykeham Road | £ 246,050 | 0.05 KM |
| 5 Wykeham Road | £ 290,000 | 0.05 KM |