Taylor Gibbs says ..
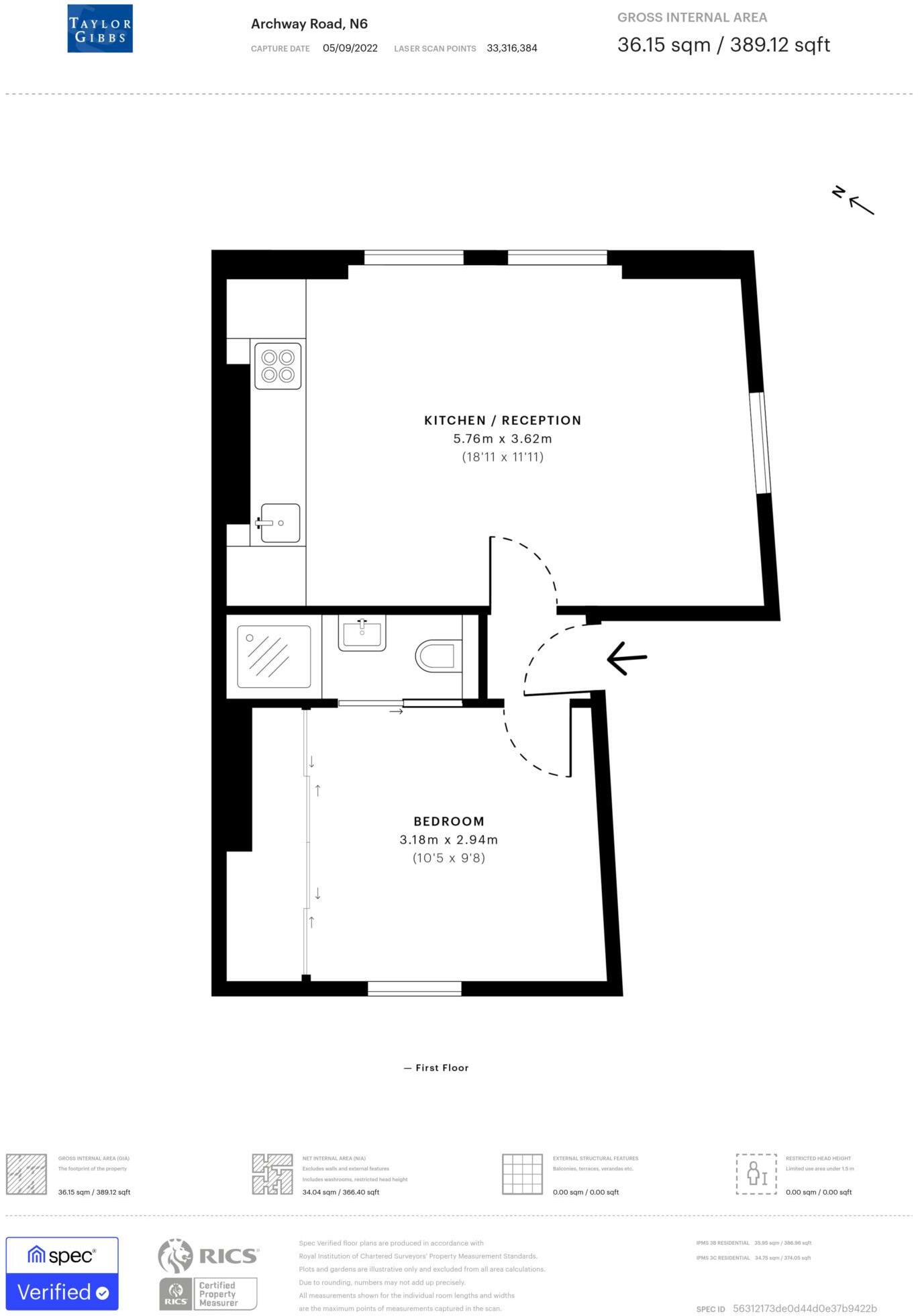
A one bedroom apartment occupying the first floor of this period conversion situated within close walking distance of Highgate Underground Station.
Property Oracle says ..
This one-bedroom apartment on Archway Road, Highgate, offers a convenient and relatively well-maintained living space. Situated in the desirable Highgate area, its proximity to local amenities and transport links is a significant advantage. The apartment’s interior benefits from a modern kitchen and bathroom. The lack of outdoor space is a notable drawback, and the property’s relatively small size (389.12 sqft) should be considered. The list price requires further analysis with a wider range of comparable sales data to fully assess its value. The overall presentation is good, the property is well-maintained, and located in a popular area, however, its lack of land and smaller size could be limiting factors for prospective buyers.
Therefore, we give this property 5 / 10. *Disclaimer: This is our option and does constitute a recommendation or financial advice. Do your own research. *
- Price
- 6
- Condition
- 7
- Location
- 7
- Land
- 1
- Bedrooms
- 1
- Bathrooms
- 1
- Sqft (est)
- 389.12
The heatmap indicates the level of crime in the area. The color of the heatmap indicates the crime severity and recency.
Metrics Year-on-Year
- Average area value
- 1,309,500.00 £Decreased by 14.68 %
- Est sale value
- 608,583.68 £Increased by 31.65 %
- Average area rental value
- 2,427.00 £/moDecreased by 19.07 %
- Est letting value
- 778.24 £/moUnchanged by 0.00 %
- Est rental Yield
- 2.22 %Decreased by 5.13 %
- Crime Rate
- 8.00 %Unchanged by 0.00 %
Agent Activity
Taylor Gibbs created the listing.
Nearby Schools
| Name | Type | Ofsted | Distance |
|---|---|---|---|
| Odyssey House School | Other Independent School | 0.15 KM | |
| The Avenue Pre-Preparatory School And Nursery | Other Independent School | 0.39 KM | |
| Channing School | Other Independent School | 0.47 KM | |
| St Aloysius Rc College | Voluntary Aided School | Requires improvement | 0.59 KM |
| St Joseph'S Catholic Primary School | Voluntary Aided School | Outstanding | 0.59 KM |
Images
Nearby Streets
| Name | Average Price | Average Sqft | Distance |
|---|---|---|---|
| Highgate Hill | £ 0 | 0 | 0.00 KM |
| Townsend Yard | £ 0 | 0 | 0.00 KM |
| Broadbent Close | £ 0 | 0 | 0.00 KM |
| Park Walk | £ 0 | 0 | 0.00 KM |
| Stanhope Road | £ 550,000 | 0 | 0.00 KM |
Nearby Transport
| Name | NLC | TLC | Distance |
|---|---|---|---|
| Upper Holloway | 1524 | UHL | 1.80 KM |
| Gospel Oak | 1409 | GPO | 2.28 KM |
| Kentish Town | 1553 | KTN | 2.61 KM |
| Crouch Hill | 7406 | CRH | 2.77 KM |
| Kentish Town West | 1449 | KTW | 3.09 KM |
Nearby Listings
| Address | Price | Type | Score | Distance |
|---|---|---|---|---|
| Archway Road, London, N6 | £ 70,000 | BUY | 6 / 10 | 0.00 KM |
| Archway Road, Highgate, N6 | £ 425,000 | BUY | 5 / 10 | 0.00 KM |
| Archway Road, Highgate | £ 600,000 | BUY | 7 / 10 | 0.03 KM |
| Archway Road, Highgate | £ 540,000 | BUY | 6 / 10 | 0.03 KM |
| Causton Road, Highgate | £ 2,750,000 | BUY | 8 / 10 | 0.04 KM |
Nearby Properties
| Address | Price | Distance |
|---|---|---|
| 213b Archway Road | £ 825,000 | 0.01 KM |
| 179a - 179b Archway Road | £ 423,000 | 0.01 KM |
| 213d Archway Road | £ 530,000 | 0.01 KM |
| 213 Archway Road | £ 665,000 | 0.01 KM |
| 221 Archway Road | £ 235,000 | 0.01 KM |