BL
Flat 7, 235, Corstorphine Road, Edinburgh, EH12 7AR
By Blair Cadell Solicitors
£ 475,000
Reviews
3 out of 5 stars
Blair Cadell Solicitors says ..
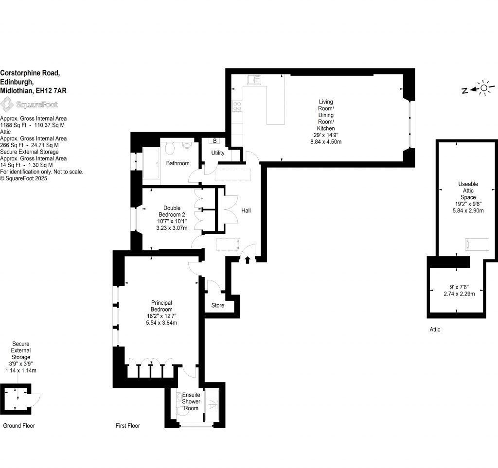
Flat 7, 235 Corstorphine Road is a beautifully presented two-bedroom apartment set within a well-established residential development in the ever-popular Corstorphine area of Edinburgh. Occupying the first floor, this impressive home offers a combination of generous proportions, modern interiors a...
Property Oracle says ..
Therefore, we give this property 6 / 10. *Disclaimer: This is our option and does constitute a recommendation or financial advice. Do your own research. *
- Price
- 6
- Condition
- 9
- Location
- 8
- Land
- 1
- Bedrooms
- 2
- Bathrooms
- 2
- Sqft (est)
- 1,013.75
The heatmap indicates the level of crime in the area. The color of the heatmap indicates the crime severity and recency.
Metrics Year-on-Year
- Average area value
- 349,600.00 £Decreased by 7.69 %
- Est sale value
- 425,775.00 £Increased by 30.43 %
- Average area rental value
- 1,149.00 £/moDecreased by 24.51 %
- Est letting value
- 1,013.75 £/moUnchanged by 0.00 %
- Est rental Yield
- 3.94 %Decreased by 18.26 %
- Crime Rate
- 0.00 %
from 378,744.00 £
from 326,427.50 £
from 1,522.00 £/mo
from 1,013.75 £/mo
from 4.82 %
from 0.00 %
Agent Activity
Blair Cadell Solicitors created the listing.
Nearby Schools
| Name | Type | Ofsted | Distance |
|---|---|---|---|
| Merchiston Castle School | Offshore Schools | 3.88 KM | |
| Cargilfield School | Offshore Schools | 4.38 KM |
Images
Nearby Streets
| Name | Average Price | Average Sqft | Distance |
|---|---|---|---|
| Traquair Park East | £ 0 | 0 | 0.00 KM |
| Gordon Road | £ 0 | 0 | 0.00 KM |
| Lampacre Road | £ 345,000 | 0 | 0.00 KM |
| St John's Terrace | £ 0 | 0 | 0.00 KM |
| St Catherine's Gardens | £ 0 | 0 | 0.00 KM |
Nearby Transport
| Name | NLC | TLC | Distance |
|---|---|---|---|
| Kingsknowe | 9217 | KGE | 2.65 KM |
| South Gyle | 9318 | SGL | 3.04 KM |
| Wester Hailes | 9231 | WTA | 3.29 KM |
| Slateford | 9236 | SLA | 3.60 KM |
| Edinburgh Park | 9395 | EDP | 4.19 KM |
Nearby Listings
| Address | Price | Type | Score | Distance |
|---|---|---|---|---|
| Flat 7, 235, Corstorphine Road, Edinburgh, EH12 7AR | £ 475,000 | BUY | 6 / 10 | 0.00 KM |
| 1/4 Cruickshank Gardens, Edinburgh, EH12 7AS | £ 295,000 | BUY | 7 / 10 | 0.05 KM |
| Flat 5, 5, Cruikshank Gardens, Edinburgh, EH12 7AS | £ 300,000 | BUY | 6 / 10 | 0.05 KM |
| Meadowhouse Road, Edinburgh, EH12 | £ 585,000 | BUY | Unknown | 0.21 KM |
| 23 Traquair Park East, Edinburgh, EH12 7AP | £ 475,000 | BUY | Unknown | 0.22 KM |