Chancellors says ..
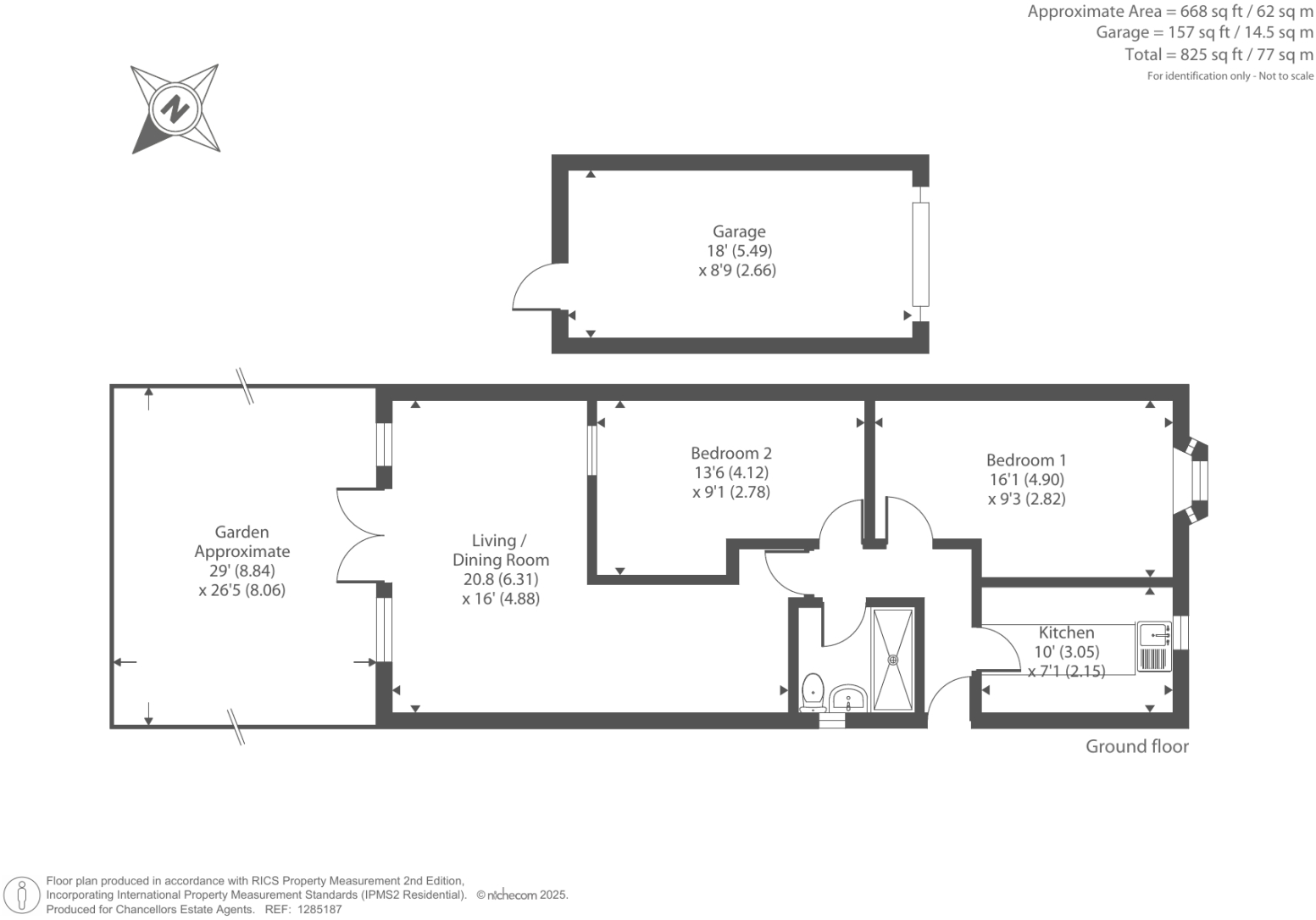
Chancellors present to market this well presented semi-detached bungalow. Tucked in a cul-du-sac the property is ideal for Thatcham broadway and local amenities. The property comprises Master bedroom, additional reception/second bedroom, living room, separate kitchen & shower room.
Property Oracle says ..
This property is a 2 bedroom detached bungalow situated in Thatcham, Berkshire. It’s listed at £395,000 and has 825 sqft of living space and a 668 sqft plot. The average house price in the area is £344,600, with an average price per sqft of £362. The property appears to be in good condition. The images show a well-maintained interior and exterior. The kitchen and bathroom appear modern and updated. There is a garden present, which is a desirable feature in the UK housing market. The location in Thatcham Central is advantageous, given its proximity to schools like Spurcroft Primary School (rated ‘Good’ by Ofsted) and Kennet School (‘Outstanding’). The proximity to Thatcham train station (Great Western Railway) provides convenient transport links. Considering the property’s condition, the presence of a garden, and its convenient location near good schools and transport links, the asking price of £395,000 appears reasonable, though slightly above the average for the area. However, it is a detached bungalow which are generally more expensive than other property types. The lack of sqft data for nearby properties makes a precise comparison difficult.
Therefore, we give this property 7 / 10. *Disclaimer: This is our option and does constitute a recommendation or financial advice. Do your own research. *
- Price
- 7
- Condition
- 8
- Location
- 8
- Land
- 7
- Bedrooms
- 2
- Bathrooms
- 1
- Sqft (est)
- 825.00
- Lot (est)
- 668.00
The heatmap indicates the level of crime in the area. The color of the heatmap indicates the crime severity and recency.
Metrics Year-on-Year
- Average area value
- 525,000.00 £Increased by 70.84 %
- Est sale value
- 389,400.00 £Increased by 10.02 %
- Average area rental value
- 1,050.00 £/moDecreased by 53.02 %
- Est letting value
- 0.00 £/moDecreased by 100.00 %
- Est rental Yield
- 2.40 %Decreased by 72.51 %
- Crime Rate
- 8.00 %Unchanged by 0.00 %
Agent Activity
Chancellors created the listing.
Nearby Schools
| Name | Type | Ofsted | Distance |
|---|---|---|---|
| Spurcroft Primary School | Community School | Good | 0.29 KM |
| Kennet School | Academy Converter | Outstanding | 1.06 KM |
| Thatcham Park Cofe Primary | Voluntary Controlled School | Good | 1.17 KM |
| Francis Baily Primary School | Academy Converter | 1.41 KM | |
| Central Family Hub - Thatcham | Children's Centre | 1.45 KM |
Images
Nearby Streets
| Name | Average Price | Average Sqft | Distance |
|---|---|---|---|
| Oak Tree Road | £ 435,000 | 0 | 0.00 KM |
| Bluecoats | £ 254,000 | 0 | 0.00 KM |
| Coombe Square | £ 369,950 | 0 | 0.00 KM |
| Station Road | £ 193,000 | 0 | 0.00 KM |
| Kennet Close | £ 0 | 0 | 0.00 KM |
Nearby Transport
| Name | NLC | TLC | Distance |
|---|---|---|---|
| Thatcham | 3152 | THA | 1.57 KM |
| Newbury Racecourse | 3071 | NRC | 5.62 KM |
| Newbury | 3074 | NBY | 7.28 KM |
| Midgham | 3159 | MDG | 8.77 KM |
Nearby Listings
| Address | Price | Type | Score | Distance |
|---|---|---|---|---|
| Thatcham, Berkshire, RG19 | £ 395,000 | BUY | 7 / 10 | 0.00 KM |
| RUDLAND CLOSE, THATCHAM | £ 345,000 | BUY | 6 / 10 | 0.09 KM |
| RUDLAND CLOSE, THATCHAM | £ 300,000 | BUY | 6 / 10 | 0.12 KM |
| Braemore Close, Thatcham, Berkshire, RG19 | £ 290,000 | BUY | 7 / 10 | 0.15 KM |
| Rudland Close, Thatcham, Berkshire, RG19 | £ 350,000 | BUY | Unknown | 0.15 KM |
Nearby Properties
| Address | Price | Distance |
|---|---|---|
| 4 Beancroft Road | £ 269,950 | 0.06 KM |
| 23 Beancroft Road | £ 380,000 | 0.06 KM |
| 20 Beancroft Road | £ 266,000 | 0.06 KM |
| 58 Beancroft Road | £ 305,000 | 0.06 KM |
| 76 Beancroft Road | £ 299,950 | 0.06 KM |