96 Park Road, Chesterfield S40 2JX
By PriceLinsey
£ 70,000
Reviews
3 out of 5 stars
PriceLinsey says ..
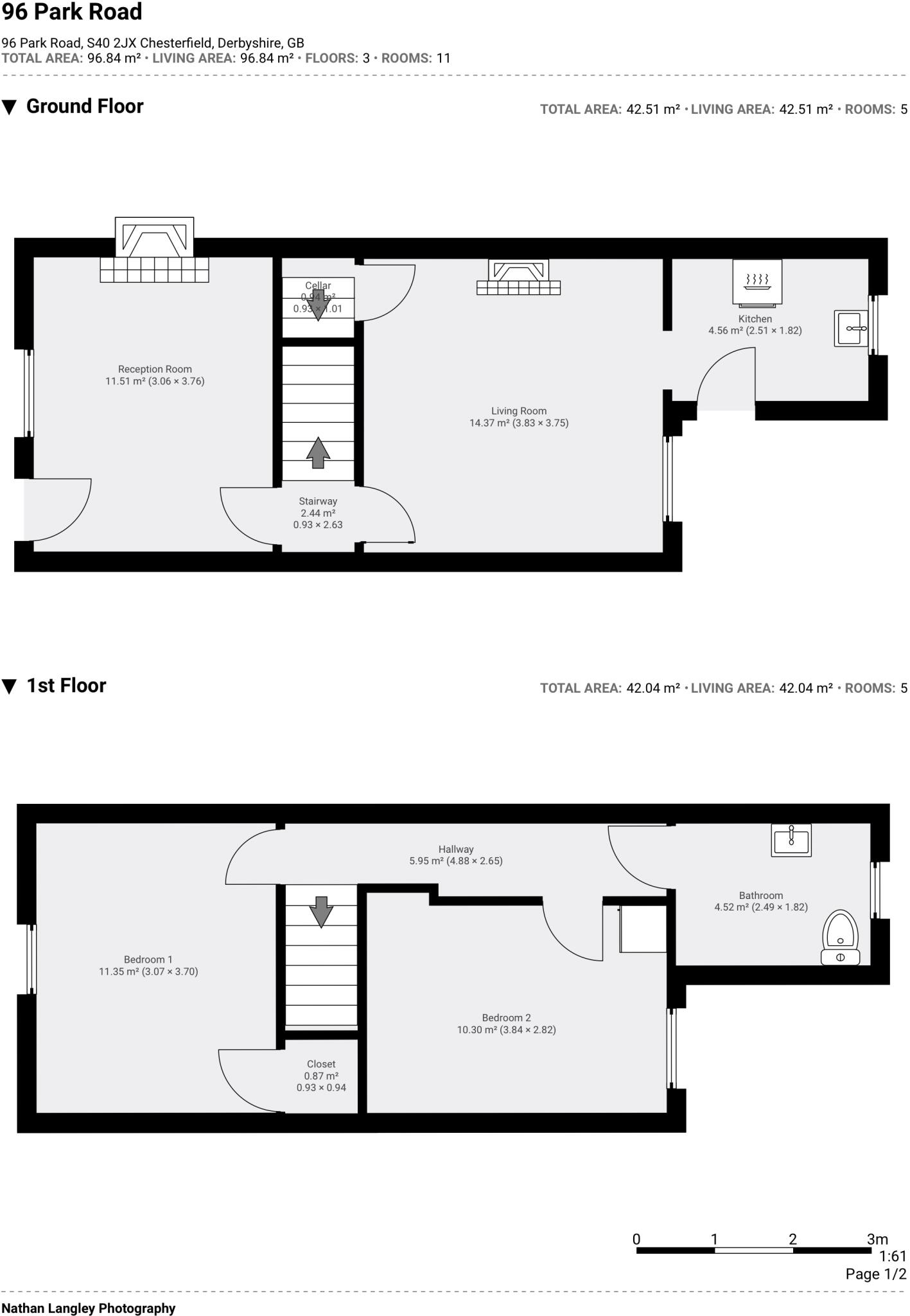
FOR SALE VIA LIVESTREAM AUCTION ON THE 19th FEBRUARY 2026 - NOTE: BIDDERS WILL NEED TO PRE-REGISTER ON PRICELINSEY WEBSITE ( PRIOR TO THE AUCTION DAY. A fantastic opportunity to purchase this two-bedroom mid terrace house. The property has been previously held as an inve...
Property Oracle says ..
This is a two-bedroom terraced house on Park Road in Chesterfield. The property requires renovation but is located in a convenient area close to schools and transportation. The asking price of £70,000 makes it an attractive investment opportunity.
Therefore, we give this property 6 / 10. *Disclaimer: This is our option and does constitute a recommendation or financial advice. Do your own research. *
- Price
- 9
- Condition
- 4
- Location
- 7
- Land
- 5
- Bedrooms
- 2
- Bathrooms
- 1
The heatmap indicates the level of crime in the area. The color of the heatmap indicates the crime severity and recency.
Metrics Year-on-Year
- Average area value
- 487,285.00 £Decreased by 7.65 %
- Average area rental value
- 1,920.00 £/moIncreased by 13.27 %
- Est rental Yield
- 4.73 %Increased by 22.86 %
- Crime Rate
- 6.00 %Unchanged by 0.00 %
Agent Activity
PriceLinsey created the listing.
Nearby Schools
| Name | Type | Ofsted | Distance |
|---|---|---|---|
| Spire Junior School | Community School | Good | 0.84 KM |
| Parkside Community School | Community School | Good | 0.86 KM |
| St Mary'S Catholic Primary | Voluntary Aided School | Good | 0.98 KM |
| Walton Peak Flying High Academy | Academy Sponsor Led | 1.05 KM | |
| Chesterfield College | Further Education | Requires improvement | 1.15 KM |
Images
Nearby Streets
| Name | Average Price | Average Sqft | Distance |
|---|---|---|---|
| New Street | £ 180,000 | 0 | 0.00 KM |
| New Square | £ 0 | 0 | 0.00 KM |
| Rose Hill | £ 0 | 0 | 0.00 KM |
| Church Lane | £ 155,000 | 0 | 0.00 KM |
| Elder Way | £ 0 | 0 | 0.00 KM |
Nearby Transport
| Name | NLC | TLC | Distance |
|---|---|---|---|
| Chesterfield | 6615 | CHD | 1.42 KM |
| Dronfield | 6616 | DRO | 8.76 KM |
Nearby Listings
| Address | Price | Type | Score | Distance |
|---|---|---|---|---|
| 96 Park Road, Chesterfield S40 2JX | £ 70,000 | BUY | 6 / 10 | 0.00 KM |
| Elton Street, Chesterfield, Derbyshire S40 | £ 115,000 | BUY | 5 / 10 | 0.05 KM |
| New Street, Chesterfield, Derbyshire S40 | £ 125,000 | BUY | 6 / 10 | 0.07 KM |
| New Street, Chesterfield, S40 | £ 115,000 | BUY | 6 / 10 | 0.10 KM |
| Baden Powell Road, , S40 | £ 175,000 | BUY | 7 / 10 | 0.21 KM |
Nearby Properties
| Address | Price | Distance |
|---|---|---|
| 102 Park Road | £ 107,000 | 0.01 KM |
| 86 Park Road | £ 95,000 | 0.01 KM |
| 96 Park Road | £ 26,950 | 0.01 KM |
| 104 Park Road | £ 80,000 | 0.01 KM |
| 84 Park Road | £ 78,000 | 0.01 KM |